|
|
Aichi Prefecture, Chikusa-ku, Nagoya
愛知県名古屋市千種区
|
|
Subway Higashiyama Line "Kakuozan" walk 9 minutes
地下鉄東山線「覚王山」歩9分
|
|
The location of subway Higashiyama Line "Kakuozan" walk about 9 minutes of the charm from the station. 2013 August renovated. Please do not hesitate to contact us.
地下鉄東山線『覚王山』駅より徒歩約9分の魅力の立地。平成25年8月改装済。お気軽にお問い合わせくださいませ。
|
|
Interior renovation, Facing south, Corner dwelling unit, The window in the bathroom, Ventilation good
内装リフォーム、南向き、角住戸、浴室に窓、通風良好
|
Features pickup 特徴ピックアップ | | Immediate Available / Interior renovation / Facing south / Corner dwelling unit / Yang per good / A quiet residential area / Japanese-style room / Washbasin with shower / Plane parking / Bicycle-parking space / Elevator / The window in the bathroom / Ventilation good / Pets Negotiable / Flat terrain 即入居可 /内装リフォーム /南向き /角住戸 /陽当り良好 /閑静な住宅地 /和室 /シャワー付洗面台 /平面駐車場 /駐輪場 /エレベーター /浴室に窓 /通風良好 /ペット相談 /平坦地 |
Event information イベント情報 | | (Please be sure to ask in advance) (事前に必ずお問い合わせください) |
Property name 物件名 | | Santopia Kakuozan Tashiro サントピア覚王山田代 |
Price 価格 | | 11.5 million yen 1150万円 |
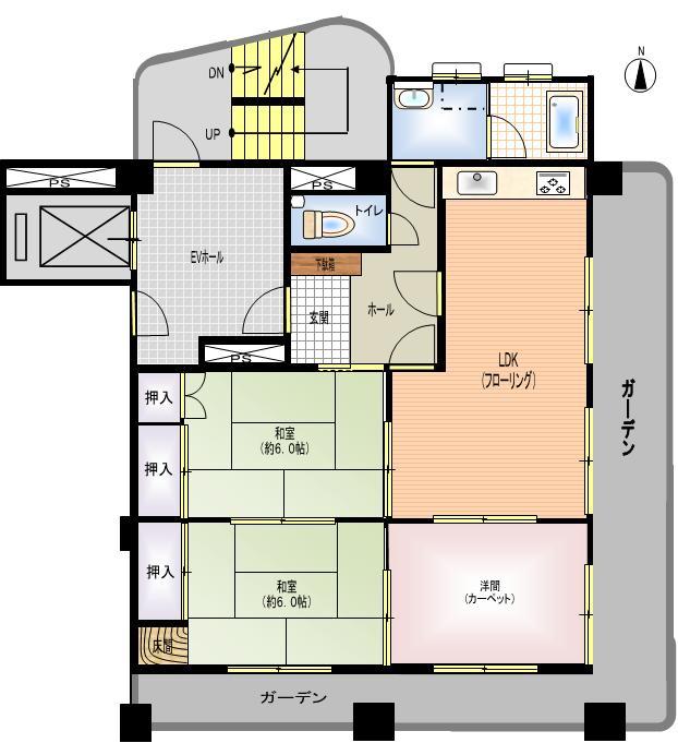
Floor plan 間取り | | 3LDK 3LDK |
Units sold 販売戸数 | | 1 units 1戸 |
Total units 総戸数 | | 12 units 12戸 |
Occupied area 専有面積 | | 67.5 sq m (center line of wall) 67.5m2(壁芯) |
Other area その他面積 | | Balcony area: 28.8 sq m バルコニー面積:28.8m2 |
Whereabouts floor / structures and stories 所在階/構造・階建 | | 4th floor / RC7 story 4階/RC7階建 |
Completion date 完成時期(築年月) | | July 1978 1978年7月 |
Address 住所 | | Aichi Prefecture, Chikusa-ku, Nagoya Tashirohontori 3 愛知県名古屋市千種区田代本通3 |
Traffic 交通 | | Subway Higashiyama Line "Kakuozan" walk 9 minutes 地下鉄東山線「覚王山」歩9分
|
Related links 関連リンク | | [Related Sites of this company] 【この会社の関連サイト】 |
Person in charge 担当者より | | Person in charge of two village 担当者二村 |
Contact お問い合せ先 | | TEL: 052-561-6651 Please inquire as "saw SUUMO (Sumo)" TEL:052-561-6651「SUUMO(スーモ)を見た」と問い合わせください |
Administrative expense 管理費 | | 10,500 yen / Month (self-management) 1万500円/月(自主管理) |
Repair reserve 修繕積立金 | | 13,000 yen / Month 1万3000円/月 |
Time residents 入居時期 | | Immediate available 即入居可 |
Whereabouts floor 所在階 | | 4th floor 4階 |
Direction 向き | | South 南 |
Renovation リフォーム | | August interior renovation completed (Kitchen 2013 ・ wall ・ floor ・ Wash basin) 2013年8月内装リフォーム済(キッチン・壁・床・洗面台) |
Overview and notices その他概要・特記事項 | | Contact: Ichon 担当者:二村 |
Structure-storey 構造・階建て | | RC7 story RC7階建 |
Site of the right form 敷地の権利形態 | | Ownership 所有権 |
Use district 用途地域 | | Residential 近隣商業 |
Parking lot 駐車場 | | Sky Mu 空無 |
Company profile 会社概要 | | <Mediation> Governor of Aichi Prefecture (2) No. 021160 (Ltd.) Twin Village Nagoya Yubinbango451-0044 Nagoya, Aichi Prefecture, Nishi-ku, Kikui 1-36-20 <仲介>愛知県知事(2)第021160号(株)ツインヴィレッジ名古屋〒451-0044 愛知県名古屋市西区菊井1-36-20 |
Construction 施工 | | (Ltd.) Miyaji Iron Works (株)宮地鉄工所 |