Used Apartments » Tokai » Aichi Prefecture » Nagoya City Midori-ku
 
| | Nagoya, Aichi Prefecture Midori Ward 愛知県名古屋市緑区 |
| Subway Sakura-dori Line "Nonami" walk 7 minutes 地下鉄桜通線「野並」歩7分 |
| Immediate Available, Facing south, Yang per good, South balcony, Bicycle-parking space, Located on a hill 即入居可、南向き、陽当り良好、南面バルコニー、駐輪場、高台に立地 |
| Immediate Available, Facing south, Yang per good, South balcony, Bicycle-parking space, Located on a hill 即入居可、南向き、陽当り良好、南面バルコニー、駐輪場、高台に立地 |
Features pickup 特徴ピックアップ | | Immediate Available / Facing south / Yang per good / South balcony / Bicycle-parking space / Located on a hill 即入居可 /南向き /陽当り良好 /南面バルコニー /駐輪場 /高台に立地 | Property name 物件名 | | Kaminoyama housing 上ノ山住宅 | Price 価格 | | 3.2 million yen 320万円 | Floor plan 間取り | | 3DK 3DK | Units sold 販売戸数 | | 1 units 1戸 | Total units 総戸数 | | 30 units 30戸 | Occupied area 専有面積 | | 46.27 sq m (center line of wall) 46.27m2(壁芯) | Other area その他面積 | | Balcony area: 4.12 sq m バルコニー面積:4.12m2 | Whereabouts floor / structures and stories 所在階/構造・階建 | | 1st floor / RC5 story 1階/RC5階建 | Completion date 完成時期(築年月) | | January 1970 1970年1月 | Address 住所 | | Nagoya, Aichi Prefecture Midori-ku Narumi-cho Kaminoyama 11 address 9 愛知県名古屋市緑区鳴海町字上ノ山11番地9 | Traffic 交通 | | Subway Sakura-dori Line "Nonami" walk 7 minutes 地下鉄桜通線「野並」歩7分
| Person in charge 担当者より | | [Regarding this property.] Day is good! 【この物件について】日当り良好です! | Contact お問い合せ先 | | TEL: 0800-603-3252 [Toll free] mobile phone ・ Also available from PHS Caller ID is not notified Please contact the "saw SUUMO (Sumo)" If it does not lead, If the real estate company TEL:0800-603-3252【通話料無料】携帯電話・PHSからもご利用いただけます 発信者番号は通知されません 「SUUMO(スーモ)を見た」と問い合わせください つながらない方、不動産会社の方は
| Administrative expense 管理費 | | 4500 yen / Month (self-management) 4500円/月(自主管理) | Repair reserve 修繕積立金 | | 8000 yen / Month 8000円/月 | Time residents 入居時期 | | Immediate available 即入居可 | Whereabouts floor 所在階 | | 1st floor 1階 | Direction 向き | | South 南 | Structure-storey 構造・階建て | | RC5 story RC5階建 | Site of the right form 敷地の権利形態 | | Ownership 所有権 | Use district 用途地域 | | One middle and high 1種中高 | Parking lot 駐車場 | | Site (4000 yen / Month) 敷地内(4000円/月) | Company profile 会社概要 | | <Mediation> Governor of Aichi Prefecture (3) No. 019732 (Ltd.) Home planner business center Yubinbango451-0064 Nagoya, Aichi Prefecture, Nishi-ku, Meisei 2-32-16 <仲介>愛知県知事(3)第019732号(株)ホームプランナー営業センター〒451-0064 愛知県名古屋市西区名西2-32-16 |
Local appearance photo現地外観写真  Local (11 May 2013) Shooting
現地(2013年11月)撮影
View photos from the dwelling unit住戸からの眺望写真  View from the site (November 2013) Shooting
現地からの眺望(2013年11月)撮影
Balconyバルコニー  Local (11 May 2013) Shooting
現地(2013年11月)撮影
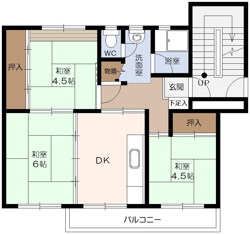
Floor plan間取り図  3DK, Price 3.2 million yen, Occupied area 46.27 sq m , Balcony area 4.12 sq m
3DK、価格320万円、専有面積46.27m2、バルコニー面積4.12m2
Livingリビング  Indoor (11 May 2013) Shooting
室内(2013年11月)撮影
Bathroom浴室  Indoor (11 May 2013) Shooting
室内(2013年11月)撮影
Kitchenキッチン  Indoor (11 May 2013) Shooting
室内(2013年11月)撮影
Non-living roomリビング以外の居室  Indoor (11 May 2013) Shooting
室内(2013年11月)撮影
Entrance玄関  Local (11 May 2013) Shooting
現地(2013年11月)撮影
Location
|