1981November
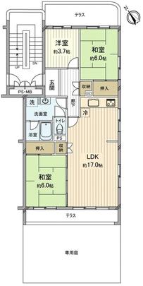
12.8 million yen, 3LDK, 74.72 sq m
Used Apartments » Tokai » Aichi Prefecture » Nagoya Tempaku-ku
 
| | Nagoya, Aichi Prefecture Tempaku-ku 愛知県名古屋市天白区 |
| Subway Tsurumai "Hirabari" walk 5 minutes 地下鉄鶴舞線「平針」歩5分 |
Property name 物件名 | | Maison Hirabari メゾン平針 | Price 価格 | | 12.8 million yen 1280万円 | Floor plan 間取り | | 3LDK 3LDK | Units sold 販売戸数 | | 1 units 1戸 | Total units 総戸数 | | 20 units 20戸 | Occupied area 専有面積 | | 74.72 sq m (center line of wall) 74.72m2(壁芯) | Whereabouts floor / structures and stories 所在階/構造・階建 | | 1st floor / RC5 story 1階/RC5階建 | Completion date 完成時期(築年月) | | November 1981 1981年11月 | Address 住所 | | Nagoya, Aichi Prefecture Tempaku-ku Hirabari 2 愛知県名古屋市天白区平針2 | Traffic 交通 | | Subway Tsurumai "Hirabari" walk 5 minutes 地下鉄鶴舞線「平針」歩5分
| Person in charge 担当者より | | The person in charge [Deputy manager beach Tomoya] 担当者【副店長 浜 智哉】 | Contact お問い合せ先 | | Mitsui Rehouse Tempaku shop Mitsui Fudosan Realty (Ltd.) TEL: 0120-360031 [Toll free] Please contact the "saw SUUMO (Sumo)" 三井のリハウス天白店三井不動産リアルティ(株)TEL:0120-360031【通話料無料】「SUUMO(スーモ)を見た」と問い合わせください | Administrative expense 管理費 | | 5000 Yen / Month (consignment (cyclic)) 5000円/月(委託(巡回)) | Repair reserve 修繕積立金 | | 12,000 yen / Month 1万2000円/月 | Time residents 入居時期 | | Immediate available 即入居可 | Whereabouts floor 所在階 | | 1st floor 1階 | Direction 向き | | South 南 | Overview and notices その他概要・特記事項 | | Contact Person [Deputy manager beach Tomoya] 担当者:【副店長 浜 智哉】 | Structure-storey 構造・階建て | | RC5 story RC5階建 | Site of the right form 敷地の権利形態 | | Ownership 所有権 | Use district 用途地域 | | One dwelling 1種住居 | Parking lot 駐車場 | | Sky Mu 空無 | Company profile 会社概要 | | <Mediation> Minister of Land, Infrastructure and Transport (13) No. 000777 (one company) Property distribution management Association (Corporation) metropolitan area real estate Fair Trade Council member Mitsui Rehouse Tempaku shop Mitsui Fudosan Realty Co. Yubinbango468-0015 Nagoya, Aichi Prefecture Tempaku-ku original 1-2213 <仲介>国土交通大臣(13)第000777号(一社)不動産流通経営協会会員 (公社)首都圏不動産公正取引協議会加盟三井のリハウス天白店三井不動産リアルティ(株)〒468-0015 愛知県名古屋市天白区原1-2213 |
 Local appearance photo
現地外観写真
 Floor plan
間取り図
Location
|