|
|
Funabashi, Chiba Prefecture
千葉県船橋市
|
|
Shinkeiseisen "Futawamukodai" walk 10 minutes
新京成線「二和向台」歩10分
|
|
Futawamukodai a 10-minute walk from the train station, Commute ・ It is also useful to go to school. Facing south, Yang per a dedicated garden with ・ Good to draft both!
二和向台駅より徒歩10分、通勤・通学にも便利です。南向き、専用庭つきで陽当り・通風ともに良好!
|
|
● good location, a 10-minute walk from Futawamukōdai Station, It is also useful to commute. ● facing south, Yang per per corner room ・ Good to draft both! ● The interior is new skeleton reform (fiscal completion scheduled 25 October)! ● First, Please feel free to contact us!
●二和向台駅より徒歩10分の好立地、通勤にも便利です。●南向き、角部屋につき陽当り・通風ともに良好!●内装は新規スケルトンリフォーム(平成25年10月完了予定)!●まずはお気軽にお問合せ下さい!
|
Features pickup 特徴ピックアップ | | Interior renovation / Facing south / Corner dwelling unit / Yang per good / All room storage / A quiet residential area / Face-to-face kitchen / South balcony / Ventilation good / Private garden 内装リフォーム /南向き /角住戸 /陽当り良好 /全居室収納 /閑静な住宅地 /対面式キッチン /南面バルコニー /通風良好 /専用庭 |
Property name 物件名 | | Haynes Funabashi ハイネス船橋 |
Price 価格 | | 15.8 million yen 1580万円 |
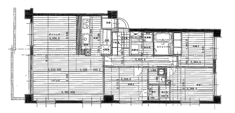
Floor plan 間取り | | 3LDK 3LDK |
Units sold 販売戸数 | | 1 units 1戸 |
Total units 総戸数 | | 56 units 56戸 |
Occupied area 専有面積 | | 82.73 sq m (25.02 tsubo) (center line of wall) 82.73m2(25.02坪)(壁芯) |
Other area その他面積 | | Balcony area: 9.25 sq m , Private garden: 20.1 sq m (use fee 300 yen / Month) バルコニー面積:9.25m2、専用庭:20.1m2(使用料300円/月) |
Whereabouts floor / structures and stories 所在階/構造・階建 | | 1st floor / RC4 story 1階/RC4階建 |
Completion date 完成時期(築年月) | | 11 May 1990 1990年11月 |
Address 住所 | | Funabashi, Chiba Prefecture Futawanishi 4 千葉県船橋市二和西4 |
Traffic 交通 | | Shinkeiseisen "Futawamukodai" walk 10 minutes Shinkeiseisen "kamagaya great buddha" walk 15 minutes Shinkeiseisen "Misaki" walk 18 minutes 新京成線「二和向台」歩10分 新京成線「鎌ヶ谷大仏」歩15分 新京成線「三咲」歩18分
|
Person in charge 担当者より | | Person in charge of real-estate and building Naganuma Hidemasa industry experience: with a feeling of gratitude to the encounter of a one-year customers have to work. I will do my best hard to give you to say thank you always from customers. 担当者宅建長沼 秀政業界経験:1年お客様との出会いに感謝の気持ちを持って仕事をしています。お客様から必ずありがとうと言っていただけるように一生懸命頑張ります。 |
Contact お問い合せ先 | | TEL: 0800-603-0702 [Toll free] mobile phone ・ Also available from PHS Caller ID is not notified Please contact the "saw SUUMO (Sumo)" If it does not lead, If the real estate company TEL:0800-603-0702【通話料無料】携帯電話・PHSからもご利用いただけます 発信者番号は通知されません 「SUUMO(スーモ)を見た」と問い合わせください つながらない方、不動産会社の方は
|
Administrative expense 管理費 | | 10,300 yen / Month (consignment (cyclic)) 1万300円/月(委託(巡回)) |
Repair reserve 修繕積立金 | | 12,750 yen / Month 1万2750円/月 |
Time residents 入居時期 | | Consultation 相談 |
Whereabouts floor 所在階 | | 1st floor 1階 |
Direction 向き | | South 南 |
Renovation リフォーム | | October 2013 interior renovation completed (kitchen ・ bathroom ・ toilet ・ wall ・ floor ・ all rooms) 2013年10月内装リフォーム済(キッチン・浴室・トイレ・壁・床・全室) |
Overview and notices その他概要・特記事項 | | Contact: Naganuma Hidemasa 担当者:長沼 秀政 |
Structure-storey 構造・階建て | | RC4 story RC4階建 |
Site of the right form 敷地の権利形態 | | Ownership 所有権 |
Use district 用途地域 | | One middle and high 1種中高 |
Parking lot 駐車場 | | Sky Mu 空無 |
Company profile 会社概要 | | <Mediation> Minister of Land, Infrastructure and Transport (11) No. 002401 (the company), Chiba Prefecture Building Lots and Buildings Transaction Business Association (Corporation) metropolitan area real estate Fair Trade Council member (Ltd.) a central residential Porras residence of Information Center Minamikashiwa office Yubinbango277-0075 Kashiwa City, Chiba Prefecture Minamikashiwa center 6-3 S509KING205,105 <仲介>国土交通大臣(11)第002401号(社)千葉県宅地建物取引業協会会員 (公社)首都圏不動産公正取引協議会加盟(株)中央住宅ポラス住まいの情報館 南柏営業所〒277-0075 千葉県柏市南柏中央6-3 S509KING205,105 |