Used Apartments » Kanto » Chiba Prefecture » Funabashi
 
| | Funabashi, Chiba Prefecture 千葉県船橋市 |
| Shinkeiseisen "Yakuendai" walk 8 minutes 新京成線「薬園台」歩8分 |
| Renovated 4LDK apartment there is a large roof balcony! 大型のルーフバルコニーがあるリフォーム済み4LDKマンション! |
| ■ It is ready-to-move-in ■ Pets can be breeding (with breeding bylaws) ■ After-sales service guaranteed apartment ■ It is the surrounding environment enhancement Good location to elementary and junior high schools and train stations shopping facility is within a 10-minute walk ■即入居可能です ■ペット飼育可能です(飼育細則あり) ■アフターサービス保証付きのマンション ■周辺環境充実です 小中学校や駅買い物施設までが徒歩10分以内の好立地 |
Features pickup 特徴ピックアップ | | Immediate Available / Interior renovation / System kitchen / Corner dwelling unit / A quiet residential area / Japanese-style room / Face-to-face kitchen / Barrier-free / 2 or more sides balcony / Southeast direction / Double-glazing / Elevator / Warm water washing toilet seat / TV monitor interphone / Ventilation good / Walk-in closet / Pets Negotiable / roof balcony 即入居可 /内装リフォーム /システムキッチン /角住戸 /閑静な住宅地 /和室 /対面式キッチン /バリアフリー /2面以上バルコニー /東南向き /複層ガラス /エレベーター /温水洗浄便座 /TVモニタ付インターホン /通風良好 /ウォークインクロゼット /ペット相談 /ルーフバルコニー | Property name 物件名 | | Comfort Palace Yakuendai コンフォートパレス薬園台 | Price 価格 | | 26,800,000 yen 2680万円 | Floor plan 間取り | | 4LDK 4LDK | Units sold 販売戸数 | | 1 units 1戸 | Total units 総戸数 | | 50 units 50戸 | Occupied area 専有面積 | | 87.08 sq m (26.34 tsubo) (center line of wall) 87.08m2(26.34坪)(壁芯) | Other area その他面積 | | Balcony area: 19.23 sq m , Roof balcony: 19.23 sq m (use fee Mu) バルコニー面積:19.23m2、ルーフバルコニー:19.23m2(使用料無) | Whereabouts floor / structures and stories 所在階/構造・階建 | | 6th floor / RC7 story 6階/RC7階建 | Completion date 完成時期(築年月) | | February 2007 2007年2月 | Address 住所 | | Funabashi, Chiba Prefecture sandwiched cho 3 千葉県船橋市飯山満町3 | Traffic 交通 | | Shinkeiseisen "Yakuendai" walk 8 minutes 新京成線「薬園台」歩8分
| Person in charge 担当者より | | [Regarding this property.] Pets can be breeding! This turnkey listing already interior renovation! 【この物件について】ペット飼育可能です!内装リフォーム済みで即入居可能物件です! | Contact お問い合せ先 | | TEL: 0800-601-6262 [Toll free] mobile phone ・ Also available from PHS Caller ID is not notified Please contact the "saw SUUMO (Sumo)" If it does not lead, If the real estate company TEL:0800-601-6262【通話料無料】携帯電話・PHSからもご利用いただけます 発信者番号は通知されません 「SUUMO(スーモ)を見た」と問い合わせください つながらない方、不動産会社の方は
| Administrative expense 管理費 | | 18,300 yen / Month (consignment (cyclic)) 1万8300円/月(委託(巡回)) | Repair reserve 修繕積立金 | | 3400 yen / Month 3400円/月 | Expenses 諸費用 | | Others: 700 yen / Month その他:700円/月 | Time residents 入居時期 | | Immediate available 即入居可 | Whereabouts floor 所在階 | | 6th floor 6階 | Direction 向き | | Southeast 南東 | Renovation リフォーム | | 2013 May interior renovation completed (wall ・ Around the water faucet replacement, etc.) 2013年5月内装リフォーム済(壁・水回り水栓交換など) | Structure-storey 構造・階建て | | RC7 story RC7階建 | Site of the right form 敷地の権利形態 | | Ownership 所有権 | Use district 用途地域 | | One middle and high 1種中高 | Company profile 会社概要 | | <Mediation> Governor of Chiba Prefecture (2) No. 015460 (Ltd.) HRE Tsudanuma store Yubinbango275-0026 Narashino, Chiba Prefecture Yatsu 6-11-28 <仲介>千葉県知事(2)第015460号(株)HRE津田沼店〒275-0026 千葉県習志野市谷津6-11-28 |
Local appearance photo現地外観写真  Built towers in the rich living environment Comfort Palace Yakuendai
豊かな住環境にそびえ建つコンフォートパレス薬園台
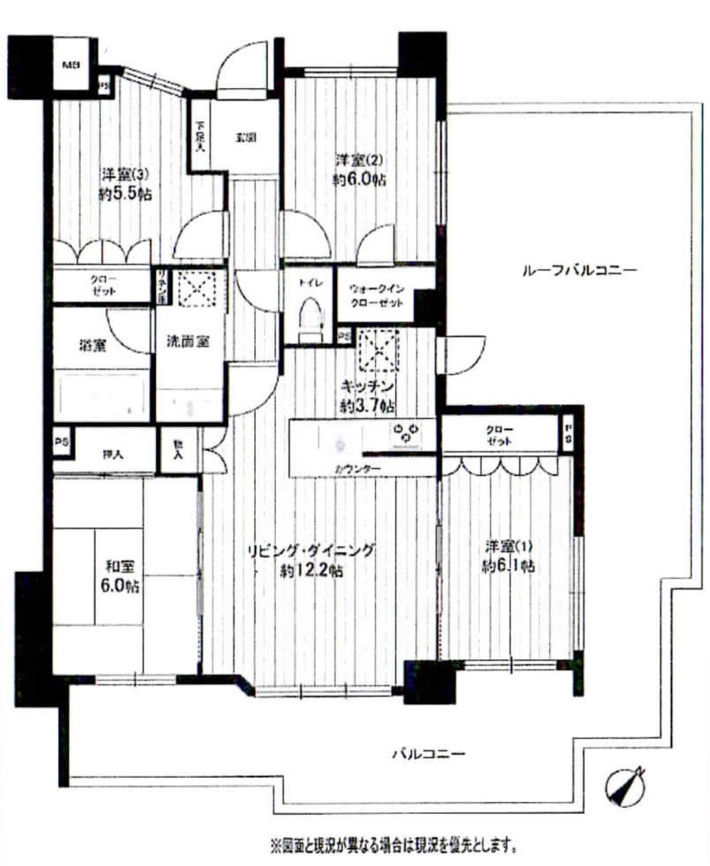
Floor plan間取り図  4LDK, Price 26,800,000 yen, Occupied area 87.08 sq m , Balcony area 19.23 sq m in peace in 4LDK after-sales service guaranteed apartment with large roof balcony you will Osumai.
4LDK、価格2680万円、専有面積87.08m2、バルコニー面積19.23m2 大きなルーフバルコニーのある4LDKアフターサービス保証付きマンションで安心してお住いになれます。
Local appearance photo現地外観写真  Comfort was taken from the entire surface of the road ・ Palace is Yakuendai.
全面道路より撮影したコンフォート・パレス薬園台です。
Entranceエントランス  A feeling of cleanliness in the entrance
清潔感のあるエントランス内
Kitchenキッチン  Spacious counter kitchen
広々としたカウンターキッチン
Livingリビング  The room overlooks neat because there is no hanging cupboard in the living room the top of from the kitchen.
キッチンからのリビング上部につり戸棚がないのでお部屋がすっきり見渡せます。
Bathroom浴室  Mirror of the bath is a new article.
お風呂の鏡は新品です。
Livingリビング  Shooting from the 6-mat Japanese-style living and Tsuzukiai
リビングと続き間の和室6畳からの撮影
Non-living roomリビング以外の居室  Western also has a 6-mat closet.
洋室6畳クローゼットも付いてます。
Wash basin, toilet洗面台・洗面所  Washbasin washing new exchange already
洗面台水洗新規交換済
Entranceエントランス  It has been very beautiful in the face of the apartment.
マンションの顔とてもきれいにされておりました。
Local appearance photo現地外観写真  The name of the apartment
マンションの名前
Livingリビング  Since the living and Western-style 6-mat is turned Tsuzukiai you may get the feeling of opening keep open the sliding door.
リビングと洋室6畳が続き間になっているので引き戸を開けておくと開放感があります。
Non-living roomリビング以外の居室  There is also of course a closet 6-mat Japanese-style room.
和室6畳押入れももちろんあります。
Local appearance photo現地外観写真  View is also good because it is built on a hill.
高台に建ってるので眺望もいいです。
 I tried to shoot from a different angle.
別の角度から撮影してみました。
Location
|