1996February
19.9 million yen, 3DK, 56 sq m
Used Apartments » Kanto » Chiba Prefecture » Ichikawa
 
| | Ichikawa City, Chiba Prefecture 千葉県市川市 |
| Tokyo Metro Tozai Line "Urayasu" walk 14 minutes 東京メトロ東西線「浦安」歩14分 |
Property name 物件名 | | Leksell Mansion Urayasu レクセルマンション浦安 | Price 価格 | | 19.9 million yen 1990万円 | Floor plan 間取り | | 3DK 3DK | Units sold 販売戸数 | | 1 units 1戸 | Total units 総戸数 | | 46 units 46戸 | Occupied area 専有面積 | | 56 sq m (center line of wall) 56m2(壁芯) | Other area その他面積 | | Balcony area: 8.4 sq m バルコニー面積:8.4m2 | Whereabouts floor / structures and stories 所在階/構造・階建 | | Second floor / RC7 story 2階/RC7階建 | Completion date 完成時期(築年月) | | February 1996 1996年2月 | Address 住所 | | Ichikawa City, Chiba Prefecture Shimajiri 千葉県市川市島尻 | Traffic 交通 | | Tokyo Metro Tozai Line "Urayasu" walk 14 minutes 東京メトロ東西線「浦安」歩14分
| Person in charge 担当者より | | The person in charge Inoue Yuta 担当者井上 雄太 | Contact お問い合せ先 | | Sumitomo Real Estate Sales Co., Ltd. Urayasu business center TEL: 047-355-6311 Please inquire as "saw SUUMO (Sumo)" 住友不動産販売(株)浦安営業センターTEL:047-355-6311「SUUMO(スーモ)を見た」と問い合わせください | Administrative expense 管理費 | | 12,000 yen / Month (consignment (commuting)) 1万2000円/月(委託(通勤)) | Repair reserve 修繕積立金 | | 9520 yen / Month 9520円/月 | Time residents 入居時期 | | Immediate available 即入居可 | Whereabouts floor 所在階 | | Second floor 2階 | Direction 向き | | Southeast 南東 | Overview and notices その他概要・特記事項 | | Contact: Inoue Yuta 担当者:井上 雄太 | Structure-storey 構造・階建て | | RC7 story RC7階建 | Site of the right form 敷地の権利形態 | | Ownership 所有権 | Use district 用途地域 | | One dwelling 1種住居 | Company profile 会社概要 | | <Mediation> Minister of Land, Infrastructure and Transport (11) No. 002077 (one company) Real Estate Association (Corporation) metropolitan area real estate Fair Trade Council member Sumitomo Real Estate Sales Co., Ltd. Urayasu business center Yubinbango279-0004 Urayasu, Chiba Prefecture Nekozane 5-18-16 Twin Tower Urayasu second floor <仲介>国土交通大臣(11)第002077号(一社)不動産協会会員 (公社)首都圏不動産公正取引協議会加盟住友不動産販売(株)浦安営業センター〒279-0004 千葉県浦安市猫実5-18-16 ツインタワー浦安2階 |
Local appearance photo現地外観写真  Appearance 1
外観1
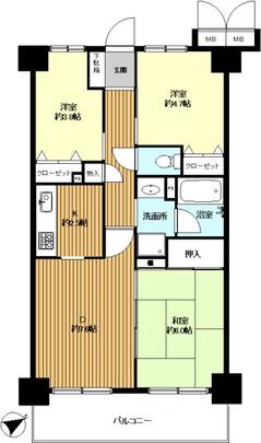
 Floor plan
間取り図
Location
|