Used Apartments » Kanto » Chiba Prefecture » Matsudo
 
| | Matsudo, Chiba Prefecture 千葉県松戸市 |
| JR Joban Line "Matsudo" walk 11 minutes JR常磐線「松戸」歩11分 |
| New Year campaign! ! Used apartment until February 28, ・ To the customer's contracts concluded secondhand House, "sharp LED Aquos 40-inch TV, "gift! 新春キャンペーン!!2月28日までに中古マンション・中古戸建てをご成約のお客様に、『シャープ LEDアクオス40型テレビ』プレゼント! |
| Interior renovation, Flat to the stationese-style room, Face-to-face kitchen, Elevator, Leafy residential area, Southwestward, Delivery Box, Private garden 内装リフォーム、駅まで平坦、和室、対面式キッチン、エレベーター、緑豊かな住宅地、南西向き、宅配ボックス、専用庭 |
Features pickup 特徴ピックアップ | | Interior renovation / Flat to the station / Japanese-style room / Face-to-face kitchen / Elevator / Leafy residential area / Southwestward / Delivery Box / Private garden 内装リフォーム /駅まで平坦 /和室 /対面式キッチン /エレベーター /緑豊かな住宅地 /南西向き /宅配ボックス /専用庭 | Property name 物件名 | | Shan Nord Matsudo シャンノール松戸 | Price 価格 | | 24,900,000 yen 2490万円 | Floor plan 間取り | | 3LDK 3LDK | Units sold 販売戸数 | | 1 units 1戸 | Total units 総戸数 | | 35 units 35戸 | Occupied area 専有面積 | | 73.05 sq m (center line of wall) 73.05m2(壁芯) | Other area その他面積 | | Private garden: 14.08 sq m (use fee 350 yen / Month), Terrace: 12 sq m (use fee Mu) 専用庭:14.08m2(使用料350円/月)、テラス:12m2(使用料無) | Whereabouts floor / structures and stories 所在階/構造・階建 | | 1st floor / RC5 story 1階/RC5階建 | Completion date 完成時期(築年月) | | March 2000 2000年3月 | Address 住所 | | Matsudo, Chiba Prefecture Hinokuchi 千葉県松戸市樋野口 | Traffic 交通 | | JR Joban Line "Matsudo" walk 11 minutes JR常磐線「松戸」歩11分
| Related links 関連リンク | | [Related Sites of this company] 【この会社の関連サイト】 | Person in charge 担当者より | | Rep Komine Keiichi Age: 40 Daigyokai experience: by now beginning 12 years, My name is Keiichi Komine. I think whether there is a variety of your anxiety and a lot of dreams in your purchase of My Home. Please hit all. We believe that it is a good help. 担当者小峰 恵一年齢:40代業界経験:12年初めまして、小峰恵一と申します。マイホームのご購入にはたくさんの夢と色々な御不安があるかと思います。全てぶつけて下さい。良きお手伝いができると信じております。 | Contact お問い合せ先 | | TEL: 0800-602-4417 [Toll free] mobile phone ・ Also available from PHS Caller ID is not notified Please contact the "saw SUUMO (Sumo)" If it does not lead, If the real estate company TEL:0800-602-4417【通話料無料】携帯電話・PHSからもご利用いただけます 発信者番号は通知されません 「SUUMO(スーモ)を見た」と問い合わせください つながらない方、不動産会社の方は
| Administrative expense 管理費 | | 10,400 yen / Month (consignment (commuting)) 1万400円/月(委託(通勤)) | Repair reserve 修繕積立金 | | 17,590 yen / Month 1万7590円/月 | Expenses 諸費用 | | CATV flat rate: 315 yen / Month CATV定額料金:315円/月 | Time residents 入居時期 | | Consultation 相談 | Whereabouts floor 所在階 | | 1st floor 1階 | Direction 向き | | Southwest 南西 | Renovation リフォーム | | 2013 May interior renovation completed (kitchen ・ toilet ・ wall ・ House cleaning) 2013年5月内装リフォーム済(キッチン・トイレ・壁・ハウスクリーニング) | Overview and notices その他概要・特記事項 | | Contact: Komine Keiichi 担当者:小峰 恵一 | Structure-storey 構造・階建て | | RC5 story RC5階建 | Site of the right form 敷地の権利形態 | | Ownership 所有権 | Use district 用途地域 | | One dwelling 1種住居 | Parking lot 駐車場 | | Sky Mu 空無 | Company profile 会社概要 | | <Mediation> Governor of Chiba Prefecture (1) No. 016010 (Corporation) metropolitan area real estate Fair Trade Council member Pitattohausu Nagareyama central store (Ltd.) Ibis home Yubinbango270-0163 Chiba Prefecture Nagareyama Minami Nagareyama 7-1-9 <仲介>千葉県知事(1)第016010号(公社)首都圏不動産公正取引協議会会員 ピタットハウス流山中央店(株)アイビスホーム〒270-0163 千葉県流山市南流山7-1-9 |
Local appearance photo現地外観写真  Local (October 31, 2013) Shooting
現地(2013年10月31日)撮影
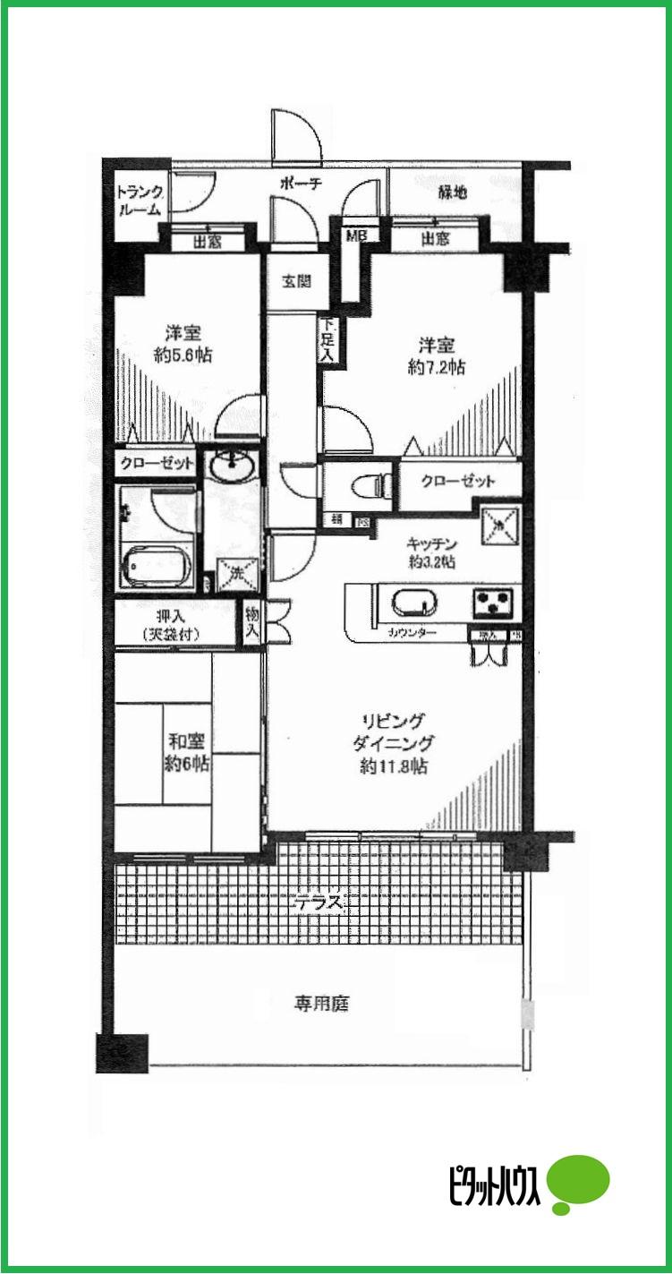
Floor plan間取り図  3LDK, Price 24,900,000 yen, Occupied area 73.05 sq m
3LDK、価格2490万円、専有面積73.05m2
Bathroom浴室  Indoor (July 25, 2013) Shooting
室内(2013年7月25日)撮影
Local appearance photo現地外観写真  Site (July 25, 2013) Shooting
現地(2013年7月25日)撮影
Livingリビング  Indoor (July 25, 2013) Shooting
室内(2013年7月25日)撮影
Kitchenキッチン  Indoor (July 25, 2013) Shooting
室内(2013年7月25日)撮影
Garden庭  Site (July 25, 2013) Shooting
現地(2013年7月25日)撮影
Kindergarten ・ Nursery幼稚園・保育園  Northern kindergarten
北部幼稚園
Local appearance photo現地外観写真  Local (October 31, 2013) Shooting
現地(2013年10月31日)撮影
Primary school小学校  Matsudo City Central Elementary School
松戸市立中部小学校
Junior high school中学校  Matsudo Municipal first junior high school
松戸市立第一中学校
Hospital病院  Tokatsu Clinic hospital
東葛クリニック病院
Shopping centreショッピングセンター  Box Hill
ボックスヒル
 Isetan Matsudo Store
伊勢丹松戸店
Supermarketスーパー  Daiei Matsudo Nishiguchi shop
ダイエー松戸西口店
Station駅  JR Matsudo Station
JR松戸駅
Presentプレゼント  New Year campaign! ! Used apartment until February 28, ・ To the customer's contracts concluded secondhand House, "sharp LED Aquos 40-inch TV, "gift!
新春キャンペーン!!2月28日までに中古マンション・中古戸建てをご成約のお客様に、『シャープ LEDアクオス40型テレビ』プレゼント!
Location
|