Used Apartments » Kanto » Chiba Prefecture » Matsudo
 
| | Matsudo, Chiba Prefecture 千葉県松戸市 |
| JR Joban Line "Kitakogane" walk 7 minutes JR常磐線「北小金」歩7分 |
| New Year campaign! ! Used apartment until February 28, ・ To the customer's contracts concluded secondhand House, "sharp LED Aquos 40-inch TV, "gift! 新春キャンペーン!!2月28日までに中古マンション・中古戸建てをご成約のお客様に、『シャープ LEDアクオス40型テレビ』プレゼント! |
| Super close, Interior renovation, System kitchen, Yang per good, A quiet residential areaese-style room, Washbasin with shower, Wide balcony, Plane parking, 2 or more sides balcony, Bicycle-parking space, Elevator, Warm water washing toilet seat, High-function toilet, Bike shelter スーパーが近い、内装リフォーム、システムキッチン、陽当り良好、閑静な住宅地、和室、シャワー付洗面台、ワイドバルコニー、平面駐車場、2面以上バルコニー、駐輪場、エレベーター、温水洗浄便座、高機能トイレ、バイク置場 |
Features pickup 特徴ピックアップ | | Super close / Interior renovation / System kitchen / Yang per good / A quiet residential area / Japanese-style room / Washbasin with shower / Wide balcony / Plane parking / 2 or more sides balcony / Bicycle-parking space / Elevator / Warm water washing toilet seat / High-function toilet / Bike shelter スーパーが近い /内装リフォーム /システムキッチン /陽当り良好 /閑静な住宅地 /和室 /シャワー付洗面台 /ワイドバルコニー /平面駐車場 /2面以上バルコニー /駐輪場 /エレベーター /温水洗浄便座 /高機能トイレ /バイク置場 | Property name 物件名 | | Lions Garden Matsudo ライオンズガーデン新松戸 | Price 価格 | | 17.8 million yen 1780万円 | Floor plan 間取り | | 3LDK 3LDK | Units sold 販売戸数 | | 1 units 1戸 | Occupied area 専有面積 | | 61.67 sq m 61.67m2 | Other area その他面積 | | Balcony area: 9.99 sq m バルコニー面積:9.99m2 | Whereabouts floor / structures and stories 所在階/構造・階建 | | 3rd floor / SRC8 floors 1 underground story 3階/SRC8階地下1階建 | Completion date 完成時期(築年月) | | January 1996 1996年1月 | Address 住所 | | Matsudo, Chiba Prefecture Oyaguchi 千葉県松戸市大谷口 | Traffic 交通 | | JR Joban Line "Kitakogane" walk 7 minutes JR常磐線「北小金」歩7分 | Related links 関連リンク | | [Related Sites of this company] 【この会社の関連サイト】 | Person in charge 担当者より | | Rep Komine Keiichi Age: 40 Daigyokai experience: by now beginning 12 years, My name is Keiichi Komine. I think whether there is a variety of your anxiety and a lot of dreams in your purchase of My Home. Please hit all. We believe that it is a good help. 担当者小峰 恵一年齢:40代業界経験:12年初めまして、小峰恵一と申します。マイホームのご購入にはたくさんの夢と色々な御不安があるかと思います。全てぶつけて下さい。良きお手伝いができると信じております。 | Contact お問い合せ先 | | TEL: 0800-602-4417 [Toll free] mobile phone ・ Also available from PHS Caller ID is not notified Please contact the "saw SUUMO (Sumo)" If it does not lead, If the real estate company TEL:0800-602-4417【通話料無料】携帯電話・PHSからもご利用いただけます 発信者番号は通知されません 「SUUMO(スーモ)を見た」と問い合わせください つながらない方、不動産会社の方は
| Administrative expense 管理費 | | 7050 yen / Month (consignment (resident)) 7050円/月(委託(常駐)) | Repair reserve 修繕積立金 | | 16,600 yen / Month 1万6600円/月 | Time residents 入居時期 | | Consultation 相談 | Whereabouts floor 所在階 | | 3rd floor 3階 | Direction 向き | | West 西 | Renovation リフォーム | | 2013 September interior renovation completed (kitchen ・ bathroom ・ toilet ・ wall ・ floor ・ House cleaning, etc.) 2013年9月内装リフォーム済(キッチン・浴室・トイレ・壁・床・ハウスクリーニング他) | Overview and notices その他概要・特記事項 | | Contact: Komine Keiichi 担当者:小峰 恵一 | Structure-storey 構造・階建て | | SRC8 floors 1 underground story SRC8階地下1階建 | Site of the right form 敷地の権利形態 | | Ownership 所有権 | Use district 用途地域 | | One middle and high 1種中高 | Parking lot 駐車場 | | Site (11,000 yen / Month) 敷地内(1万1000円/月) | Company profile 会社概要 | | <Mediation> Governor of Chiba Prefecture (1) No. 016010 (Corporation) metropolitan area real estate Fair Trade Council member Pitattohausu Nagareyama central store (Ltd.) Ibis home Yubinbango270-0163 Chiba Prefecture Nagareyama Minami Nagareyama 7-1-9 <仲介>千葉県知事(1)第016010号(公社)首都圏不動産公正取引協議会会員 ピタットハウス流山中央店(株)アイビスホーム〒270-0163 千葉県流山市南流山7-1-9 |
Local appearance photo現地外観写真  Local (September 27, 2013) Shooting
現地(2013年9月27日)撮影
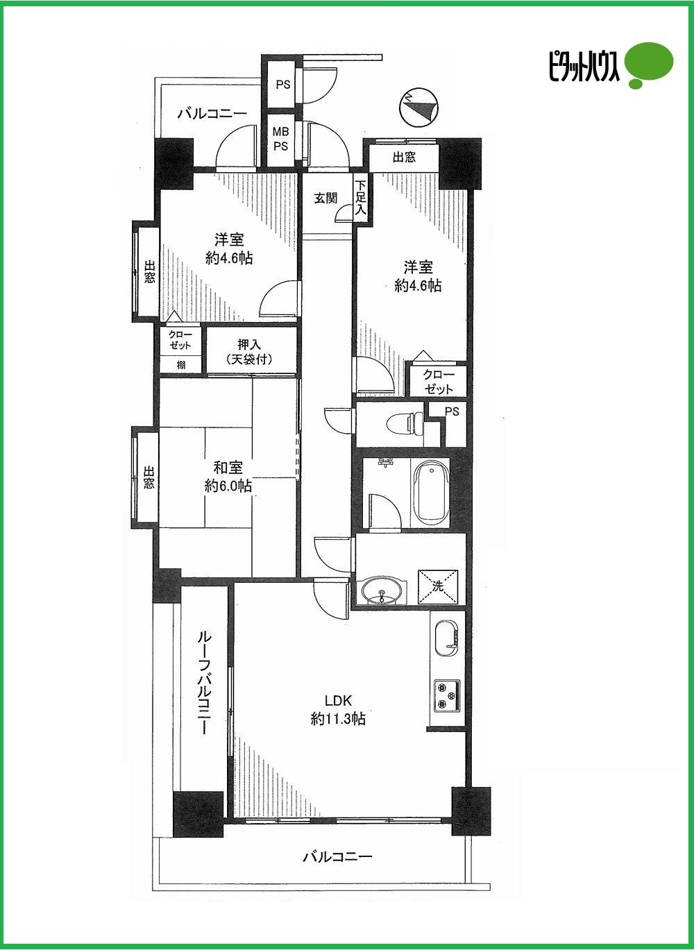
Floor plan間取り図  3LDK, Price 17.8 million yen, Occupied area 61.67 sq m , Balcony area 9.99 sq m
3LDK、価格1780万円、専有面積61.67m2、バルコニー面積9.99m2
Bathroom浴室  Indoor (September 27, 2013) Shooting
室内(2013年9月27日)撮影
Livingリビング  Indoor (September 27, 2013) Shooting
室内(2013年9月27日)撮影
Kitchenキッチン  Indoor (September 27, 2013) Shooting
室内(2013年9月27日)撮影
Non-living roomリビング以外の居室  Indoor (September 27, 2013) Shooting
室内(2013年9月27日)撮影
Entrance玄関  Local (September 27, 2013) Shooting
現地(2013年9月27日)撮影
Wash basin, toilet洗面台・洗面所  Indoor (September 27, 2013) Shooting
室内(2013年9月27日)撮影
Kindergarten ・ Nursery幼稚園・保育園  Great victory Council kindergarten
大勝院幼稚園
Primary school小学校  Matsudo Municipal Tonohiraga Elementary School
松戸市立殿平賀小学校
Junior high school中学校  Matsudo Municipal put away North Junior High School
松戸市立小金北中学校
Park公園  Shimoyama park
下山公園
Hospital病院  Shin-Matsudo Central General Hospital
新松戸中央総合病院
Supermarketスーパー  Oh Mother food Museum Kitakogane Ekimae
おっ母さん食品館北小金駅前店
 Ion Kitakogane shop
イオン北小金店
Station駅  JR Kitakogane Station
JR北小金駅
Presentプレゼント  New Year campaign! ! Used apartment until February 28, ・ To the customer's contracts concluded secondhand House, "sharp LED Aquos 40-inch TV, "gift!
新春キャンペーン!!2月28日までに中古マンション・中古戸建てをご成約のお客様に、『シャープ LEDアクオス40型テレビ』プレゼント!
Location
|