Used Apartments » Kanto » Chiba Prefecture » Sakura City
 
| | Sakura, Chiba Prefecture 千葉県佐倉市 |
| Keisei Main Line "Keisei Sakura" walk 13 minutes 京成本線「京成佐倉」歩13分 |
| 10th floor top floor of the maisonette! Such breadth of detached! Also you can see fireworks from the roof メゾネットタイプの最上階10階!戸建の様な広さ!屋上から花火大会も見れます |
| Pets Negotiable possible apartment! It boasts a view from the room! ペット相談可能なマンション!お部屋からの眺望が自慢です! |
Features pickup 特徴ピックアップ | | Immediate Available / LDK18 tatami mats or more / lake ・ See the pond / It is close to the city / Facing south / Yang per good / All room storage / Flat to the station / top floor ・ No upper floor / Idyll / Washbasin with shower / Toilet 2 places / Plane parking / Bathroom 1 tsubo or more / 2 or more sides balcony / South balcony / Bicycle-parking space / Elevator / Warm water washing toilet seat / TV monitor interphone / Leafy residential area / Mu front building / Ventilation good / Good view / Pets Negotiable / Maintained sidewalk / Fireworks viewing / Flat terrain / Delivery Box / Bike shelter / rooftop 即入居可 /LDK18畳以上 /湖・池が見える /市街地が近い /南向き /陽当り良好 /全居室収納 /駅まで平坦 /最上階・上階なし /田園風景 /シャワー付洗面台 /トイレ2ヶ所 /平面駐車場 /浴室1坪以上 /2面以上バルコニー /南面バルコニー /駐輪場 /エレベーター /温水洗浄便座 /TVモニタ付インターホン /緑豊かな住宅地 /前面棟無 /通風良好 /眺望良好 /ペット相談 /整備された歩道 /花火大会鑑賞 /平坦地 /宅配ボックス /バイク置場 /屋上 | Property name 物件名 | | More Crest Alfaz Sakura モアクレストアルファス佐倉 | Price 価格 | | 17.8 million yen 1780万円 | Floor plan 間取り | | 4LDK 4LDK | Units sold 販売戸数 | | 1 units 1戸 | Total units 総戸数 | | 189 units 189戸 | Occupied area 専有面積 | | 136.67 sq m (registration) 136.67m2(登記) | Other area その他面積 | | Balcony area: 51 sq m , Roof balcony: 54 sq m (use fee 5800 yen / Month) バルコニー面積:51m2、ルーフバルコニー:54m2(使用料5800円/月) | Whereabouts floor / structures and stories 所在階/構造・階建 | | 10th floor / SRC11 story 10階/SRC11階建 | Completion date 完成時期(築年月) | | May 1992 1992年5月 | Address 住所 | | Sakura, Chiba Prefecture Tamachi 千葉県佐倉市田町 | Traffic 交通 | | Keisei Main Line "Keisei Sakura" walk 13 minutes 京成本線「京成佐倉」歩13分
| Contact お問い合せ先 | | TEL: 0800-603-0397 [Toll free] mobile phone ・ Also available from PHS Caller ID is not notified Please contact the "saw SUUMO (Sumo)" If it does not lead, If the real estate company TEL:0800-603-0397【通話料無料】携帯電話・PHSからもご利用いただけます 発信者番号は通知されません 「SUUMO(スーモ)を見た」と問い合わせください つながらない方、不動産会社の方は
| Administrative expense 管理費 | | 17,700 yen / Month (consignment (commuting)) 1万7700円/月(委託(通勤)) | Repair reserve 修繕積立金 | | 7080 yen / Month 7080円/月 | Time residents 入居時期 | | Immediate available 即入居可 | Whereabouts floor 所在階 | | 10th floor 10階 | Direction 向き | | South 南 | Structure-storey 構造・階建て | | SRC11 story SRC11階建 | Site of the right form 敷地の権利形態 | | Ownership 所有権 | Parking lot 駐車場 | | Site (8000 yen / Month) 敷地内(8000円/月) | Company profile 会社概要 | | <Mediation> Minister of Land, Infrastructure and Transport (11) No. 001961 (the company), Chiba Prefecture Building Lots and Buildings Transaction Business Association (Corporation) metropolitan area real estate Fair Trade Council member Tokai housing (Ltd.) Usui (thin) branch Yubinbango285-0837 Sakura, Chiba Prefecture Ojidai 1-27-19 <仲介>国土交通大臣(11)第001961号(社)千葉県宅地建物取引業協会会員 (公社)首都圏不動産公正取引協議会加盟東海住宅(株)臼井(うすい)支店〒285-0837 千葉県佐倉市王子台1-27-19 |
Local appearance photo現地外観写真  There is no building in front, 11-storey apartment!
前面に棟がない、11階建てマンション!
Entranceエントランス  Green landscaped a nice entrance.
手入れのいきとどいた緑が素敵なエントランス。
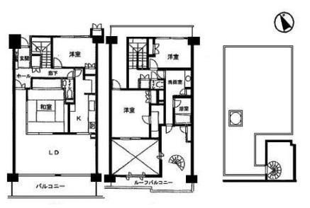
Floor plan間取り図  4LDK, Price 17.8 million yen, Footprint 136.67 sq m , Spacious floor plan can also be used balcony area 51 sq m rooftop
4LDK、価格1780万円、専有面積136.67m2、バルコニー面積51m2 屋上も使えるゆったりとした間取り
Livingリビング  8 pledge spacious Japanese-style
8帖のゆったりとした和室
 Bathroom
浴室
 Same specifications photo (kitchen)
同仕様写真(キッチン)
Wash basin, toilet洗面台・洗面所  I do not think the apartment, Wash room and spacious.
マンションとは思えない、ゆったりとした洗面室。
Toiletトイレ  Spacious toilet.
ゆったりとしたトイレ。
 View photos from the dwelling unit
住戸からの眺望写真
Access view交通アクセス図  Commute ・ A 13-minute walk to the station I'm happy to go to school!
通勤・通学にうれしい駅まで徒歩13分!
Kitchenキッチン  Yellow of cuteness good kitchen.
黄色のかわいらしいいキッチン。
Location
|