|
|
Chiba Prefecture Shiroi
千葉県白井市
|
|
KitaSosen "Shirai" walk 9 minutes
北総線「白井」歩9分
|
|
KitaSosen "Shirai" station walk 9 minutes! Shopping facilities ・ Living environment is good education facilities near. Good is per yang per 5 floor facing south. Property is furnished.
北総線『白井』駅徒歩9分!買物施設・教育施設が近く住環境良好です。5階部分南向きにつき陽当り良好です。家具付物件です。
|
|
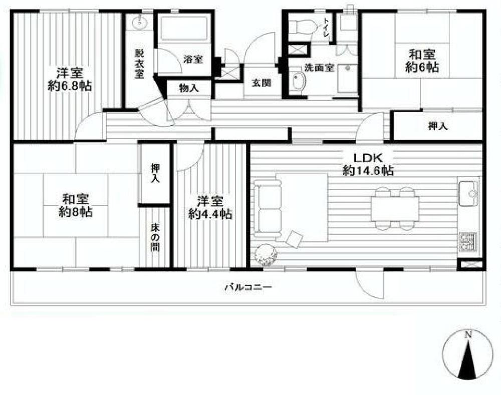
● large family type of occupied area 97.18 sq m! ● Property furnished interior shop coordination! ● see at a glance also intercom visitors with a TV monitor! ● child-rearing environment of 350m peace of mind until the 600m junior high school to elementary school!
●専有面積97.18m2の大型ファミリータイプ!●インテリアショップコーディネートの家具付物件!●TVモニタ付インターホン来訪者も一目で確認!●小学校まで600m中学校まで350m安心の子育て環境!
|
Features pickup 特徴ピックアップ | | Super close / Interior renovation / Facing south / System kitchen / Yang per good / Japanese-style room / South balcony / Flooring Chokawa / Warm water washing toilet seat / TV monitor interphone / Ventilation good / water filter / BS ・ CS ・ CATV スーパーが近い /内装リフォーム /南向き /システムキッチン /陽当り良好 /和室 /南面バルコニー /フローリング張替 /温水洗浄便座 /TVモニタ付インターホン /通風良好 /浄水器 /BS・CS・CATV |
Property name 物件名 | | Nanshan first housing 南山第一住宅 |
Price 価格 | | 9,990,000 yen 999万円 |
Floor plan 間取り | | 4LDK 4LDK |
Units sold 販売戸数 | | 1 units 1戸 |
Total units 総戸数 | | 164 units 164戸 |
Occupied area 専有面積 | | 97.18 sq m (29.39 tsubo) (center line of wall) 97.18m2(29.39坪)(壁芯) |
Other area その他面積 | | Balcony area: 15.18 sq m バルコニー面積:15.18m2 |
Whereabouts floor / structures and stories 所在階/構造・階建 | | 5th floor / RC5 story 5階/RC5階建 |
Completion date 完成時期(築年月) | | 1980 March 1980年3月 |
Address 住所 | | Chiba Prefecture Shiroi Nanshan 1 千葉県白井市南山1 |
Traffic 交通 | | KitaSosen "Shirai" walk 9 minutes KitaSosen "Komuro" walk 37 minutes KitaSosen "west Shirai" walk 34 minutes 北総線「白井」歩9分 北総線「小室」歩37分 北総線「西白井」歩34分
|
Person in charge 担当者より | | Person in charge of real-estate and building Miura Hiroyuki industry experience: I love 2 years house hunting. We will help you in all sincerity to you live. There is I also Relocation experience. If you have that question and anxiety, I'd love to, To me, please contact us. 担当者宅建三浦 洋之業界経験:2年家探しが大好きです。お客様のお住まいを誠心誠意お探しします。私も住み替え経験があります。疑問や不安な事がございましたら、是非、私にお問合せ下さい。 |
Contact お問い合せ先 | | TEL: 0800-603-0702 [Toll free] mobile phone ・ Also available from PHS Caller ID is not notified Please contact the "saw SUUMO (Sumo)" If it does not lead, If the real estate company TEL:0800-603-0702【通話料無料】携帯電話・PHSからもご利用いただけます 発信者番号は通知されません 「SUUMO(スーモ)を見た」と問い合わせください つながらない方、不動産会社の方は
|
Administrative expense 管理費 | | 6700 yen / Month (consignment (commuting)) 6700円/月(委託(通勤)) |
Repair reserve 修繕積立金 | | 18,000 yen / Month 1万8000円/月 |
Time residents 入居時期 | | Immediate available 即入居可 |
Whereabouts floor 所在階 | | 5th floor 5階 |
Direction 向き | | South 南 |
Renovation リフォーム | | 2013 September interior renovation completed (kitchen ・ bathroom ・ toilet ・ wall ・ floor ・ all rooms ・ House cleaning) 2013年9月内装リフォーム済(キッチン・浴室・トイレ・壁・床・全室・ハウスクリーニング) |
Overview and notices その他概要・特記事項 | | Contact: Miura Hiroyuki 担当者:三浦 洋之 |
Structure-storey 構造・階建て | | RC5 story RC5階建 |
Site of the right form 敷地の権利形態 | | Ownership 所有権 |
Use district 用途地域 | | One middle and high 1種中高 |
Parking lot 駐車場 | | Site (5000 yen ~ 6000 yen / Month) 敷地内(5000円 ~ 6000円/月) |
Company profile 会社概要 | | <Mediation> Minister of Land, Infrastructure and Transport (11) No. 002401 (the company), Chiba Prefecture Building Lots and Buildings Transaction Business Association (Corporation) metropolitan area real estate Fair Trade Council member (Ltd.) a central residential Porras residence of Information Center Minamikashiwa office Yubinbango277-0075 Kashiwa City, Chiba Prefecture Minamikashiwa center 6-3 S509KING205,105 <仲介>国土交通大臣(11)第002401号(社)千葉県宅地建物取引業協会会員 (公社)首都圏不動産公正取引協議会加盟(株)中央住宅ポラス住まいの情報館 南柏営業所〒277-0075 千葉県柏市南柏中央6-3 S509KING205,105 |