|
|
Tsuchiura, Ibaraki Prefecture
茨城県土浦市
|
|
JR Joban Line "Kandatsu" walk 9 minutes
JR常磐線「神立」歩9分
|
|
JR Joban Line "Kandatsu" walk about 9 minutes to the station Only in the first floor garden Kandatsu about 700m up to elementary school Up to about Tsuchiura fifth junior high school 3.5km Up to about Super Marumo 400m Elevator
JR常磐線「神立」駅まで徒歩約9分 1階部分で専用庭付き 神立小学校まで約700m 土浦第五中学校まで約3.5km スーパーまるもまで約400m エレベータ
|
|
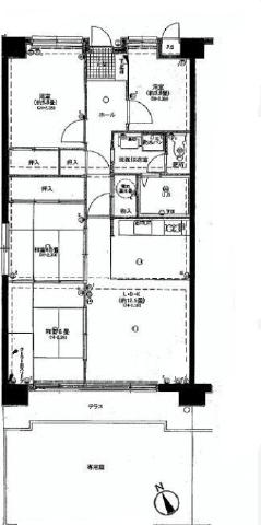
Facing south, System kitchen, Yang per good, LDK15 tatami mats or moreese-style room, Wide balcony, South balcony, Elevator, Ventilation good, Private garden
南向き、システムキッチン、陽当り良好、LDK15畳以上、和室、ワイドバルコニー、南面バルコニー、エレベーター、通風良好、専用庭
|
Features pickup 特徴ピックアップ | | Facing south / System kitchen / Yang per good / LDK15 tatami mats or more / Japanese-style room / Wide balcony / South balcony / Elevator / Ventilation good / Private garden 南向き /システムキッチン /陽当り良好 /LDK15畳以上 /和室 /ワイドバルコニー /南面バルコニー /エレベーター /通風良好 /専用庭 |
Property name 物件名 | | Castle Mansion Kandatsu キャッスルマンション神立 |
Price 価格 | | 9.8 million yen 980万円 |
Floor plan 間取り | | 4LDK 4LDK |
Units sold 販売戸数 | | 1 units 1戸 |
Occupied area 専有面積 | | 72.06 sq m 72.06m2 |
Other area その他面積 | | Balcony area: 8.36 sq m バルコニー面積:8.36m2 |
Whereabouts floor / structures and stories 所在階/構造・階建 | | 1st floor / RC6 story 1階/RC6階建 |
Completion date 完成時期(築年月) | | June 1991 1991年6月 |
Address 住所 | | Tsuchiura, Ibaraki Prefecture Kandatsuchuo 3 茨城県土浦市神立中央3 |
Traffic 交通 | | JR Joban Line "Kandatsu" walk 9 minutes JR Joban Line "Tsuchiura" walk 80 minutes JR常磐線「神立」歩9分 JR常磐線「土浦」歩80分
|
Related links 関連リンク | | [Related Sites of this company] 【この会社の関連サイト】 |
Person in charge 担当者より | | [Regarding this property.] JR Joban Line "Kandatsu" walk about 9 minutes to the station Only in the first floor garden 【この物件について】JR常磐線「神立」駅まで徒歩約9分 1階部分で専用庭付き |
Contact お問い合せ先 | | TEL: 0800-603-2684 [Toll free] mobile phone ・ Also available from PHS Caller ID is not notified Please contact the "saw SUUMO (Sumo)" If it does not lead, If the real estate company TEL:0800-603-2684【通話料無料】携帯電話・PHSからもご利用いただけます 発信者番号は通知されません 「SUUMO(スーモ)を見た」と問い合わせください つながらない方、不動産会社の方は
|
Administrative expense 管理費 | | 6000 yen / Month (self-management) 6000円/月(自主管理) |
Repair reserve 修繕積立金 | | 8340 yen / Month 8340円/月 |
Time residents 入居時期 | | Consultation 相談 |
Whereabouts floor 所在階 | | 1st floor 1階 |
Direction 向き | | South 南 |
Structure-storey 構造・階建て | | RC6 story RC6階建 |
Site of the right form 敷地の権利形態 | | Ownership 所有権 |
Use district 用途地域 | | Two dwellings 2種住居 |
Parking lot 駐車場 | | Site (5000 yen / Month) 敷地内(5000円/月) |
Company profile 会社概要 | | <Mediation> Minister of Land, Infrastructure and Transport (2) the first 007,026 No. incense Ling Ju販 Corporation Tsukuba Science shop Yubinbango300-2653 Tsukuba, Ibaraki Prefecture Omonoi 1546-2 <仲介>国土交通大臣(2)第007026号香陵住販(株)つくば研究学園店〒300-2653 茨城県つくば市面野井1546-2 |