|
|
Fujisawa, Kanagawa Prefecture
神奈川県藤沢市
|
|
JR Tokaido Line "Tsujido" walk 9 minutes
JR東海道本線「辻堂」歩9分
|
|
Since Tsujido Station is a 9-minute walk, You can go on foot shopping in the popular Terrace Mall Shonan.
辻堂駅が徒歩9分のため、人気のテラスモール湘南でお買物も歩いて行けます。
|
|
Second floor, but there is a dark and prejudice, It may be pretty day so that it can be confirmed in the photo, Bright room. Since the room was also relatively clean your, It might be a good even if the house cleaning is as much as possible to reduce the cost. Please check all means in the field.
2階は暗いと先入観がありますが、写真でも確認できるようにかなり日当りも良く、明るいお部屋です。室内も比較的きれいにお使いでしたので、極力コストを削減されるならハウスクリーニングでも良いかもしれません。是非現地でご確認ください。
|
Features pickup 特徴ピックアップ | | Year Available / It is close to the city / Facing south / Yang per good / All room storage / Flat to the station / A quiet residential area / LDK15 tatami mats or more / Around traffic fewer / South balcony / Elevator / Warm water washing toilet seat / Mu front building / Ventilation good / All living room flooring / Flat terrain 年内入居可 /市街地が近い /南向き /陽当り良好 /全居室収納 /駅まで平坦 /閑静な住宅地 /LDK15畳以上 /周辺交通量少なめ /南面バルコニー /エレベーター /温水洗浄便座 /前面棟無 /通風良好 /全居室フローリング /平坦地 |
Property name 物件名 | | Park Heights Shonan Tsujido パークハイツ湘南辻堂 |
Price 価格 | | 24,800,000 yen 2480万円 |
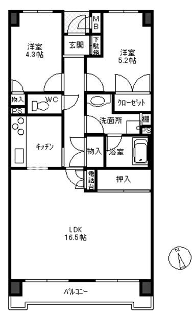
Floor plan 間取り | | 2LDK 2LDK |
Units sold 販売戸数 | | 1 units 1戸 |
Total units 総戸数 | | 73 units 73戸 |
Occupied area 専有面積 | | 62.79 sq m (center line of wall) 62.79m2(壁芯) |
Other area その他面積 | | Balcony area: 8.8 sq m バルコニー面積:8.8m2 |
Whereabouts floor / structures and stories 所在階/構造・階建 | | Second floor / RC8 story 2階/RC8階建 |
Completion date 完成時期(築年月) | | March 1994 1994年3月 |
Address 住所 | | Fujisawa, Kanagawa Prefecture Tsujidoshin cho 神奈川県藤沢市辻堂新町1 |
Traffic 交通 | | JR Tokaido Line "Tsujido" walk 9 minutes JR東海道本線「辻堂」歩9分
|
Related links 関連リンク | | [Related Sites of this company] 【この会社の関連サイト】 |
Person in charge 担当者より | | [Regarding this property.] It is the second floor, but is better than the day thought! 【この物件について】2階ですが日当たりは思ったより良いですよ! |
Contact お問い合せ先 | | Ltd. Toho estate TEL: 0800-805-5869 [Toll free] mobile phone ・ Also available from PHS Caller ID is not notified Please contact the "saw SUUMO (Sumo)" If it does not lead, If the real estate company (株)東峰地所TEL:0800-805-5869【通話料無料】携帯電話・PHSからもご利用いただけます 発信者番号は通知されません 「SUUMO(スーモ)を見た」と問い合わせください つながらない方、不動産会社の方は
|
Administrative expense 管理費 | | 10,370 yen / Month (consignment (commuting)) 1万370円/月(委託(通勤)) |
Repair reserve 修繕積立金 | | 10,390 yen / Month 1万390円/月 |
Time residents 入居時期 | | Consultation 相談 |
Whereabouts floor 所在階 | | Second floor 2階 |
Direction 向き | | South 南 |
Structure-storey 構造・階建て | | RC8 story RC8階建 |
Site of the right form 敷地の権利形態 | | Ownership 所有権 |
Parking lot 駐車場 | | Site (10,000 yen ~ 11,000 yen / Month) 敷地内(1万円 ~ 1万1000円/月) |
Company profile 会社概要 | | <Mediation> Governor of Kanagawa Prefecture (9) No. 013150 (Ltd.) Toho estate Yubinbango251-0042 Fujisawa, Kanagawa Prefecture Tsujidoshin cho 1-1-1 <仲介>神奈川県知事(9)第013150号(株)東峰地所〒251-0042 神奈川県藤沢市辻堂新町1-1-1 |
Construction 施工 | | Toda Corporation (Corporation) 戸田建設(株) |