Used Apartments » Kanto » Kanagawa Prefecture » Fujisawa
 
| | Fujisawa, Kanagawa Prefecture 神奈川県藤沢市 |
| Enoshima Odakyu "Katase Enoshima" walk 11 minutes 小田急江ノ島線「片瀬江ノ島」歩11分 |
| From living Enoshima ・ Fuji Mountain ・ Overlooking the Sagami Bay! 5 Kaitonan ・ Southwest corner room! It is similar interior new construction in renovation. リビングから江の島・富士山・相模湾を望む!5階東南・南西の角部屋!リノベーションで新築同様の内装です。 |
| 2 along the line more accessible, LDK20 tatami mats or more, Facing south, System kitchen, Bathroom Dryer, Corner dwelling unit, Yang per good, All room storage, Flat to the station, Face-to-face kitchen, 2 or more sides balcony, South balcony, Elevator, Renovation, All living room flooring 2沿線以上利用可、LDK20畳以上、南向き、システムキッチン、浴室乾燥機、角住戸、陽当り良好、全居室収納、駅まで平坦、対面式キッチン、2面以上バルコニー、南面バルコニー、エレベーター、リノベーション、全居室フローリング |
Features pickup 特徴ピックアップ | | 2 along the line more accessible / LDK20 tatami mats or more / System kitchen / Bathroom Dryer / Corner dwelling unit / Yang per good / All room storage / Flat to the station / Face-to-face kitchen / 2 or more sides balcony / South balcony / Elevator / Renovation / All living room flooring 2沿線以上利用可 /LDK20畳以上 /システムキッチン /浴室乾燥機 /角住戸 /陽当り良好 /全居室収納 /駅まで平坦 /対面式キッチン /2面以上バルコニー /南面バルコニー /エレベーター /リノベーション /全居室フローリング | Property name 物件名 | | Shonan Towers Already the new interior renovation! Southwest Corner Room 湘南タワーズ 新規内装リノベーション済!南西角部屋 | Price 価格 | | 40,880,000 yen 4088万円 | Floor plan 間取り | | 3LDK 3LDK | Units sold 販売戸数 | | 1 units 1戸 | Occupied area 専有面積 | | 107.23 sq m (center line of wall) 107.23m2(壁芯) | Other area その他面積 | | Balcony area: 24.74 sq m バルコニー面積:24.74m2 | Whereabouts floor / structures and stories 所在階/構造・階建 | | 5th floor / SRC14 story 5階/SRC14階建 | Completion date 完成時期(築年月) | | March 1991 1991年3月 | Address 住所 | | Fujisawa, Kanagawa Prefecture Katasekaigan 1 神奈川県藤沢市片瀬海岸1 | Traffic 交通 | | Enoshima Odakyu "Katase Enoshima" walk 11 minutes Enoshima Electric Railway line "Enoshima" walk 3 minutes Shonan Monorail "Enoshima Shonan" walk 3 minutes 小田急江ノ島線「片瀬江ノ島」歩11分 江ノ島電鉄線「江ノ島」歩3分 湘南モノレール「湘南江の島」歩3分
| Related links 関連リンク | | [Related Sites of this company] 【この会社の関連サイト】 | Person in charge 担当者より | | Rep Yuzawa Junji Age: 30 Daigyokai Experience: 6 years customers seek information, we have provided the motto speed game. There is a wide variety of properties will be the property but there is only one none in the world. We are looking for you live to come true to your ideal with full force. 担当者湯澤 淳二年齢:30代業界経験:6年お客様が求める情報はスピード勝負をモットーに提供しております。様々な物件が御座いますがどれも世界に一つしかない物件となります。お客様の理想に叶うお住まいを全力でお探し致します。 | Contact お問い合せ先 | | TEL: 0800-603-2831 [Toll free] mobile phone ・ Also available from PHS Caller ID is not notified Please contact the "saw SUUMO (Sumo)" If it does not lead, If the real estate company TEL:0800-603-2831【通話料無料】携帯電話・PHSからもご利用いただけます 発信者番号は通知されません 「SUUMO(スーモ)を見た」と問い合わせください つながらない方、不動産会社の方は
| Administrative expense 管理費 | | 28,500 yen / Month (consignment (commuting)) 2万8500円/月(委託(通勤)) | Repair reserve 修繕積立金 | | 10,500 yen / Month 1万500円/月 | Time residents 入居時期 | | 1 month after the contract 契約後1ヶ月 | Whereabouts floor 所在階 | | 5th floor 5階 | Direction 向き | | Southwest 南西 | Renovation リフォーム | | 2013 November interior renovation completed (bathroom ・ toilet ・ wall ・ floor ・ all rooms) 2013年11月内装リフォーム済(浴室・トイレ・壁・床・全室) | Overview and notices その他概要・特記事項 | | Contact: Yuzawa Junji 担当者:湯澤 淳二 | Structure-storey 構造・階建て | | SRC14 story SRC14階建 | Site of the right form 敷地の権利形態 | | Ownership 所有権 | Use district 用途地域 | | Residential 近隣商業 | Parking lot 駐車場 | | Nothing 無 | Company profile 会社概要 | | <Mediation> Governor of Kanagawa Prefecture (3) No. 023608 (Ltd.) Townes Yubinbango251-0042 Fujisawa, Kanagawa Prefecture Tsujidoshin cho 1-4-32 <仲介>神奈川県知事(3)第023608号(株)タウンズ〒251-0042 神奈川県藤沢市辻堂新町1-4-32 | Construction 施工 | | (Ltd.) Hazama Corporation (株)間組 |
Livingリビング  Living overlooking from the kitchen (11 May 2013) Shooting
キッチンから見渡せるリビング(2013年11月)撮影
 Spacious 24 Pledge of living (11 May 2013) Shooting
広々24帖のリビング(2013年11月)撮影
Local appearance photo現地外観写真  Local (10 May 2013) Shooting
現地(2013年10月)撮影
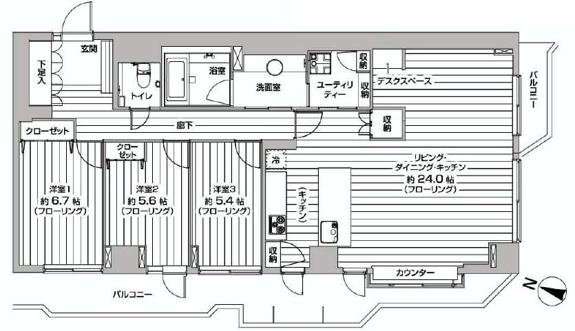
Floor plan間取り図  3LDK, Price 40,880,000 yen, Footprint 107.23 sq m , Balcony area 24.74 sq m
3LDK、価格4088万円、専有面積107.23m2、バルコニー面積24.74m2
Local appearance photo現地外観写真  Local (11 May 2013) Shooting
現地(2013年11月)撮影
Bathroom浴室  In 1620 the size of washing place is spacious (11 May 2013) Shooting
1620サイズで洗い場は広々です(2013年11月)撮影
Kitchenキッチン  Island Kitchen ・ With dishwasher (November 2013) Shooting
アイランド型キッチン・食洗器付(2013年11月)撮影
Entrance玄関  Large shoes cloak (November 2013) Shooting
大容量シューズクローク(2013年11月)撮影
Wash basin, toilet洗面台・洗面所  Washbasin available in the family (11 May 2013) Shooting
家族で利用可能な洗面台(2013年11月)撮影
Entranceエントランス  Common areas
共用部
Other common areasその他共用部  Common areas
共用部
Parking lot駐車場  Common areas ・ There are three cars for the visitor's
共用部・来客者用3台分あります
Balconyバルコニー  Wide balcony (November 2013) Shooting
ワイドバルコニー(2013年11月)撮影
Supermarketスーパー  367m up the mountain or store Enoshima shop
やまかストアー江の島店まで367m
View photos from the dwelling unit住戸からの眺望写真  Living room with views of Enoshima (November 2013) Shooting
江の島を望めるリビング(2013年11月)撮影
Otherその他  Desk space in the corner of the living room
リビングの一角にあるデスクスペース
Kitchenキッチン  IH heater ・ Oven also comes with (November 2013) Shooting
IHヒーター・オーブンも付属されています(2013年11月)撮影
Entrance玄関  Convenient bench to wear off of shoes (11 May 2013) Shooting
靴の履き脱ぎに便利なベンチ(2013年11月)撮影
Parking lot駐車場  Common areas
共用部
Drug storeドラッグストア  357m to hack drag Enoshima shop
ハックドラッグ江の島店まで357m
Otherその他  Utility room ・ There is also a storage
ユーティリティールーム・収納もあります
Location
|