1988December
17.8 million yen, 3LDK, 71.36 sq m
Used Apartments » Kanto » Kanagawa Prefecture » Fujisawa
 
| | Fujisawa, Kanagawa Prefecture 神奈川県藤沢市 |
| JR Tokaido Line "Tsujido" walk 15 minutes JR東海道本線「辻堂」歩15分 |
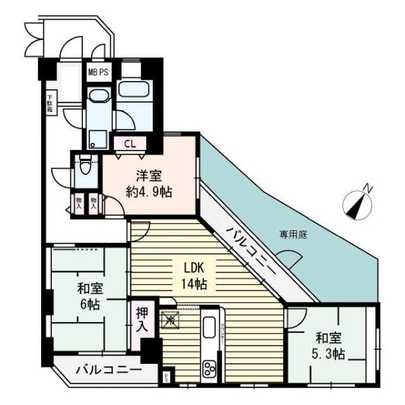
Property name 物件名 | | Clio Tsujido クリオ辻堂 | Price 価格 | | 17.8 million yen 1780万円 | Floor plan 間取り | | 3LDK 3LDK | Units sold 販売戸数 | | 1 units 1戸 | Occupied area 専有面積 | | 71.36 sq m (center line of wall) 71.36m2(壁芯) | Whereabouts floor / structures and stories 所在階/構造・階建 | | 1st floor / RC4 story 1階/RC4階建 | Completion date 完成時期(築年月) | | December 1988 1988年12月 | Address 住所 | | Fujisawa, Kanagawa Prefecture Tsujidoshin cho 3 神奈川県藤沢市辻堂新町3 | Traffic 交通 | | JR Tokaido Line "Tsujido" walk 15 minutes JR東海道本線「辻堂」歩15分
| Person in charge 担当者より | | Rep Noguchi Shun 担当者野口 瞬 | Contact お問い合せ先 | | Japan Housing Distribution Co., Ltd. Yokohama Sales Office TEL: 0800-603-0489 [Toll free] mobile phone ・ Also available from PHS Caller ID is not notified Please contact the "saw SUUMO (Sumo)" If it does not lead, If the real estate company 日本住宅流通(株)横浜営業所TEL:0800-603-0489【通話料無料】携帯電話・PHSからもご利用いただけます 発信者番号は通知されません 「SUUMO(スーモ)を見た」と問い合わせください つながらない方、不動産会社の方は
| Administrative expense 管理費 | | 16,100 yen / Month (consignment (commuting)) 1万6100円/月(委託(通勤)) | Repair reserve 修繕積立金 | | 16,120 yen / Month 1万6120円/月 | Time residents 入居時期 | | Consultation 相談 | Whereabouts floor 所在階 | | 1st floor 1階 | Other limitations その他制限事項 | | Corner room ・ Private garden ・ Pouch with! Is taken between the window a lot of. , Please visit us once! Building confirmation number 角部屋・専用庭・専用ポーチつき!窓の多い間取です。ぜひ一度ご見学ください! 建築確認番号: | Overview and notices その他概要・特記事項 | | Contact: Noguchi Shun 担当者:野口 瞬 | Structure-storey 構造・階建て | | RC4 story RC4階建 | Site of the right form 敷地の権利形態 | | Ownership 所有権 | Use district 用途地域 | | Semi-industrial 準工業 | Parking lot 駐車場 | | Nothing 無 | Company profile 会社概要 | | <Mediation> Minister of Land, Infrastructure and Transport (10) No. 002608 (Corporation) All Japan Real Estate Association (Corporation) metropolitan area real estate Fair Trade Council member Japan Housing Distribution Co., Ltd. Yokohama office Yubinbango220-0012 Yokohama Minato Mirai, Nishi-ku, 3-6-1 Minato Mirai Center Building, 15th floor <仲介>国土交通大臣(10)第002608号(公社)全日本不動産協会会員 (公社)首都圏不動産公正取引協議会加盟日本住宅流通(株)横浜営業所〒220-0012 神奈川県横浜市西区みなとみらい3-6-1 みなとみらいセンタービル15階 |
 Local appearance photo
現地外観写真
 Floor plan
間取り図
Location
|