|
|
Hiratsuka, Kanagawa Prefecture
神奈川県平塚市
|
|
JR Tokaido Line "Hiratsuka" 12 minutes west coast walk 3 minutes by bus
JR東海道本線「平塚」バス12分西海岸歩3分
|
|
Footprint (center line of wall) 99 sq m more than clear, There is parking space on site, Pets welcome breeding (Terms of there), Heisei 25 August interior renovation completed!
専有面積(壁芯)ゆとりの99m2超、敷地内に駐車場空き有り、ペット飼育可能(規約有り)、平成25年8月内装リフォーム済です!
|
|
Immediate Available, LDK18 tatami mats or more, A quiet residential areaese-style room, Leafy residential area, Pets Negotiable, Flat terrain
即入居可、LDK18畳以上、閑静な住宅地、和室、緑豊かな住宅地、ペット相談、平坦地
|
Features pickup 特徴ピックアップ | | Immediate Available / LDK18 tatami mats or more / A quiet residential area / Japanese-style room / Leafy residential area / Pets Negotiable / Flat terrain 即入居可 /LDK18畳以上 /閑静な住宅地 /和室 /緑豊かな住宅地 /ペット相談 /平坦地 |
Property name 物件名 | | Hiratsuka Garden Homes 平塚ガーデンホームズ |
Price 価格 | | 19,800,000 yen 1980万円 |
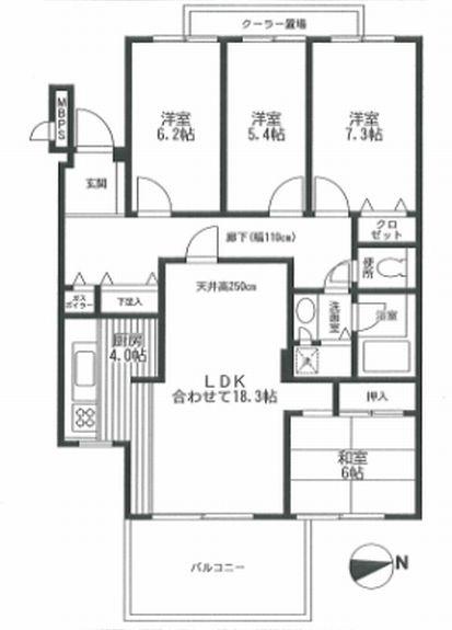
Floor plan 間取り | | 4LDK 4LDK |
Units sold 販売戸数 | | 1 units 1戸 |
Total units 総戸数 | | 130 units 130戸 |
Occupied area 専有面積 | | 99.91 sq m (center line of wall) 99.91m2(壁芯) |
Other area その他面積 | | Balcony area: 10.96 sq m バルコニー面積:10.96m2 |
Whereabouts floor / structures and stories 所在階/構造・階建 | | 1st floor / RC5 story 1階/RC5階建 |
Completion date 完成時期(築年月) | | October 1983 1983年10月 |
Address 住所 | | Hiratsuka, Kanagawa Prefecture Togahara 神奈川県平塚市唐ケ原 |
Traffic 交通 | | JR Tokaido Line "Hiratsuka" 12 minutes west coast walk 3 minutes by bus JR東海道本線「平塚」バス12分西海岸歩3分
|
Related links 関連リンク | | [Related Sites of this company] 【この会社の関連サイト】 |
Contact お問い合せ先 | | TEL: 0800-603-2395 [Toll free] mobile phone ・ Also available from PHS Caller ID is not notified Please contact the "saw SUUMO (Sumo)" If it does not lead, If the real estate company TEL:0800-603-2395【通話料無料】携帯電話・PHSからもご利用いただけます 発信者番号は通知されません 「SUUMO(スーモ)を見た」と問い合わせください つながらない方、不動産会社の方は
|
Administrative expense 管理費 | | 17,680 yen / Month (consignment (resident)) 1万7680円/月(委託(常駐)) |
Repair reserve 修繕積立金 | | 16,320 yen / Month 1万6320円/月 |
Expenses 諸費用 | | Town council fee: 300 yen / Month 町会費:300円/月 |
Time residents 入居時期 | | Immediate available 即入居可 |
Whereabouts floor 所在階 | | 1st floor 1階 |
Direction 向き | | East 東 |
Structure-storey 構造・階建て | | RC5 story RC5階建 |
Site of the right form 敷地の権利形態 | | Ownership 所有権 |
Use district 用途地域 | | One dwelling 1種住居 |
Parking lot 駐車場 | | Site (2000 yen ~ 4000 yen / Month) 敷地内(2000円 ~ 4000円/月) |
Company profile 会社概要 | | <Mediation> Governor of Kanagawa Prefecture (4) The 022,193 No. double flower Estate Co., Ltd. Nishiguchi shop Yubinbango254-0045 Hiratsuka, Kanagawa Prefecture Mitsuke-cho 1-28 Lions Plaza Hiratsuka Mitsuke-cho 1 <仲介>神奈川県知事(4)第022193号八重咲地所(株)西口店〒254-0045 神奈川県平塚市見附町1-28 ライオンズプラザ平塚見附町1 |