|
|
Kawasaki City, Kanagawa Prefecture Tama-ku,
神奈川県川崎市多摩区
|
|
Odakyu line "Yomiuri Land before" walk 10 minutes
小田急線「読売ランド前」歩10分
|
|
Heisei 25 June new interior renovation and original furnished rooms!
平成25年6月新規内装リノベーション&オリジナル家具付のお部屋です!
|
|
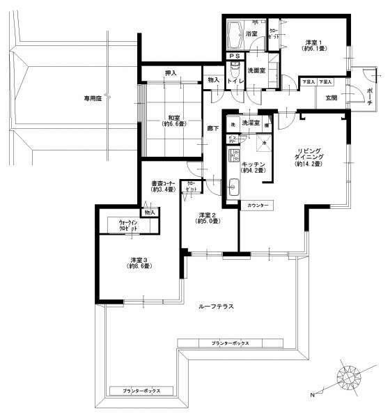
West of the hill ・ South ・ North three-sided lighting per per yang ・ View ・ Ventilation is good! 111 square meters more than 4LDK + roof terrace + private garden!
高台の西・南・北3面採光につき陽当り・眺望・通風良好です! 111平米超の4LDK+ルーフテラス+専用庭付!
|
Features pickup 特徴ピックアップ | | Corresponding to the flat-35S / Immediate Available / LDK18 tatami mats or more / Interior renovation / System kitchen / Bathroom Dryer / Corner dwelling unit / Yang per good / All room storage / top floor ・ No upper floor / Washbasin with shower / Warm water washing toilet seat / TV monitor interphone / Ventilation good / Good view / Dish washing dryer / Walk-in closet / water filter / Pets Negotiable / Located on a hill / roof balcony / Private garden フラット35Sに対応 /即入居可 /LDK18畳以上 /内装リフォーム /システムキッチン /浴室乾燥機 /角住戸 /陽当り良好 /全居室収納 /最上階・上階なし /シャワー付洗面台 /温水洗浄便座 /TVモニタ付インターホン /通風良好 /眺望良好 /食器洗乾燥機 /ウォークインクロゼット /浄水器 /ペット相談 /高台に立地 /ルーフバルコニー /専用庭 |
Property name 物件名 | | Terrace Teraodai 4 Ichibankan テラス寺尾台4番館 |
Price 価格 | | 35,800,000 yen 3580万円 |
Floor plan 間取り | | 4LDK 4LDK |
Units sold 販売戸数 | | 1 units 1戸 |
Total units 総戸数 | | 43 units 43戸 |
Occupied area 専有面積 | | 111.37 sq m (center line of wall) 111.37m2(壁芯) |
Other area その他面積 | | Roof balcony: 37.49 sq m (use fee 750 yen / Month) ルーフバルコニー:37.49m2(使用料750円/月) |
Whereabouts floor / structures and stories 所在階/構造・階建 | | 7th floor / RC10 story 7階/RC10階建 |
Completion date 完成時期(築年月) | | December 1986 1986年12月 |
Address 住所 | | Kawasaki City, Kanagawa Prefecture Tama-ku, Teraodai 1 神奈川県川崎市多摩区寺尾台1 |
Traffic 交通 | | Odakyu line "Yomiuri Land before" walk 10 minutes 小田急線「読売ランド前」歩10分
|
Related links 関連リンク | | [Related Sites of this company] 【この会社の関連サイト】 |
Person in charge 担当者より | | Rep Fujii 担当者藤井 |
Contact お問い合せ先 | | TEL: 0800-603-0562 [Toll free] mobile phone ・ Also available from PHS Caller ID is not notified Please contact the "saw SUUMO (Sumo)" If it does not lead, If the real estate company TEL:0800-603-0562【通話料無料】携帯電話・PHSからもご利用いただけます 発信者番号は通知されません 「SUUMO(スーモ)を見た」と問い合わせください つながらない方、不動産会社の方は
|
Administrative expense 管理費 | | 12,800 yen / Month (consignment (commuting)) 1万2800円/月(委託(通勤)) |
Repair reserve 修繕積立金 | | 14,250 yen / Month 1万4250円/月 |
Expenses 諸費用 | | Private garden fee: 690 yen / Month 専用庭使用料:690円/月 |
Time residents 入居時期 | | Immediate available 即入居可 |
Whereabouts floor 所在階 | | 7th floor 7階 |
Direction 向き | | West 西 |
Renovation リフォーム | | June 2013 interior renovation completed (kitchen ・ bathroom ・ toilet ・ wall ・ floor ・ all rooms) 2013年6月内装リフォーム済(キッチン・浴室・トイレ・壁・床・全室) |
Overview and notices その他概要・特記事項 | | Person in charge: Fujii 担当者:藤井 |
Structure-storey 構造・階建て | | RC10 story RC10階建 |
Site of the right form 敷地の権利形態 | | Ownership 所有権 |
Use district 用途地域 | | One low-rise 1種低層 |
Parking lot 駐車場 | | Sky Mu 空無 |
Company profile 会社概要 | | <Mediation> Minister of Land, Infrastructure and Transport (3) No. 006,185 (one company) National Housing Industry Association (Corporation) metropolitan area real estate Fair Trade Council member Asahi Housing Corporation Yokohama Yubinbango221-0835 Yokohama-shi, Kanagawa, Kanagawa-ku, Tsuruya-cho, 2-26 - 2 fourth Yasuda Building second floor <仲介>国土交通大臣(3)第006185号(一社)全国住宅産業協会会員 (公社)首都圏不動産公正取引協議会加盟朝日住宅(株)横浜店〒221-0835 神奈川県横浜市神奈川区鶴屋町2-26ー2 第4安田ビル2階 |
Construction 施工 | | Takenaka Corporation 竹中工務店 |