1999March
25,500,000 yen, 3LDK, 76.39 sq m
Used Apartments » Kanto » Kanagawa Prefecture » Miura
 
| | Kanagawa Prefecture Miura 神奈川県三浦市 |
| Keikyū Kurihama Line "Miurakaigan" walk 8 minutes 京急久里浜線「三浦海岸」歩8分 |
| 1999 Built, Current state rent in Onachenji is property. 平成11年築、現況賃貸中 オーナーチェンジ物件です。 |
Features pickup 特徴ピックアップ | | Super close / System kitchen / High floor / Washbasin with shower / Security enhancement / Elevator / Walk-in closet / Pets Negotiable / Located on a hill スーパーが近い /システムキッチン /高層階 /シャワー付洗面台 /セキュリティ充実 /エレベーター /ウォークインクロゼット /ペット相談 /高台に立地 | Property name 物件名 | | San Court Mahoroba Ichibankan サンコートマホロバ壱番館 | Price 価格 | | 25,500,000 yen 2550万円 | Floor plan 間取り | | 3LDK 3LDK | Units sold 販売戸数 | | 1 units 1戸 | Total units 総戸数 | | 297 units 297戸 | Occupied area 専有面積 | | 76.39 sq m (registration) 76.39m2(登記) | Other area その他面積 | | Balcony area: 9.57 sq m バルコニー面積:9.57m2 | Whereabouts floor / structures and stories 所在階/構造・階建 | | 17th floor / RC17 story 17階/RC17階建 | Completion date 完成時期(築年月) | | March 1999 1999年3月 | Address 住所 | | Kanagawa Prefecture Miura Minamishitaura MachiKamimiyada 神奈川県三浦市南下浦町上宮田 | Traffic 交通 | | Keikyū Kurihama Line "Miurakaigan" walk 8 minutes 京急久里浜線「三浦海岸」歩8分
| Person in charge 担当者より | | [Regarding this property.] 8-minute walk from Miurakaigan 【この物件について】三浦海岸から徒歩8分 | Contact お問い合せ先 | | TEL: 0800-603-0006 [Toll free] mobile phone ・ Also available from PHS Caller ID is not notified Please contact the "saw SUUMO (Sumo)" If it does not lead, If the real estate company TEL:0800-603-0006【通話料無料】携帯電話・PHSからもご利用いただけます 発信者番号は通知されません 「SUUMO(スーモ)を見た」と問い合わせください つながらない方、不動産会社の方は
| Administrative expense 管理費 | | 10,470 yen / Month (consignment (commuting)) 1万470円/月(委託(通勤)) | Repair reserve 修繕積立金 | | 12,220 yen / Month 1万2220円/月 | Time residents 入居時期 | | Consultation 相談 | Whereabouts floor 所在階 | | 17th floor 17階 | Direction 向き | | East 東 | Structure-storey 構造・階建て | | RC17 story RC17階建 | Site of the right form 敷地の権利形態 | | Ownership 所有権 | Use district 用途地域 | | Two dwellings 2種住居 | Parking lot 駐車場 | | Sky Mu 空無 | Company profile 会社概要 | | <Mediation> Governor of Kanagawa Prefecture (10) Article 010799 No. Usui Home Co., Ltd. Maborikaigan shop Yubinbango239-0801 Yokosuka, Kanagawa Prefecture Maborikaigan 2-27-7 <仲介>神奈川県知事(10)第010799号ウスイホーム(株)馬堀海岸店〒239-0801 神奈川県横須賀市馬堀海岸2-27-7 |
 Local appearance photo
現地外観写真
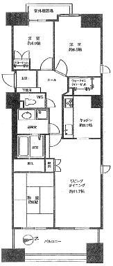
Floor plan間取り図  3LDK, Price 25,500,000 yen, Occupied area 76.39 sq m , Balcony area 9.57 sq m
3LDK、価格2550万円、専有面積76.39m2、バルコニー面積9.57m2
Location
|