Used Apartments » Kanto » Kanagawa Prefecture » Sagamihara, Chuo-ku
 
| | Sagamihara City, Kanagawa Prefecture, Chuo-ku, 神奈川県相模原市中央区 |
| JR Yokohama Line "Sagamihara" walk 5 minutes JR横浜線「相模原」歩5分 |
| ■ JR Yokohama Line "Sagamihara" Station 2-minute walk ■ 2009 Built ・ Pets Allowed ・ Corner room ■ All rooms southeast ■ Freshness elementary school ・ Freshness junior high school ■JR横浜線「相模原」駅徒歩2分■平成21年築・ペット可・角部屋■全室南東向き■清新小学校・清新中学校 |
| Corresponding to the flat-35S, It is close to the city, System kitchen, Bathroom Dryer, Corner dwelling unit, All room storage, Flat to the station, High floor, Face-to-face kitchen, Security enhancement, Southeast direction, Elevator, Warm water washing toilet seat, All living room flooring, Good view, Dish washing dryer, Pets Negotiable, Delivery Box, Air conditioning, Reheating フラット35Sに対応、市街地が近い、システムキッチン、浴室乾燥機、角住戸、全居室収納、駅まで平坦、高層階、対面式キッチン、セキュリティ充実、東南向き、エレベーター、温水洗浄便座、全居室フローリング、眺望良好、食器洗乾燥機、ペット相談、宅配ボックス、エアコン、追い焚き |
Features pickup 特徴ピックアップ | | Corresponding to the flat-35S / It is close to the city / Interior renovation / System kitchen / Bathroom Dryer / Corner dwelling unit / All room storage / Flat to the station / High floor / Face-to-face kitchen / Security enhancement / Southeast direction / Elevator / Warm water washing toilet seat / All living room flooring / Good view / Dish washing dryer / Pets Negotiable / Delivery Box フラット35Sに対応 /市街地が近い /内装リフォーム /システムキッチン /浴室乾燥機 /角住戸 /全居室収納 /駅まで平坦 /高層階 /対面式キッチン /セキュリティ充実 /東南向き /エレベーター /温水洗浄便座 /全居室フローリング /眺望良好 /食器洗乾燥機 /ペット相談 /宅配ボックス | Property name 物件名 | | Lions Tower Sagamihara station Grande ライオンズタワー相模原ステーショングランデ | Price 価格 | | 30,800,000 yen 3080万円 | Floor plan 間取り | | 2LDK 2LDK | Units sold 販売戸数 | | 1 units 1戸 | Total units 総戸数 | | 151 units 151戸 | Occupied area 専有面積 | | 60.14 sq m (center line of wall) 60.14m2(壁芯) | Other area その他面積 | | Balcony area: 16.04 sq m バルコニー面積:16.04m2 | Whereabouts floor / structures and stories 所在階/構造・階建 | | 8th floor / RC28 floors 1 underground story 8階/RC28階地下1階建 | Completion date 完成時期(築年月) | | November 2009 2009年11月 | Address 住所 | | Sagamihara City, Kanagawa Prefecture, Chuo-ku, Sagamihara 2 神奈川県相模原市中央区相模原2 | Traffic 交通 | | JR Yokohama Line "Sagamihara" walk 5 minutes JR Yokohama Line "Yabe" walk 23 minutes JR Sagami Line "Minamihashimoto" walk 24 minutes JR横浜線「相模原」歩5分 JR横浜線「矢部」歩23分 JR相模線「南橋本」歩24分
| Related links 関連リンク | | [Related Sites of this company] 【この会社の関連サイト】 | Person in charge 担当者より | | Person in charge of real-estate and building Kudo NaoHomare Age: 30 Daigyokai experience: you will be dating up to 10 years you are going to convince. 担当者宅建工藤 尚誉年齢:30代業界経験:10年お客様が納得されるまでお付き合いさせていただきます。 | Contact お問い合せ先 | | TEL: 0800-603-8081 [Toll free] mobile phone ・ Also available from PHS Caller ID is not notified Please contact the "saw SUUMO (Sumo)" If it does not lead, If the real estate company TEL:0800-603-8081【通話料無料】携帯電話・PHSからもご利用いただけます 発信者番号は通知されません 「SUUMO(スーモ)を見た」と問い合わせください つながらない方、不動産会社の方は
| Administrative expense 管理費 | | 13,790 yen / Month (consignment (commuting)) 1万3790円/月(委託(通勤)) | Repair reserve 修繕積立金 | | 7820 yen / Month 7820円/月 | Time residents 入居時期 | | Consultation 相談 | Whereabouts floor 所在階 | | 8th floor 8階 | Direction 向き | | Southeast 南東 | Renovation リフォーム | | 2013 November interior renovation completed (wall ・ Air conditioning, illumination) 2013年11月内装リフォーム済(壁・エアコン、照明) | Overview and notices その他概要・特記事項 | | Contact: Kudo NaoHomare 担当者:工藤 尚誉 | Structure-storey 構造・階建て | | RC28 floors 1 underground story RC28階地下1階建 | Site of the right form 敷地の権利形態 | | Ownership 所有権 | Use district 用途地域 | | Commerce 商業 | Parking lot 駐車場 | | Nothing 無 | Company profile 会社概要 | | <Mediation> Minister of Land, Infrastructure and Transport (1) the first 008,178 No. Century 21 living style (Ltd.) Machida Yubinbango194-0022 Tokyo Machida Morino 4-15-12 <仲介>国土交通大臣(1)第008178号センチュリー21リビングスタイル(株)町田店〒194-0022 東京都町田市森野4-15-12 |
 Local appearance photo
現地外観写真
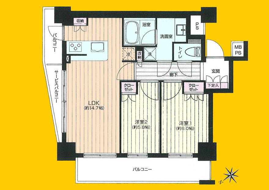
Floor plan間取り図  2LDK, Price 30,800,000 yen, Occupied area 60.14 sq m , Balcony area 16.04 sq m
2LDK、価格3080万円、専有面積60.14m2、バルコニー面積16.04m2
 Local appearance photo
現地外観写真
Supermarketスーパー  277m up to life Sagamihara Station Building shop
ライフ相模原駅ビル店まで277m
 431m to Daiei Sagamihara store
ダイエー相模原店まで431m
 Super Ozeki 887m to Sagamihara Chuo
スーパーオオゼキ相模原中央店まで887m
Primary school小学校  945m to Sagamihara Municipal freshness Elementary School
相模原市立清新小学校まで945m
Kindergarten ・ Nursery幼稚園・保育園  525m to Sagamihara City Museum Sagamihara nursery
相模原市立相模原保育園まで525m
 885m until Angel nursery
エンゼル保育園まで885m
Junior high school中学校  Freshening 1100m until junior high school
清新中学校まで1100m
Location
|