|
|
Yamato-shi, Kanagawa
神奈川県大和市
|
|
Sagami Railway Main Line "Yamato" walk 8 minutes
相鉄本線「大和」歩8分
|
|
Shopping is convenient to the facility are many life. Housework Hakadori you because even with a dishwasher.
お買い物施設が多く生活に便利です。食洗機も付いているので家事もはかどります。
|
|
Who want to come and see your property is, Please contact us by all means, Jewels our alliance mortgage (the entire period up to 1.7 percent preferential treatment, The application, conditions ・ Examination there)
物件を実際に見たいという方は、是非お問合せくださいませ、弊社提携住宅ローン御座います(全期間最大1.7パーセント優遇、適用には、条件・審査がございます)
|
Features pickup 特徴ピックアップ | | Seismic fit / Immediate Available / 2 along the line more accessible / System kitchen / Bathroom Dryer / Yang per good / All room storage / Flat to the station / LDK15 tatami mats or more / Washbasin with shower / Wide balcony / Barrier-free / 2 or more sides balcony / Bicycle-parking space / Elevator / Otobasu / High speed Internet correspondence / Warm water washing toilet seat / Renovation / Ventilation good / Dish washing dryer / water filter / Pets Negotiable / BS ・ CS ・ CATV / Maintained sidewalk 耐震適合 /即入居可 /2沿線以上利用可 /システムキッチン /浴室乾燥機 /陽当り良好 /全居室収納 /駅まで平坦 /LDK15畳以上 /シャワー付洗面台 /ワイドバルコニー /バリアフリー /2面以上バルコニー /駐輪場 /エレベーター /オートバス /高速ネット対応 /温水洗浄便座 /リノベーション /通風良好 /食器洗乾燥機 /浄水器 /ペット相談 /BS・CS・CATV /整備された歩道 |
Property name 物件名 | | Clio Yamato Rokuban Museum クリオ大和六番館 |
Price 価格 | | 25,900,000 yen 2590万円 |
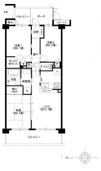
Floor plan 間取り | | 3LDK 3LDK |
Units sold 販売戸数 | | 1 units 1戸 |
Total units 総戸数 | | 31 units 31戸 |
Occupied area 専有面積 | | 63.78 sq m 63.78m2 |
Other area その他面積 | | Balcony area: 12.45 sq m バルコニー面積:12.45m2 |
Whereabouts floor / structures and stories 所在階/構造・階建 | | Second floor / RC6 story 2階/RC6階建 |
Completion date 完成時期(築年月) | | April 1999 1999年4月 |
Address 住所 | | Yamato-shi, Kanagawa Yamatohigashi 2 神奈川県大和市大和東2 |
Traffic 交通 | | Sagami Railway Main Line "Yamato" walk 8 minutes Sagami Railway Main Line "Otsuka Sagami" walk 25 minutes Enoshima Odakyu "Tsuruma" walk 30 minutes 相鉄本線「大和」歩8分 相鉄本線「相模大塚」歩25分 小田急江ノ島線「鶴間」歩30分
|
Contact お問い合せ先 | | TEL: 0800-603-7122 [Toll free] mobile phone ・ Also available from PHS Caller ID is not notified Please contact the "saw SUUMO (Sumo)" If it does not lead, If the real estate company TEL:0800-603-7122【通話料無料】携帯電話・PHSからもご利用いただけます 発信者番号は通知されません 「SUUMO(スーモ)を見た」と問い合わせください つながらない方、不動産会社の方は
|
Administrative expense 管理費 | | 9480 yen / Month (consignment (commuting)) 9480円/月(委託(通勤)) |
Repair reserve 修繕積立金 | | 19,440 yen / Month 1万9440円/月 |
Time residents 入居時期 | | Immediate available 即入居可 |
Whereabouts floor 所在階 | | Second floor 2階 |
Direction 向き | | Southwest 南西 |
Renovation リフォーム | | 2013 September interior renovation completed (kitchen ・ bathroom ・ toilet ・ wall ・ floor) 2013年9月内装リフォーム済(キッチン・浴室・トイレ・壁・床) |
Structure-storey 構造・階建て | | RC6 story RC6階建 |
Site of the right form 敷地の権利形態 | | Ownership 所有権 |
Use district 用途地域 | | City planning area outside 都市計画区域外 |
Parking lot 駐車場 | | Nothing 無 |
Company profile 会社概要 | | <Mediation> Minister of Land, Infrastructure and Transport (2) the first 007,684 No. + HOUSE Yokohama Office (Ltd.) propoxycarbonyl life Yubinbango230-0062 Kanagawa Prefecture Tsurumi-ku, Yokohama City Toyooka-cho, 8-24 first floor <仲介>国土交通大臣(2)第007684号+HOUSE横浜Office(株)プロポライフ〒230-0062 神奈川県横浜市鶴見区豊岡町8-24 1階 |