Used Apartments » Kanto » Kanagawa Prefecture » Yamato City


Yamato-shi, Kanagawa
Enoshima Odakyu "Tsuruma" walk 17 minutes
Living environment is good with a solid 3LDK + S renovation completed apartment shopping convenient area of ​​more than 70 sq m! Open-minded is you can immediately preview the room bright for the south-facing corner room!
~ Looking abode to Stay Bull Home ~ KenHisashi area, Shonan area Please leave. It also offers consultation of loan.
Features pickup
Immediate Available / It is close to the city / Facing south / System kitchen / Corner dwelling unit / Yang per good / All room storage / Flat to the station / A quiet residential area / Japanese-style room / Washbasin with shower / Face-to-face kitchen / Bicycle-parking space / Elevator / Warm water washing toilet seat / Leafy residential area / Flat terrain / Bike shelter
Property name
Pleasure ・ Garden Yamato
Price
16.3 million yen
Floor plan
3LDK
Units sold
1 units
Occupied area
70.43 sq m (center line of wall)
Other area
Balcony area: 5.04 sq m
Whereabouts floor / structures and stories
3rd floor / RC4 story
Completion date
February 1997
Address
Yamato-shi, Kanagawa Shimotsuruma 2
Traffic
Enoshima Odakyu "Tsuruma" walk 17 minutes
Enoshima Odakyu "Minamirinkan" walk 23 minutes
Related links
[Related Sites of this company]
Person in charge
Rep Furukawa Kayoko Age: 30 Daigyokai experience: There is also a 5-year fun, Anxiety also "looking for My Home". Sometimes as a good counselor, We try to be thought of caring to become the customer's point of view. You can even trifle. Anything please consult.
Contact
TEL: 0800-809-8850 [Toll free] mobile phone ・ Also available from PHS
Caller ID is not notified
Please contact the "saw SUUMO (Sumo)"
If it does not lead, If the real estate company
Administrative expense
16,400 yen / Month (consignment (cyclic))
Repair reserve
12,000 yen / Month
Time residents
Immediate available
Whereabouts floor
3rd floor
Direction
North
Overview and notices
Contact: Furukawa Kayoko
Structure-storey
RC4 story
Site of the right form
Ownership
Use district
Semi-industrial
Parking lot
Site (12,000 yen / Month)
Company profile
<Mediation> Governor of Kanagawa Prefecture (1) No. 028491 (Ltd.) Stableford Home Yubinbango252-0804 Fujisawa, Kanagawa Prefecture Shonandai 4-2-12


Local appearance photo
Local appearance photo

Kitchen
Kitchen

Living
Living

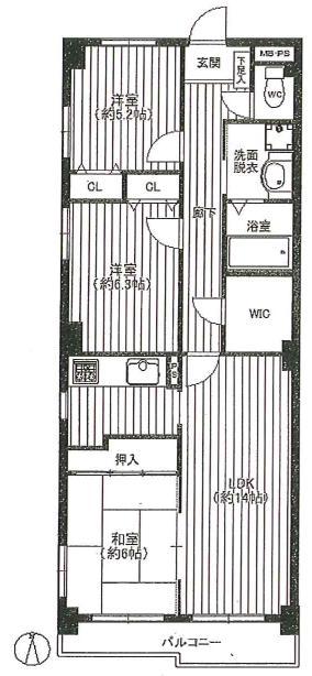
Floor plan

Floor plan. 3LDK, Price 16.3 million yen, Occupied area 70.43 sq m , Balcony area 5.04 sq m
3LDK, Price 16.3 million yen, Occupied area 70.43 sq m , Balcony area 5.04 sq m

Bathroom
Bathroom

Non-living room
Non-living room

Wash basin, toilet
Wash basin, toilet

Receipt
Receipt

Toilet
Toilet

Balcony
Balcony

Shopping centre

Shopping centre. 420m to Aeon Mall Yamato
420m to Aeon Mall Yamato

Other introspection
Other introspection

Other
Other

Receipt

Receipt. WIC
WIC

Junior high school

Junior high school. 830m until Yamato Municipal Yamato Junior High School
830m until Yamato Municipal Yamato Junior High School

Other introspection
Other introspection

Primary school

Primary school. 310m until Yamato Municipal Yamato Elementary School
310m until Yamato Municipal Yamato Elementary School

Other introspection
Other introspection

Kindergarten ・ Nursery

kindergarten ・ Nursery. Fukami 740m to kindergarten
Fukami 740m to kindergarten

Hospital

Hospital. 560m to Yamato City Hospital
560m to Yamato City Hospital

Kindergarten ・ Nursery

kindergarten ・ Nursery. 780m until Yamato Municipal Wakaba nursery
780m until Yamato Municipal Wakaba nursery



Location