|
|
Yokohama City, Kanagawa Prefecture, Aoba-ku,
神奈川県横浜市青葉区
|
|
Denentoshi Tokyu "Aobadai" walk 9 minutes
東急田園都市線「青葉台」歩9分
|
|
A quiet residential area, Corner dwelling unit, top floor ・ No upper floor, Yang per good, Toilet 2 places, Plane parking, Atrium, Southwestwardese-style room, Super close
閑静な住宅地、角住戸、最上階・上階なし、陽当り良好、トイレ2ヶ所、平面駐車場、吹抜け、南西向き、和室、スーパーが近い
|
Features pickup 特徴ピックアップ | | Super close / It is close to the city / Corner dwelling unit / Yang per good / A quiet residential area / Around traffic fewer / Japanese-style room / top floor ・ No upper floor / Toilet 2 places / Plane parking / Elevator / Atrium / Leafy residential area / Southwestward / Delivery Box スーパーが近い /市街地が近い /角住戸 /陽当り良好 /閑静な住宅地 /周辺交通量少なめ /和室 /最上階・上階なし /トイレ2ヶ所 /平面駐車場 /エレベーター /吹抜け /緑豊かな住宅地 /南西向き /宅配ボックス |
Property name 物件名 | | Prince Heights Aobadai プリンスハイツ青葉台 |
Price 価格 | | 44,800,000 yen 4480万円 |
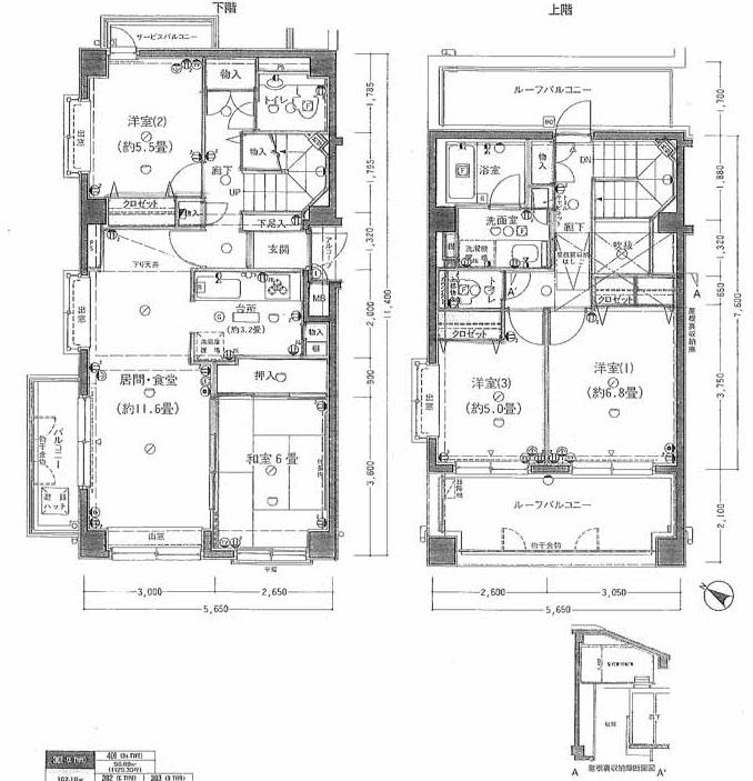
Floor plan 間取り | | 4LDK 4LDK |
Units sold 販売戸数 | | 1 units 1戸 |
Total units 総戸数 | | 9 units 9戸 |
Occupied area 専有面積 | | 102.19 sq m (center line of wall) 102.19m2(壁芯) |
Other area その他面積 | | Balcony area: 6.2 sq m , Roof balcony: 17.45 sq m (use fee Mu) バルコニー面積:6.2m2、ルーフバルコニー:17.45m2(使用料無) |
Whereabouts floor / structures and stories 所在階/構造・階建 | | 3rd floor / RC4 floors 1 underground story 3階/RC4階地下1階建 |
Completion date 完成時期(築年月) | | February 1995 1995年2月 |
Address 住所 | | Yokohama City, Kanagawa Prefecture, Aoba-ku Aobadai 1 神奈川県横浜市青葉区青葉台1 |
Traffic 交通 | | Denentoshi Tokyu "Aobadai" walk 9 minutes 東急田園都市線「青葉台」歩9分
|
Related links 関連リンク | | [Related Sites of this company] 【この会社の関連サイト】 |
Person in charge 担当者より | | Rep Hashimoto 担当者橋本 |
Contact お問い合せ先 | | TEL: 0800-603-1782 [Toll free] mobile phone ・ Also available from PHS Caller ID is not notified Please contact the "saw SUUMO (Sumo)" If it does not lead, If the real estate company TEL:0800-603-1782【通話料無料】携帯電話・PHSからもご利用いただけます 発信者番号は通知されません 「SUUMO(スーモ)を見た」と問い合わせください つながらない方、不動産会社の方は
|
Administrative expense 管理費 | | 25,500 yen / Month (consignment (cyclic)) 2万5500円/月(委託(巡回)) |
Repair reserve 修繕積立金 | | 23,200 yen / Month 2万3200円/月 |
Time residents 入居時期 | | Consultation 相談 |
Whereabouts floor 所在階 | | 3rd floor 3階 |
Direction 向き | | Southwest 南西 |
Overview and notices その他概要・特記事項 | | Contact: Hashimoto 担当者:橋本 |
Structure-storey 構造・階建て | | RC4 floors 1 underground story RC4階地下1階建 |
Site of the right form 敷地の権利形態 | | Ownership 所有権 |
Use district 用途地域 | | Two mid-high 2種中高 |
Parking lot 駐車場 | | The exclusive right to use with parking (19,000 yen / Month) 専用使用権付駐車場(1万9000円/月) |
Company profile 会社概要 | | <Mediation> Minister of Land, Infrastructure and Transport (3) No. 006493 (Corporation) All Japan Real Estate Association (Corporation) metropolitan area real estate Fair Trade Council member (Ltd.) Interikkusu home sales 150-0002 Shibuya, Shibuya-ku, Tokyo 2-12-19 Token International building 11 floors <仲介>国土交通大臣(3)第006493号(公社)全日本不動産協会会員 (公社)首都圏不動産公正取引協議会加盟(株)インテリックス住宅販売〒150-0002 東京都渋谷区渋谷2-12-19 東建インターナショナルビル11階 |
Construction 施工 | | Maruhikowatanabekensetsu (Ltd.) 丸彦渡辺建設(株) |