|
|
Yokohama City, Kanagawa Prefecture, Aoba-ku,
神奈川県横浜市青葉区
|
|
JR Yokohama Line "Tokaichiba" walk 12 minutes
JR横浜線「十日市場」歩12分
|
|
1 / 4 (Sat) 5 (day) 11:00 ~ 17:00 Open Room held! Please join us feel free to
1/4(土)5(日) 11:00 ~ 17:00オープンルーム開催!お気軽にお越しください
|
|
Built shallow renovation! Large Private porch is just detached sense! Balcony of depth 2m in addition to the wide span, Director makes the room more than size. Facing south! Bright three direction room floor heating equipped
築浅リノベーション!大型専用ポーチ付はまさに戸建感覚!ワイドスパンに加え奥行2mのバルコニーは、お部屋以上の広さを演出してくれます。南向き!明るい三方角部屋床暖房完備
|
Features pickup 特徴ピックアップ | | Fit renovation / Immediate Available / 2 along the line more accessible / System kitchen / Bathroom Dryer / Flat to the station / A quiet residential area / Washbasin with shower / Southeast direction / Bicycle-parking space / Elevator / Otobasu / TV monitor interphone / Leafy residential area / Dish washing dryer / Walk-in closet / BS ・ CS ・ CATV / Delivery Box / Bike shelter 適合リノベーション /即入居可 /2沿線以上利用可 /システムキッチン /浴室乾燥機 /駅まで平坦 /閑静な住宅地 /シャワー付洗面台 /東南向き /駐輪場 /エレベーター /オートバス /TVモニタ付インターホン /緑豊かな住宅地 /食器洗乾燥機 /ウォークインクロゼット /BS・CS・CATV /宅配ボックス /バイク置場 |
Event information イベント情報 | | Open Room (please visitors to direct local) schedule / January 5 (Sunday) time / 11:00 ~ 17:00 ■ Consultation of the loan ・ I want to hear more information about mortgage ・ The mortgage is borrowed? ・ Mortgage Do you Kume but there is a debt to the other? ■ I want to see in the room ・ Do you see also on weekdays? ・ Do you also look to late at night? ・ Do you see it now? , Anything please the question of home buying! We look forward to your inquiry. オープンルーム(直接現地へご来場ください)日程/1月5日(日曜日)時間/11:00 ~ 17:00■ローンのご相談 ・住宅ローンについて詳しく聞きたい ・住宅ローンは借りれるの? ・他に借り入れがあるけど住宅ローンは組めますか?■お部屋の中を見たい ・平日にも見れますか? ・夜遅くにも見れますか? ・今すぐ見れますか?等々、住宅購入のご質問は何でもどうぞ!お問い合わせをお待ちしております。 |
Property name 物件名 | | Lions Aoba Satsukigaoka ライオンズ青葉さつきが丘 |
Price 価格 | | 31,900,000 yen 3190万円 |
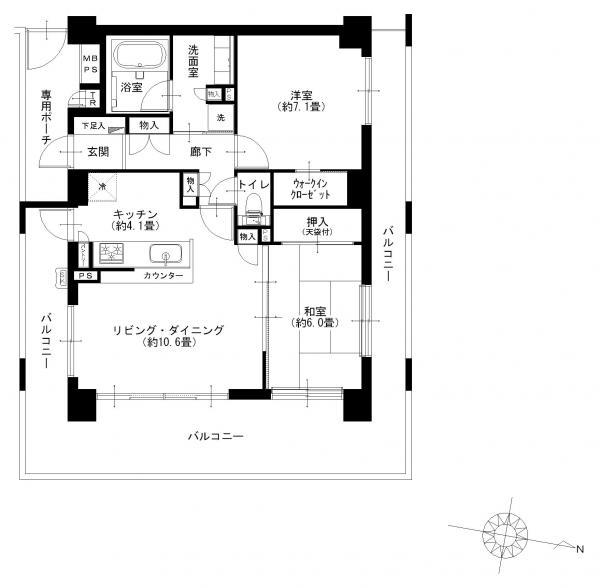
Floor plan 間取り | | 2LDK 2LDK |
Units sold 販売戸数 | | 1 units 1戸 |
Total units 総戸数 | | 58 units 58戸 |
Occupied area 専有面積 | | 66.04 sq m (center line of wall) 66.04m2(壁芯) |
Other area その他面積 | | Balcony area: 33.94 sq m バルコニー面積:33.94m2 |
Whereabouts floor / structures and stories 所在階/構造・階建 | | 5th floor / RC8 story 5階/RC8階建 |
Completion date 完成時期(築年月) | | February 2009 2009年2月 |
Address 住所 | | Yokohama City, Kanagawa Prefecture, Aoba-ku, Satsukigaoka 16-9 神奈川県横浜市青葉区さつきが丘16-9 |
Traffic 交通 | | JR Yokohama Line "Tokaichiba" walk 12 minutes Denentoshi Tokyu "Aobadai" walk 19 minutes JR横浜線「十日市場」歩12分 東急田園都市線「青葉台」歩19分
|
Person in charge 担当者より | | Person in charge of Suzuki Mikio real estate to is not greater number of times to trade in life, It is an important asset for our customers. So we always try to sales from the customers' point of view, First, Please feel free to contact us. 担当者鈴木 幹雄不動産は人生の中で取引する回数も多くないですし、お客さまにとって大切な財産です。お客様の立場に立った営業を常に心がけておりますので、まずはお気軽にお問い合わせ下さい。 |
Contact お問い合せ先 | | TEL: 0800-603-2621 [Toll free] mobile phone ・ Also available from PHS Caller ID is not notified Please contact the "saw SUUMO (Sumo)" If it does not lead, If the real estate company TEL:0800-603-2621【通話料無料】携帯電話・PHSからもご利用いただけます 発信者番号は通知されません 「SUUMO(スーモ)を見た」と問い合わせください つながらない方、不動産会社の方は
|
Administrative expense 管理費 | | 13,700 yen / Month (consignment (cyclic)) 1万3700円/月(委託(巡回)) |
Repair reserve 修繕積立金 | | 5090 yen / Month 5090円/月 |
Time residents 入居時期 | | Immediate available 即入居可 |
Whereabouts floor 所在階 | | 5th floor 5階 |
Direction 向き | | Southeast 南東 |
Renovation リフォーム | | 2013 February interior renovation completed (kitchen ・ bathroom ・ toilet ・ wall ・ floor ・ all rooms) 2013年2月内装リフォーム済(キッチン・浴室・トイレ・壁・床・全室) |
Overview and notices その他概要・特記事項 | | Contact: Suzuki Mikio 担当者:鈴木 幹雄 |
Structure-storey 構造・階建て | | RC8 story RC8階建 |
Site of the right form 敷地の権利形態 | | Ownership 所有権 |
Use district 用途地域 | | One dwelling 1種住居 |
Parking lot 駐車場 | | Sky Mu 空無 |
Company profile 会社概要 | | <Seller> Minister of Land, Infrastructure and Transport (2) No. 007356 (Ltd.) Total Estate Yubinbango231-0012 Yokohama-shi, Kanagawa, Naka-ku Aioi-cho, 6-113 Sakuragicho AN building ninth floor <売主>国土交通大臣(2)第007356号(株)トータルエステート〒231-0012 神奈川県横浜市中区相生町6-113 桜木町ANビル9階 |
Construction 施工 | | Tada Corporation 多田建設 |