|
|
Yokohama City, Kanagawa Prefecture, Aoba-ku,
神奈川県横浜市青葉区
|
|
Denentoshi Tokyu "Tama Plaza" walk 12 minutes
東急田園都市線「たまプラーザ」歩12分
|
|
Per can visit the room renovation completed, 4 floor of three direction room roof is the balcony of the room.
室内リノベーション済につき見学可能、4階部分三方角部屋ルーフバルコニー付のお部屋です。
|
|
Want to come and see the property, Anyone who want documentation, Please contact us by all means. We jewels alliance mortgage with the City Bank (the entire period up to 1.7 percent preferential treatment, The application, conditions ・ Examination there)
物件を実際に見たい、資料が欲しいという方は、是非お問合せくださいませ。弊社は都市銀行との提携住宅ローン御座います(全期間最大1.7パーセント優遇、適用には、条件・審査がございます)
|
Features pickup 特徴ピックアップ | | Seismic fit / Immediate Available / It is close to golf course / It is close to Tennis Court / Super close / It is close to the city / Interior renovation / System kitchen / Bathroom Dryer / Corner dwelling unit / Yang per good / All room storage / A quiet residential area / LDK15 tatami mats or more / Around traffic fewer / High floor / 24 hours garbage disposal Allowed / Washbasin with shower / Face-to-face kitchen / Security enhancement / Wide balcony / 3 face lighting / Barrier-free / 2 or more sides balcony / South balcony / Flooring Chokawa / Bicycle-parking space / Elevator / Otobasu / High speed Internet correspondence / Warm water washing toilet seat / TV monitor interphone / Renovation / High-function toilet / Leafy residential area / Urban neighborhood / Mu front building / Ventilation good / All living room flooring / Southwestward / water filter / Maintained sidewalk / roof balcony / Flat terrain / Delivery Box / Bike shelter / Movable partition 耐震適合 /即入居可 /ゴルフ場が近い /テニスコートが近い /スーパーが近い /市街地が近い /内装リフォーム /システムキッチン /浴室乾燥機 /角住戸 /陽当り良好 /全居室収納 /閑静な住宅地 /LDK15畳以上 /周辺交通量少なめ /高層階 /24時間ゴミ出し可 /シャワー付洗面台 /対面式キッチン /セキュリティ充実 /ワイドバルコニー /3面採光 /バリアフリー /2面以上バルコニー /南面バルコニー /フローリング張替 /駐輪場 /エレベーター /オートバス /高速ネット対応 /温水洗浄便座 /TVモニタ付インターホン /リノベーション /高機能トイレ /緑豊かな住宅地 /都市近郊 /前面棟無 /通風良好 /全居室フローリング /南西向き /浄水器 /整備された歩道 /ルーフバルコニー /平坦地 /宅配ボックス /バイク置場 /可動間仕切り |
Property name 物件名 | | Tama Plaza Utsukushigaoka Park ・ Holmes たまプラーザ美しが丘パーク・ホームズ |
Price 価格 | | 43,800,000 yen 4380万円 |
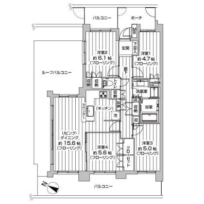
Floor plan 間取り | | 4LDK 4LDK |
Units sold 販売戸数 | | 1 units 1戸 |
Total units 総戸数 | | 53 houses 53戸 |
Occupied area 専有面積 | | 81.09 sq m (center line of wall) 81.09m2(壁芯) |
Other area その他面積 | | Balcony area: 18.23 sq m , Roof balcony: 33.19 sq m (use fee Mu) バルコニー面積:18.23m2、ルーフバルコニー:33.19m2(使用料無) |
Whereabouts floor / structures and stories 所在階/構造・階建 | | 4th floor / RC7 story 4階/RC7階建 |
Completion date 完成時期(築年月) | | December 1999 1999年12月 |
Address 住所 | | Yokohama City, Kanagawa Prefecture, Aoba-ku, Utsukushigaoka 5 神奈川県横浜市青葉区美しが丘5 |
Traffic 交通 | | Denentoshi Tokyu "Tama Plaza" walk 12 minutes Blue Line "Azamino" walk 15 minutes Denentoshi Tokyu "Azamino" walk 15 minutes 東急田園都市線「たまプラーザ」歩12分 ブルーライン「あざみ野」歩15分 東急田園都市線「あざみ野」歩15分
|
Person in charge 担当者より | | The person in charge Masakazu Ono 担当者小野 正和 |
Contact お問い合せ先 | | TEL: 0800-603-7122 [Toll free] mobile phone ・ Also available from PHS Caller ID is not notified Please contact the "saw SUUMO (Sumo)" If it does not lead, If the real estate company TEL:0800-603-7122【通話料無料】携帯電話・PHSからもご利用いただけます 発信者番号は通知されません 「SUUMO(スーモ)を見た」と問い合わせください つながらない方、不動産会社の方は
|
Administrative expense 管理費 | | 9700 yen / Month (consignment (cyclic)) 9700円/月(委託(巡回)) |
Repair reserve 修繕積立金 | | 16,460 yen / Month 1万6460円/月 |
Time residents 入居時期 | | Immediate available 即入居可 |
Whereabouts floor 所在階 | | 4th floor 4階 |
Direction 向き | | Southwest 南西 |
Renovation リフォーム | | October 2013 interior renovation completed (kitchen ・ bathroom ・ toilet ・ wall ・ floor ・ all rooms ・ Full renewal) 2013年10月内装リフォーム済(キッチン・浴室・トイレ・壁・床・全室・フルリニューアル) |
Overview and notices その他概要・特記事項 | | Contact: Masakazu Ono 担当者:小野 正和 |
Structure-storey 構造・階建て | | RC7 story RC7階建 |
Site of the right form 敷地の権利形態 | | Ownership 所有権 |
Use district 用途地域 | | City planning area outside 都市計画区域外 |
Parking lot 駐車場 | | Off-site (fee Mu) 敷地外(料金無) |
Company profile 会社概要 | | <Mediation> Minister of Land, Infrastructure and Transport (2) the first 007,684 No. + HOUSE Yokohama Office (Ltd.) propoxycarbonyl life Yubinbango230-0062 Kanagawa Prefecture Tsurumi-ku, Yokohama City Toyooka-cho, 8-24 first floor <仲介>国土交通大臣(2)第007684号+HOUSE横浜Office(株)プロポライフ〒230-0062 神奈川県横浜市鶴見区豊岡町8-24 1階 |