|
|
Yokohama City, Kanagawa Prefecture, Aoba-ku,
神奈川県横浜市青葉区
|
|
Denentoshi Tokyu "Tama Plaza" walk 12 minutes
東急田園都市線「たまプラーザ」歩12分
|
|
LDK is open, 3-sided lighting! In a green quiet residential area ", Aoba-ku, Utsukushigaoka" is 4LDK full renovation apartment appearance!
LDKは開放的な3面採光!緑豊かな閑静な住宅街「青葉区美しが丘」に4LDKフルリノベーションマンション登場です!
|
|
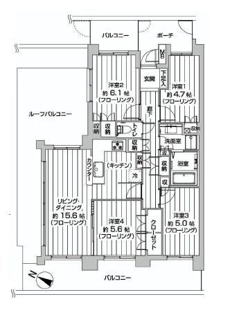
■ East and west north of 3 direction room! ■ The area occupied 80 square meters more than! ■ There roof balcony more than 33 square meters! ■ 24-hour security! ■ living ・ Dining 15 Pledge than! ■ There entrance before porch! ■ After-sales service with guarantee! ■ auto lock ・ Delivery Box, etc. fully equipped! ■ You can indoor your preview. Please feel free to contact us.
■東西北の3方角部屋! ■専有面積80平米超! ■33平米超のルーフバルコニーあり! ■24時間セキュリティ! ■リビング・ダイニング15帖超! ■玄関前ポーチあり! ■アフターサービス保証付! ■オートロック・宅配ボックス等設備充実! ■室内ご内覧いただけます。お気軽にお問い合わせください。
|
Features pickup 特徴ピックアップ | | Immediate Available / It is close to the city / System kitchen / Bathroom Dryer / Corner dwelling unit / Yang per good / All room storage / A quiet residential area / LDK15 tatami mats or more / Washbasin with shower / Face-to-face kitchen / Security enhancement / Bathroom 1 tsubo or more / Bicycle-parking space / Elevator / High speed Internet correspondence / Warm water washing toilet seat / The window in the bathroom / TV monitor interphone / Renovation / Leafy residential area / Mu front building / Ventilation good / All living room flooring / Dish washing dryer / water filter / Maintained sidewalk / roof balcony / Delivery Box 即入居可 /市街地が近い /システムキッチン /浴室乾燥機 /角住戸 /陽当り良好 /全居室収納 /閑静な住宅地 /LDK15畳以上 /シャワー付洗面台 /対面式キッチン /セキュリティ充実 /浴室1坪以上 /駐輪場 /エレベーター /高速ネット対応 /温水洗浄便座 /浴室に窓 /TVモニタ付インターホン /リノベーション /緑豊かな住宅地 /前面棟無 /通風良好 /全居室フローリング /食器洗乾燥機 /浄水器 /整備された歩道 /ルーフバルコニー /宅配ボックス |
Property name 物件名 | | Tama Plaza Utsukushigaoka Park ・ Holmes Nibankan たまプラーザ美しが丘パーク・ホームズ弐番館 |
Price 価格 | | 43,800,000 yen 4380万円 |
Floor plan 間取り | | 4LDK 4LDK |
Units sold 販売戸数 | | 1 units 1戸 |
Total units 総戸数 | | 53 houses 53戸 |
Occupied area 専有面積 | | 81.09 sq m (center line of wall) 81.09m2(壁芯) |
Other area その他面積 | | Balcony area: 18.23 sq m , Roof balcony: 33.19 sq m (use fee Mu) バルコニー面積:18.23m2、ルーフバルコニー:33.19m2(使用料無) |
Whereabouts floor / structures and stories 所在階/構造・階建 | | 4th floor / RC7 story 4階/RC7階建 |
Completion date 完成時期(築年月) | | December 1999 1999年12月 |
Address 住所 | | Yokohama City, Kanagawa Prefecture, Aoba-ku, Utsukushigaoka 5 神奈川県横浜市青葉区美しが丘5 |
Traffic 交通 | | Denentoshi Tokyu "Tama Plaza" walk 12 minutes 東急田園都市線「たまプラーザ」歩12分
|
Related links 関連リンク | | [Related Sites of this company] 【この会社の関連サイト】 |
Person in charge 担当者より | | Rep Komuro TakeMinoru Age: strive every day so that you are able to the satisfaction to the 20's customers, I will do my best in all sincerity. 担当者小室 武稔年齢:20代お客様に満足をしていただけるよう日々努力し、誠心誠意頑張ります。 |
Contact お問い合せ先 | | TEL: 0800-603-0562 [Toll free] mobile phone ・ Also available from PHS Caller ID is not notified Please contact the "saw SUUMO (Sumo)" If it does not lead, If the real estate company TEL:0800-603-0562【通話料無料】携帯電話・PHSからもご利用いただけます 発信者番号は通知されません 「SUUMO(スーモ)を見た」と問い合わせください つながらない方、不動産会社の方は
|
Administrative expense 管理費 | | 9700 yen / Month (consignment (cyclic)) 9700円/月(委託(巡回)) |
Repair reserve 修繕積立金 | | 16,460 yen / Month 1万6460円/月 |
Time residents 入居時期 | | Immediate available 即入居可 |
Whereabouts floor 所在階 | | 4th floor 4階 |
Direction 向き | | Southwest 南西 |
Renovation リフォーム | | October 2013 interior renovation completed (kitchen ・ bathroom ・ toilet ・ wall ・ floor ・ all rooms) 2013年10月内装リフォーム済(キッチン・浴室・トイレ・壁・床・全室) |
Overview and notices その他概要・特記事項 | | Contact: Komuro TakeMinoru 担当者:小室 武稔 |
Structure-storey 構造・階建て | | RC7 story RC7階建 |
Site of the right form 敷地の権利形態 | | Ownership 所有権 |
Use district 用途地域 | | Quasi-residence 準住居 |
Parking lot 駐車場 | | Sky Mu 空無 |
Company profile 会社概要 | | <Mediation> Minister of Land, Infrastructure and Transport (3) No. 006,185 (one company) National Housing Industry Association (Corporation) metropolitan area real estate Fair Trade Council member Asahi Housing Corporation Yokohama Yubinbango221-0835 Yokohama-shi, Kanagawa, Kanagawa-ku, Tsuruya-cho, 2-26 - 2 fourth Yasuda Building second floor <仲介>国土交通大臣(3)第006185号(一社)全国住宅産業協会会員 (公社)首都圏不動産公正取引協議会加盟朝日住宅(株)横浜店〒221-0835 神奈川県横浜市神奈川区鶴屋町2-26ー2 第4安田ビル2階 |
Construction 施工 | | Mitsui Construction Co., Ltd. Co., Ltd. 三井建設株式会社 |