|
|
Yokohama City, Kanagawa Prefecture, Aoba-ku,
神奈川県横浜市青葉区
|
|
Denentoshi Tokyu "Tana" walk 6 minutes
東急田園都市線「田奈」歩6分
|
|
Indoor New Renovation, Yang per not therefore southwest angle room front building ・ View ・ Ventilation good, Heisei 21-year large-scale repair work construction work already.
室内新規リノベーション、南西角部屋前面建物御座いませんので陽当り・眺望・通風良好、平成21年大規模修繕工事工事済みです。
|
|
Weekday ・ Saturday and Sunday ・ We will guide regardless of holiday, Want to come and see the property, Anyone who want documentation, Please contact us by all means. In the case of our alliance mortgage available, The entire period up to 1.75 percent preferential treatment (to apply, conditions ・ Examination there)
平日・土日・祝日問わずご案内致します、物件を実際に見たい、資料が欲しいという方は、是非お問合せくださいませ。弊社の提携住宅ローン利用の場合、全期間最大1.75パーセント優遇(適用には、条件・審査がございます)
|
Features pickup 特徴ピックアップ | | Corresponding to the flat-35S / Fit renovation / Immediate Available / Super close / It is close to the city / Interior renovation / System kitchen / Bathroom Dryer / Yang per good / All room storage / Washbasin with shower / Southeast direction / Flooring Chokawa / Elevator / Otobasu / Warm water washing toilet seat / High-function toilet / Urban neighborhood / Ventilation good / All living room flooring / Good view / Walk-in closet / water filter / Movable partition フラット35Sに対応 /適合リノベーション /即入居可 /スーパーが近い /市街地が近い /内装リフォーム /システムキッチン /浴室乾燥機 /陽当り良好 /全居室収納 /シャワー付洗面台 /東南向き /フローリング張替 /エレベーター /オートバス /温水洗浄便座 /高機能トイレ /都市近郊 /通風良好 /全居室フローリング /眺望良好 /ウォークインクロゼット /浄水器 /可動間仕切り |
Property name 物件名 | | Cosmo Aobadai West Hills Building A コスモ青葉台ウエストヒルズA棟 |
Price 価格 | | 31,900,000 yen 3190万円 |
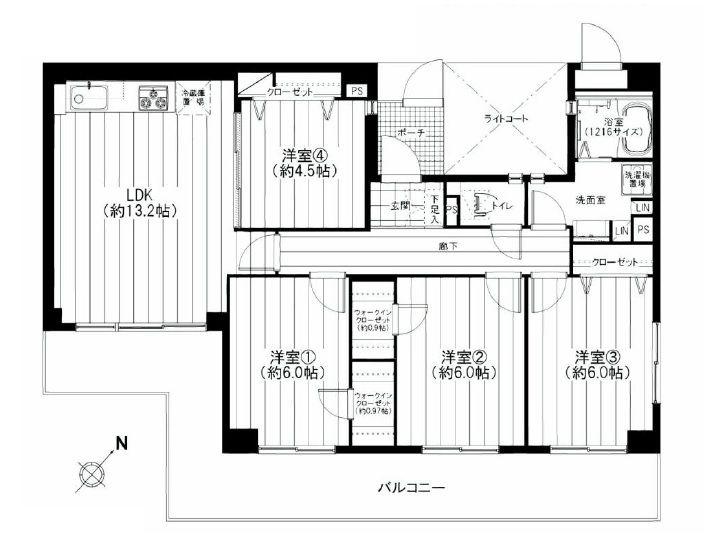
Floor plan 間取り | | 4LDK 4LDK |
Units sold 販売戸数 | | 1 units 1戸 |
Total units 総戸数 | | 60 units 60戸 |
Occupied area 専有面積 | | 81.96 sq m (center line of wall) 81.96m2(壁芯) |
Other area その他面積 | | Balcony area: 22.04 sq m バルコニー面積:22.04m2 |
Whereabouts floor / structures and stories 所在階/構造・階建 | | Second floor / RC10 story 2階/RC10階建 |
Completion date 完成時期(築年月) | | July 1986 1986年7月 |
Address 住所 | | Yokohama City, Kanagawa Prefecture, Aoba-ku, Shiratoridai 神奈川県横浜市青葉区しらとり台 |
Traffic 交通 | | Denentoshi Tokyu "Tana" walk 6 minutes Denentoshi Tokyu "Aobadai" walk 13 minutes JR Yokohama Line "Tokaichiba" walk 16 minutes 東急田園都市線「田奈」歩6分 東急田園都市線「青葉台」歩13分 JR横浜線「十日市場」歩16分
|
Person in charge 担当者より | | The person in charge Masakazu Ono 担当者小野 正和 |
Contact お問い合せ先 | | TEL: 0800-603-7122 [Toll free] mobile phone ・ Also available from PHS Caller ID is not notified Please contact the "saw SUUMO (Sumo)" If it does not lead, If the real estate company TEL:0800-603-7122【通話料無料】携帯電話・PHSからもご利用いただけます 発信者番号は通知されません 「SUUMO(スーモ)を見た」と問い合わせください つながらない方、不動産会社の方は
|
Administrative expense 管理費 | | 13,200 yen / Month (consignment (commuting)) 1万3200円/月(委託(通勤)) |
Repair reserve 修繕積立金 | | 14,170 yen / Month 1万4170円/月 |
Expenses 諸費用 | | Pay-TV listening fee: 1000 yen / Month 有料放送聴取料:1000円/月 |
Time residents 入居時期 | | Immediate available 即入居可 |
Whereabouts floor 所在階 | | Second floor 2階 |
Direction 向き | | Southeast 南東 |
Renovation リフォーム | | 2013 November interior renovation completed (kitchen ・ bathroom ・ toilet ・ wall ・ floor ・ all rooms ・ Full renewal) 2013年11月内装リフォーム済(キッチン・浴室・トイレ・壁・床・全室・フルリニューアル) |
Overview and notices その他概要・特記事項 | | Contact: Masakazu Ono 担当者:小野 正和 |
Structure-storey 構造・階建て | | RC10 story RC10階建 |
Site of the right form 敷地の権利形態 | | Ownership 所有権 |
Use district 用途地域 | | Quasi-residence 準住居 |
Parking lot 駐車場 | | Site (15,000 yen / Month) 敷地内(1万5000円/月) |
Company profile 会社概要 | | <Mediation> Minister of Land, Infrastructure and Transport (2) the first 007,684 No. + HOUSE Yokohama Office (Ltd.) propoxycarbonyl life Yubinbango230-0062 Kanagawa Prefecture Tsurumi-ku, Yokohama City Toyooka-cho, 8-24 first floor <仲介>国土交通大臣(2)第007684号+HOUSE横浜Office(株)プロポライフ〒230-0062 神奈川県横浜市鶴見区豊岡町8-24 1階 |
Construction 施工 | | Fujita Industrial Co., Ltd. フジタ工業株式会社 |