|
|
Yokohama City, Kanagawa Prefecture, Aoba-ku,
神奈川県横浜市青葉区
|
|
Denentoshi Tokyu "Tana" walk 6 minutes
東急田園都市線「田奈」歩6分
|
|
Per yang per southwest angle room, Ventilation is good. Construction the room renovation. Happy is with new furniture.
南西角部屋につき陽当たり、通風良好です。室内リノベーションを施工。嬉しい新品家具付きです。
|
|
■ Our Sumitai the JR Yokohama Line Machida Station walk [30 seconds] ■ To suit the needs of our customers [All-day guidance] Doing ■ By staff who are familiar with each region [Wide area] Is possible. Introduction ■ Guidance from the Contact Us, Your delivery from the contract, By full-time staff of only customers up to after-sales service [Consistent support system] The available! ■ school, Supermarket, Traffic access, Such as hospitals [Neighborhood environment guidance] It will do ■ [All of the mortgage] It is possible handling of ■ Movers, Construction company, Insurance companies, etc. [A large number of partner companies] Introducing the! ■ gas, Water, Electrical, etc. [Also guidance for the various Procedures] It will do ■ By the guidance and counsel tax accountant of the necessary tax returns after the home purchase [Free Seminar]
■当社スミタイはJR横浜線町田駅徒歩【30秒】■お客様のご要望に合わせて【終日ご案内】しております■各地域に精通したスタッフによる【広域エリア】のご紹介が可能です■お問合せからご案内、ご契約からお引渡し、アフターサービスまでお客様だけの専任スタッフによる【一貫したサポート体制】をご用意!■学校、スーパー、交通アクセス、病院等の【近隣環境もご案内】致します■【全ての住宅ローン】のお取扱いが可能です■引越し業者、建築会社、保険会社など【多数の協力会社】をご紹介!■ガス、水道、電気等の【各種お手続きについてもご案内】致します■住宅購入後に必要な確定申告のご案内及び顧問税理士による【無料セミナー開催】
|
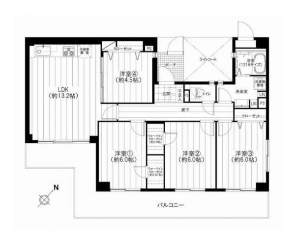
Features pickup 特徴ピックアップ | | Corresponding to the flat-35S / Year Available / Interior renovation / System kitchen / Bathroom Dryer / Corner dwelling unit / Yang per good / All room storage / A quiet residential area / Southeast direction / Elevator / Warm water washing toilet seat / Ventilation good / All living room flooring / Walk-in closet / water filter フラット35Sに対応 /年内入居可 /内装リフォーム /システムキッチン /浴室乾燥機 /角住戸 /陽当り良好 /全居室収納 /閑静な住宅地 /東南向き /エレベーター /温水洗浄便座 /通風良好 /全居室フローリング /ウォークインクロゼット /浄水器 |
Property name 物件名 | | Cosmo Aobadai West Hills コスモ青葉台ウエストヒルズ |
Price 価格 | | 31,900,000 yen 3190万円 |
Floor plan 間取り | | 4LDK 4LDK |
Units sold 販売戸数 | | 1 units 1戸 |
Total units 総戸数 | | 60 units 60戸 |
Occupied area 専有面積 | | 81.96 sq m (center line of wall) 81.96m2(壁芯) |
Other area その他面積 | | Balcony area: 22.04 sq m バルコニー面積:22.04m2 |
Whereabouts floor / structures and stories 所在階/構造・階建 | | 3rd floor / RC10 story 3階/RC10階建 |
Completion date 完成時期(築年月) | | July 1986 1986年7月 |
Address 住所 | | Yokohama City, Kanagawa Prefecture, Aoba-ku, Shiratoridai 62-17 神奈川県横浜市青葉区しらとり台62-17 |
Traffic 交通 | | Denentoshi Tokyu "Tana" walk 6 minutes Denentoshi Tokyu "Aobadai" walk 13 minutes JR Yokohama Line "Tokaichiba" walk 20 minutes 東急田園都市線「田奈」歩6分 東急田園都市線「青葉台」歩13分 JR横浜線「十日市場」歩20分
|
Related links 関連リンク | | [Related Sites of this company] 【この会社の関連サイト】 |
Person in charge 担当者より | | The first distribution division personnel Kimura Yunenrei: 30 Daigyokai Experience: 3 years born in Chofu, Tokyo. But I grew up is around Tachikawa, Haunt area because the hobby is the drive is widely, Local information also recommended including let me introduce. It will help you find the customer's BEST1 together !! 担当者第1流通事業部 木村優年齢:30代業界経験:3年生まれは東京の調布市。育ちは立川周辺ですが、趣味がドライブですので出没エリアは幅広く、オススメの地域情報も含めてご紹介させて頂きます。お客様のBEST1を一緒に見つけましょう!! |
Contact お問い合せ先 | | TEL: 0800-603-9093 [Toll free] mobile phone ・ Also available from PHS Caller ID is not notified Please contact the "saw SUUMO (Sumo)" If it does not lead, If the real estate company TEL:0800-603-9093【通話料無料】携帯電話・PHSからもご利用いただけます 発信者番号は通知されません 「SUUMO(スーモ)を見た」と問い合わせください つながらない方、不動産会社の方は
|
Administrative expense 管理費 | | 13,200 yen / Month (consignment (commuting)) 1万3200円/月(委託(通勤)) |
Repair reserve 修繕積立金 | | 14,170 yen / Month 1万4170円/月 |
Time residents 入居時期 | | Consultation 相談 |
Whereabouts floor 所在階 | | 3rd floor 3階 |
Direction 向き | | Southeast 南東 |
Renovation リフォーム | | 2013 November interior renovation completed (kitchen ・ bathroom ・ toilet ・ wall ・ floor ・ all rooms) 2013年11月内装リフォーム済(キッチン・浴室・トイレ・壁・床・全室) |
Overview and notices その他概要・特記事項 | | The person in charge: first distribution business unit Yu Kimura 担当者:第1流通事業部 木村優 |
Structure-storey 構造・階建て | | RC10 story RC10階建 |
Site of the right form 敷地の権利形態 | | Ownership 所有権 |
Use district 用途地域 | | Quasi-residence 準住居 |
Parking lot 駐車場 | | Site (15,000 yen / Month) 敷地内(1万5000円/月) |
Company profile 会社概要 | | <Mediation> Governor of Tokyo (1) the first 090,169 No. live want information net (Ltd.) Sumitai headquarters Yubinbango194-0013 Machida, Tokyo Haramachida 1-1-3 high stone building the fourth floor <仲介>東京都知事(1)第090169号住みたい情報ネット(株)スミタイ本社〒194-0013 東京都町田市原町田1-1-3 ハイストーンビル4階 |
Construction 施工 | | Fujita Corporation フジタ工業 |