|
|
Yokohama City, Kanagawa Prefecture, Aoba-ku,
神奈川県横浜市青葉区
|
|
Denentoshi Tokyu "Tama Plaza" walk 7 minutes
東急田園都市線「たまプラーザ」歩7分
|
|
■ ■ Indoor "video" in the published ■ ■ The latest information we are UP in the maintenance of beautiful photo See also twice a week ◆ «New Year» also possible guidance! It is okay on the day. Please call us! !
■■室内『動画』掲載中■■綺麗な写真もご覧ください週2回のメンテナンスで最新情報をUPしています◆≪年末年始≫もご案内可能!当日でも大丈夫です。ぜひお電話ください!!
|
|
■ New interior renovation ■ Denentoshi "Tama" station 7-minute walk ■ Southwest North 3 direction angle room ■ Per yang ・ ventilation ・ Daylighting good ■ There is under-floor storage ■ Night and Saturday and Sunday with a glass top stove Shibuya real estate, We are allowed to guide you regardless weekdays. Because your time of your preview is also available up to time, Please Kuda tell us a good convenient for you date and time. "Rapidly, Firmly, Efficiently "property looking for will be of support. If there are other things in your consideration also the property you contact, Come please consult. Customers will be happy to fullest support to you as you move met in your area of your choice!
■新規内装リノベーション ■田園都市線「たまプラーザ」駅徒歩7分 ■南西北3方向角部屋 ■陽当たり・通風・採光良好 ■床下収納あり ■ガラストップコンロ 渋谷不動産では夜間や土日、平日問わずご案内させて頂いております。ご内覧のお時間は何時まででも可能ですので、ご都合の良い日時をお申し付けくだださい。 「迅速に、しっかりと、効率よく」物件探しのサポート致します。 お問い合わせいただいた物件の他にもご検討中の物があれば、是非ご相談ください。 お客様がご希望のお住まいに出会えますよう お引越しまで精一杯サポートさせて頂きます!
|
Features pickup 特徴ピックアップ | | Corresponding to the flat-35S / Immediate Available / 2 along the line more accessible / Super close / Interior renovation / Corner dwelling unit / Yang per good / All room storage / Japanese-style room / Security enhancement / Flooring Chokawa / Warm water washing toilet seat / Underfloor Storage / Renovation / Ventilation good / Southwestward フラット35Sに対応 /即入居可 /2沿線以上利用可 /スーパーが近い /内装リフォーム /角住戸 /陽当り良好 /全居室収納 /和室 /セキュリティ充実 /フローリング張替 /温水洗浄便座 /床下収納 /リノベーション /通風良好 /南西向き |
Event information イベント情報 | | Local tours (Please be sure to ask in advance) schedule / During the public time / 10:00 ~ At 21:00 local staff are not resident. Beforehand" 0120-888-106 "Shibuya until the real estate please feel free to contact. Also, Your way home from work regardless of course weekends and public holidays, We will arrange for preview. 現地見学会(事前に必ずお問い合わせください)日程/公開中時間/10:00 ~ 21:00現地にスタッフは常駐しておりません。 事前に「 0120-888-106 」渋谷不動産までお気軽にご連絡下さい。 また、お仕事帰りはもちろん土日祝祭日問わず、内覧の手配を致します。 |
Property name 物件名 | | Tama Plaza Utsukushigaoka Park Homes たまプラーザ美しが丘パークホームズ |
Price 価格 | | 44,800,000 yen 4480万円 |
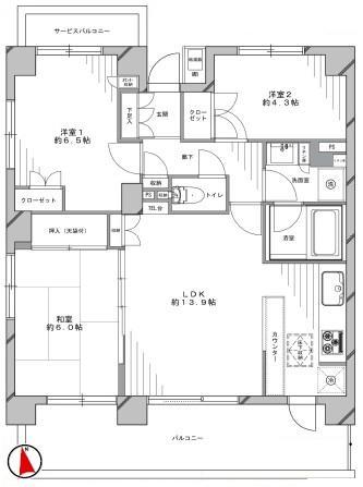
Floor plan 間取り | | 3LDK 3LDK |
Units sold 販売戸数 | | 1 units 1戸 |
Total units 総戸数 | | 27 units 27戸 |
Occupied area 専有面積 | | 67.88 sq m (center line of wall) 67.88m2(壁芯) |
Other area その他面積 | | Balcony area: 14.3 sq m バルコニー面積:14.3m2 |
Whereabouts floor / structures and stories 所在階/構造・階建 | | 1st floor / RC7 story 1階/RC7階建 |
Completion date 完成時期(築年月) | | February 1998 1998年2月 |
Address 住所 | | Yokohama City, Kanagawa Prefecture, Aoba-ku, Utsukushigaoka 5 神奈川県横浜市青葉区美しが丘5 |
Traffic 交通 | | Denentoshi Tokyu "Tama Plaza" walk 7 minutes Blue Line "Azamino" walk 9 minutes Denentoshi Tokyu "Saginuma" walk 22 minutes 東急田園都市線「たまプラーザ」歩7分 ブルーライン「あざみ野」歩9分 東急田園都市線「鷺沼」歩22分
|
Related links 関連リンク | | [Related Sites of this company] 【この会社の関連サイト】 |
Person in charge 担当者より | | Rep Oikawa KazuAkira Age: lightness of the 30's footwork is my flavor. Your family like is looking for you live, You run around to the west to the east. We will help you the best of your house hunting to spend with loved ones. My best and my best so that I am allowed to introduce you live inspirational. 担当者及川 和亮年齢:30代フットワークの軽さが私の持ち味です。ご家族様がお住まいを探して、西へ東へ走り回ります。大切な人と過ごす最高のお家探しのお手伝いをいたします。心に響くお住まいをご紹介させて頂くよう精一杯頑張ります。 |
Contact お問い合せ先 | | TEL: 0800-603-9210 [Toll free] mobile phone ・ Also available from PHS Caller ID is not notified Please contact the "saw SUUMO (Sumo)" If it does not lead, If the real estate company TEL:0800-603-9210【通話料無料】携帯電話・PHSからもご利用いただけます 発信者番号は通知されません 「SUUMO(スーモ)を見た」と問い合わせください つながらない方、不動産会社の方は
|
Administrative expense 管理費 | | 11,300 yen / Month (consignment (cyclic)) 1万1300円/月(委託(巡回)) |
Repair reserve 修繕積立金 | | 16,290 yen / Month 1万6290円/月 |
Time residents 入居時期 | | Immediate available 即入居可 |
Whereabouts floor 所在階 | | 1st floor 1階 |
Direction 向き | | Southwest 南西 |
Renovation リフォーム | | October 2013 interior renovation completed (kitchen ・ bathroom ・ toilet ・ wall ・ floor) 2013年10月内装リフォーム済(キッチン・浴室・トイレ・壁・床) |
Overview and notices その他概要・特記事項 | | Contact: Oikawa KazuAkira 担当者:及川 和亮 |
Structure-storey 構造・階建て | | RC7 story RC7階建 |
Site of the right form 敷地の権利形態 | | Ownership 所有権 |
Use district 用途地域 | | City planning area outside 都市計画区域外 |
Parking lot 駐車場 | | Site (16,000 yen / Month) 敷地内(1万6000円/月) |
Company profile 会社概要 | | <Mediation> Governor of Tokyo (1) No. 090353 (Ltd.) Shibuya real estate 150-0002 Shibuya, Shibuya-ku, Tokyo 2-10-15 JPL Bill 1 ・ Second floor <仲介>東京都知事(1)第090353号(株)渋谷不動産〒150-0002 東京都渋谷区渋谷2-10-15 JPLビル1・2階 |
Construction 施工 | | Mitsui Construction Co., Ltd. (stock) 三井建設(株) |