|
|
Yokohama City, Kanagawa Prefecture, Aoba-ku,
神奈川県横浜市青葉区
|
|
Blue Line "Azamino" walk 1 minute
ブルーライン「あざみ野」歩1分
|
|
Or life are you feeling before the station of a 1-minute walk from the station?
駅より徒歩1分の駅前生活はいかがですか?
|
|
Metropolitan area, Okay without a change of trains also to Yokohama Station. Day per the top floor ・ Good view!
都内、横浜駅へも電車の乗り換えなしで大丈夫です。 最上階につき日当り・眺望良好!
|
Features pickup 特徴ピックアップ | | Fit renovation / Immediate Available / 2 along the line more accessible / System kitchen / Bathroom Dryer / Yang per good / Flat to the station / LDK15 tatami mats or more / Japanese-style room / Starting station / top floor ・ No upper floor / Southeast direction / Elevator / Good view / Flat terrain 適合リノベーション /即入居可 /2沿線以上利用可 /システムキッチン /浴室乾燥機 /陽当り良好 /駅まで平坦 /LDK15畳以上 /和室 /始発駅 /最上階・上階なし /東南向き /エレベーター /眺望良好 /平坦地 |
Property name 物件名 | | Green Hill Azamino グリーンヒルあざみ野 |
Price 価格 | | 37,800,000 yen 3780万円 |
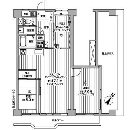
Floor plan 間取り | | 3LDK 3LDK |
Units sold 販売戸数 | | 1 units 1戸 |
Total units 総戸数 | | 23 units 23戸 |
Occupied area 専有面積 | | 71.33 sq m (center line of wall) 71.33m2(壁芯) |
Other area その他面積 | | Balcony area: 34.94 sq m バルコニー面積:34.94m2 |
Whereabouts floor / structures and stories 所在階/構造・階建 | | 5th floor / RC5 floors 1 underground story 5階/RC5階地下1階建 |
Completion date 完成時期(築年月) | | December 1984 1984年12月 |
Address 住所 | | Yokohama City, Kanagawa Prefecture, Aoba-ku, Azamino 1 神奈川県横浜市青葉区あざみ野1 |
Traffic 交通 | | Blue Line "Azamino" walk 1 minute Denentoshi Tokyu "Azamino" walk 1 minute ブルーライン「あざみ野」歩1分 東急田園都市線「あざみ野」歩1分
|
Related links 関連リンク | | [Related Sites of this company] 【この会社の関連サイト】 |
Contact お問い合せ先 | | TEL: 0800-603-0562 [Toll free] mobile phone ・ Also available from PHS Caller ID is not notified Please contact the "saw SUUMO (Sumo)" If it does not lead, If the real estate company TEL:0800-603-0562【通話料無料】携帯電話・PHSからもご利用いただけます 発信者番号は通知されません 「SUUMO(スーモ)を見た」と問い合わせください つながらない方、不動産会社の方は
|
Administrative expense 管理費 | | 18,500 yen / Month (consignment (cyclic)) 1万8500円/月(委託(巡回)) |
Repair reserve 修繕積立金 | | 14,400 yen / Month 1万4400円/月 |
Time residents 入居時期 | | Immediate available 即入居可 |
Whereabouts floor 所在階 | | 5th floor 5階 |
Direction 向き | | Southeast 南東 |
Renovation リフォーム | | October 2013 interior renovation completed (kitchen ・ bathroom ・ toilet ・ wall ・ floor ・ all rooms) 2013年10月内装リフォーム済(キッチン・浴室・トイレ・壁・床・全室) |
Structure-storey 構造・階建て | | RC5 floors 1 underground story RC5階地下1階建 |
Site of the right form 敷地の権利形態 | | Ownership 所有権 |
Use district 用途地域 | | Two mid-high 2種中高 |
Parking lot 駐車場 | | Nothing 無 |
Company profile 会社概要 | | <Mediation> Minister of Land, Infrastructure and Transport (3) No. 006,185 (one company) National Housing Industry Association (Corporation) metropolitan area real estate Fair Trade Council member Asahi Housing Corporation Yokohama Yubinbango221-0835 Yokohama-shi, Kanagawa, Kanagawa-ku, Tsuruya-cho, 2-26 - 2 fourth Yasuda Building second floor <仲介>国土交通大臣(3)第006185号(一社)全国住宅産業協会会員 (公社)首都圏不動産公正取引協議会加盟朝日住宅(株)横浜店〒221-0835 神奈川県横浜市神奈川区鶴屋町2-26ー2 第4安田ビル2階 |