|
|
Yokohama City, Kanagawa Prefecture, Aoba-ku,
神奈川県横浜市青葉区
|
|
Denentoshi Tokyu "Ichigao" walk 2 minutes
東急田園都市線「市が尾」歩2分
|
|
Denentoshi very quiet rooms despite the "Ichigao" station a 2-minute walk of the good location! It became a storage abundant room for that kind of walk-through closet! You pets could live
田園都市線『市が尾』駅徒歩2分の好立地にも関わらず大変静かなお部屋です!ウォークスルークローゼットを親切したため収納豊富なお部屋となりました!ペットと暮らせます
|
|
Balcony is sound because it is the opposite side of the 246 Line is not worried! Anyway station near property! !
バルコニーは246号線の反対側ですので音は気になりません!とにかく駅近物件です!!
|
Features pickup 特徴ピックアップ | | Immediate Available / System kitchen / Bathroom Dryer / Washbasin with shower / Southeast direction / Flooring Chokawa / Bicycle-parking space / Elevator / High speed Internet correspondence / Warm water washing toilet seat / Renovation / All living room flooring / Walk-in closet / Pets Negotiable / BS ・ CS ・ CATV / Bike shelter 即入居可 /システムキッチン /浴室乾燥機 /シャワー付洗面台 /東南向き /フローリング張替 /駐輪場 /エレベーター /高速ネット対応 /温水洗浄便座 /リノベーション /全居室フローリング /ウォークインクロゼット /ペット相談 /BS・CS・CATV /バイク置場 |
Property name 物件名 | | ☆ Family Corporate Ichigao ☆ ☆ファミリーコーポ市ヶ尾☆ |
Price 価格 | | 17.8 million yen 1780万円 |
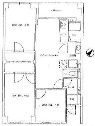
Floor plan 間取り | | 3DK 3DK |
Units sold 販売戸数 | | 1 units 1戸 |
Occupied area 専有面積 | | 57.06 sq m 57.06m2 |
Other area その他面積 | | Balcony area: 6.76 sq m バルコニー面積:6.76m2 |
Whereabouts floor / structures and stories 所在階/構造・階建 | | 6th floor / SRC10 story 6階/SRC10階建 |
Completion date 完成時期(築年月) | | May 1974 1974年5月 |
Address 住所 | | Yokohama City, Kanagawa Prefecture, Aoba-ku, Ichigao cho 神奈川県横浜市青葉区市ケ尾町 |
Traffic 交通 | | Denentoshi Tokyu "Ichigao" walk 2 minutes 東急田園都市線「市が尾」歩2分
|
Related links 関連リンク | | [Related Sites of this company] 【この会社の関連サイト】 |
Person in charge 担当者より | | Personnel Nishimura Toshihiko Age: 20 Daigyokai experience: still entered the one-year real estate industry, Shallow How can, We will work hard hard. Thank you. 担当者西村 敏彦年齢:20代業界経験:1年不動産業界に入ってまだ、浅いのですが、一生懸命頑張っていきます。よろしくお願い致します。 |
Contact お問い合せ先 | | TEL: 0800-808-9283 [Toll free] mobile phone ・ Also available from PHS Caller ID is not notified Please contact the "saw SUUMO (Sumo)" If it does not lead, If the real estate company TEL:0800-808-9283【通話料無料】携帯電話・PHSからもご利用いただけます 発信者番号は通知されません 「SUUMO(スーモ)を見た」と問い合わせください つながらない方、不動産会社の方は
|
Administrative expense 管理費 | | 10,900 yen / Month (consignment (commuting)) 1万900円/月(委託(通勤)) |
Repair reserve 修繕積立金 | | 18,230 yen / Month 1万8230円/月 |
Time residents 入居時期 | | Immediate available 即入居可 |
Whereabouts floor 所在階 | | 6th floor 6階 |
Direction 向き | | Southeast 南東 |
Renovation リフォーム | | December 2013 interior renovation completed (kitchen ・ bathroom ・ toilet ・ wall ・ floor ・ all rooms) 2013年12月内装リフォーム済(キッチン・浴室・トイレ・壁・床・全室) |
Overview and notices その他概要・特記事項 | | Contact: Nishimura Toshihiko 担当者:西村 敏彦 |
Structure-storey 構造・階建て | | SRC10 story SRC10階建 |
Site of the right form 敷地の権利形態 | | Ownership 所有権 |
Company profile 会社概要 | | <Mediation> Governor of Kanagawa Prefecture (8) No. 013126 No. Century 21 (stock) Shonan Estate Yokohama Yubinbango225-0024 Yokohama City, Kanagawa Prefecture, Aoba-ku, Ichigao cho 1162-1 family Incorporated Ichigao first floor <仲介>神奈川県知事(8)第013126号センチュリー21(株)湘南エステート横浜〒225-0024 神奈川県横浜市青葉区市ケ尾町1162-1 ファミリーコーポ市ヶ尾1階 |