|
|
Yokohama City, Kanagawa Prefecture, Aoba-ku,
神奈川県横浜市青葉区
|
|
Denentoshi Tokyu "Tama Plaza" walk 10 minutes
東急田園都市線「たまプラーザ」歩10分
|
|
Denentoshi "Tama" station a 10-minute walk
田園都市線「たまプラーザ」駅徒歩10分
|
|
Big community the top floor of the total number of units 1254 units, Southwestward, Corner dwelling unit, Day good!
総戸数1254戸のビッグコミュニティー 最上階、南西向き、角住戸、日当り良好!
|
Features pickup 特徴ピックアップ | | Fit renovation / Immediate Available / System kitchen / A quiet residential area / Around traffic fewer / top floor ・ No upper floor / Washbasin with shower / Warm water washing toilet seat / The window in the bathroom / Leafy residential area / All living room flooring / Southwestward / water filter 適合リノベーション /即入居可 /システムキッチン /閑静な住宅地 /周辺交通量少なめ /最上階・上階なし /シャワー付洗面台 /温水洗浄便座 /浴室に窓 /緑豊かな住宅地 /全居室フローリング /南西向き /浄水器 |
Property name 物件名 | | Tama Plaza housing complex 5 city blocks たまプラーザ団地5街区 |
Price 価格 | | 21.9 million yen 2190万円 |
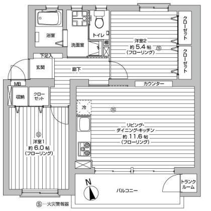
Floor plan 間取り | | 2LDK 2LDK |
Units sold 販売戸数 | | 1 units 1戸 |
Total units 総戸数 | | 30 units 30戸 |
Occupied area 専有面積 | | 56.36 sq m (center line of wall) 56.36m2(壁芯) |
Other area その他面積 | | Balcony area: 5.4 sq m バルコニー面積:5.4m2 |
Whereabouts floor / structures and stories 所在階/構造・階建 | | 5th floor / RC5 story 5階/RC5階建 |
Completion date 完成時期(築年月) | | March 1968 1968年3月 |
Address 住所 | | Yokohama City, Kanagawa Prefecture, Aoba-ku, Utsukushigaoka 1 神奈川県横浜市青葉区美しが丘1 |
Traffic 交通 | | Denentoshi Tokyu "Tama Plaza" walk 10 minutes 東急田園都市線「たまプラーザ」歩10分
|
Related links 関連リンク | | [Related Sites of this company] 【この会社の関連サイト】 |
Person in charge 担当者より | | Person in charge of real-estate and building Takizawa Seimoto Age: 40 Daigyokai experience: anything that related to 10-year real estate Please feel free to contact us. 担当者宅建瀧澤 正基年齢:40代業界経験:10年不動産に関する事なら何でもお気軽にご相談下さい。 |
Contact お問い合せ先 | | TEL: 0800-603-0562 [Toll free] mobile phone ・ Also available from PHS Caller ID is not notified Please contact the "saw SUUMO (Sumo)" If it does not lead, If the real estate company TEL:0800-603-0562【通話料無料】携帯電話・PHSからもご利用いただけます 発信者番号は通知されません 「SUUMO(スーモ)を見た」と問い合わせください つながらない方、不動産会社の方は
|
Administrative expense 管理費 | | 4500 yen / Month (consignment (commuting)) 4500円/月(委託(通勤)) |
Repair reserve 修繕積立金 | | 7500 yen / Month 7500円/月 |
Time residents 入居時期 | | Immediate available 即入居可 |
Whereabouts floor 所在階 | | 5th floor 5階 |
Direction 向き | | Southwest 南西 |
Renovation リフォーム | | June 2013 interior renovation completed (kitchen ・ bathroom ・ toilet ・ wall ・ floor ・ all rooms) 2013年6月内装リフォーム済(キッチン・浴室・トイレ・壁・床・全室) |
Overview and notices その他概要・特記事項 | | Contact: Takizawa Seimoto 担当者:瀧澤 正基 |
Structure-storey 構造・階建て | | RC5 story RC5階建 |
Site of the right form 敷地の権利形態 | | Ownership 所有権 |
Use district 用途地域 | | One middle and high 1種中高 |
Parking lot 駐車場 | | Sky Mu 空無 |
Company profile 会社概要 | | <Mediation> Minister of Land, Infrastructure and Transport (3) No. 006,185 (one company) National Housing Industry Association (Corporation) metropolitan area real estate Fair Trade Council member Asahi Housing Corporation Yokohama Yubinbango221-0835 Yokohama-shi, Kanagawa, Kanagawa-ku, Tsuruya-cho, 2-26 - 2 fourth Yasuda Building second floor <仲介>国土交通大臣(3)第006185号(一社)全国住宅産業協会会員 (公社)首都圏不動産公正取引協議会加盟朝日住宅(株)横浜店〒221-0835 神奈川県横浜市神奈川区鶴屋町2-26ー2 第4安田ビル2階 |