|
|
Yokohama City, Kanagawa Prefecture, Aoba-ku,
神奈川県横浜市青葉区
|
|
Denentoshi Tokyu "Ichigao" walk 8 minutes
東急田園都市線「市が尾」歩8分
|
|
This is an introduction from the information net that want to live. It is built shallow apartment of an 8-minute walk from the train station. Room spacious 3LDK. Renovated is.
住みたい情報ネットからのご紹介です。駅から徒歩8分の築浅マンションです。室内ゆったり3LDK。リフォーム済みです。
|
|
■ Our Sumitai the JR Yokohama Line Machida Station walk [30 seconds] ■ To suit the needs of our customers [All-day guidance] Doing ■ By staff who are familiar with each region [Wide area] Is possible. Introduction ■ Guidance from the Contact Us, Your delivery from the contract, By full-time staff of only customers up to after-sales service [Consistent support system] The available! ■ school, Supermarket, Traffic access, Such as hospitals [Neighborhood environment guidance] It will do ■ [All of the mortgage] It is possible handling of ■ Movers, Construction company, Insurance companies, etc. [A large number of partner companies] Introducing the! ■ gas, Water, Electrical, etc. [Also guidance for the various Procedures] It will do ■ By the guidance and counsel tax accountant of the necessary tax returns after the home purchase [Free Seminar]
■当社スミタイはJR横浜線町田駅徒歩【30秒】■お客様のご要望に合わせて【終日ご案内】しております■各地域に精通したスタッフによる【広域エリア】のご紹介が可能です■お問合せからご案内、ご契約からお引渡し、アフターサービスまでお客様だけの専任スタッフによる【一貫したサポート体制】をご用意!■学校、スーパー、交通アクセス、病院等の【近隣環境もご案内】致します■【全ての住宅ローン】のお取扱いが可能です■引越し業者、建築会社、保険会社など【多数の協力会社】をご紹介!■ガス、水道、電気等の【各種お手続きについてもご案内】致します■住宅購入後に必要な確定申告のご案内及び顧問税理士による【無料セミナー開催】
|
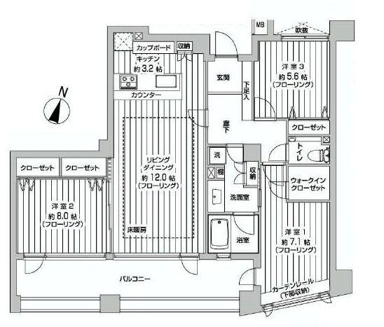
Features pickup 特徴ピックアップ | | Immediate Available / It is close to the city / Interior renovation / System kitchen / Bathroom Dryer / Yang per good / All room storage / LDK15 tatami mats or more / Face-to-face kitchen / Southeast direction / Elevator / High speed Internet correspondence / Warm water washing toilet seat / TV monitor interphone / All living room flooring / Dish washing dryer / Walk-in closet / water filter / BS ・ CS ・ CATV / Floor heating / Delivery Box 即入居可 /市街地が近い /内装リフォーム /システムキッチン /浴室乾燥機 /陽当り良好 /全居室収納 /LDK15畳以上 /対面式キッチン /東南向き /エレベーター /高速ネット対応 /温水洗浄便座 /TVモニタ付インターホン /全居室フローリング /食器洗乾燥機 /ウォークインクロゼット /浄水器 /BS・CS・CATV /床暖房 /宅配ボックス |
Property name 物件名 | | Elle ・ Domani 20 エル・ドマーニ20 |
Price 価格 | | 39,950,000 yen 3995万円 |
Floor plan 間取り | | 3LDK 3LDK |
Units sold 販売戸数 | | 1 units 1戸 |
Total units 総戸数 | | 20 units 20戸 |
Occupied area 専有面積 | | 81.82 sq m (center line of wall) 81.82m2(壁芯) |
Other area その他面積 | | Balcony area: 17.89 sq m バルコニー面積:17.89m2 |
Whereabouts floor / structures and stories 所在階/構造・階建 | | 4th floor / RC7 story 4階/RC7階建 |
Completion date 完成時期(築年月) | | January 2005 2005年1月 |
Address 住所 | | Yokohama City, Kanagawa Prefecture, Aoba-ku, Ichigao cho 1050-1 神奈川県横浜市青葉区市ケ尾町1050-1 |
Traffic 交通 | | Denentoshi Tokyu "Ichigao" walk 8 minutes Denentoshi Tokyu "Fujigaoka" walk 19 minutes Denentoshi Tokyu "Eda" walk 25 minutes 東急田園都市線「市が尾」歩8分 東急田園都市線「藤が丘」歩19分 東急田園都市線「江田」歩25分
|
Related links 関連リンク | | [Related Sites of this company] 【この会社の関連サイト】 |
Person in charge 担当者より | | The first distribution division personnel Kimura Yunenrei: 30 Daigyokai Experience: 3 years born in Chofu, Tokyo. But I grew up is around Tachikawa, Haunt area because the hobby is the drive is widely, Local information also recommended including let me introduce. It will help you find the customer's BEST1 together !! 担当者第1流通事業部 木村優年齢:30代業界経験:3年生まれは東京の調布市。育ちは立川周辺ですが、趣味がドライブですので出没エリアは幅広く、オススメの地域情報も含めてご紹介させて頂きます。お客様のBEST1を一緒に見つけましょう!! |
Contact お問い合せ先 | | TEL: 0800-603-9093 [Toll free] mobile phone ・ Also available from PHS Caller ID is not notified Please contact the "saw SUUMO (Sumo)" If it does not lead, If the real estate company TEL:0800-603-9093【通話料無料】携帯電話・PHSからもご利用いただけます 発信者番号は通知されません 「SUUMO(スーモ)を見た」と問い合わせください つながらない方、不動産会社の方は
|
Administrative expense 管理費 | | 8300 yen / Month (consignment (cyclic)) 8300円/月(委託(巡回)) |
Repair reserve 修繕積立金 | | 6790 yen / Month 6790円/月 |
Time residents 入居時期 | | Immediate available 即入居可 |
Whereabouts floor 所在階 | | 4th floor 4階 |
Direction 向き | | Southeast 南東 |
Renovation リフォーム | | October 2013 interior renovation completed (kitchen ・ bathroom ・ toilet ・ wall ・ floor ・ all rooms) 2013年10月内装リフォーム済(キッチン・浴室・トイレ・壁・床・全室) |
Overview and notices その他概要・特記事項 | | The person in charge: first distribution business unit Yu Kimura 担当者:第1流通事業部 木村優 |
Structure-storey 構造・階建て | | RC7 story RC7階建 |
Site of the right form 敷地の権利形態 | | Ownership 所有権 |
Use district 用途地域 | | Quasi-residence 準住居 |
Parking lot 駐車場 | | Site (10,000 yen ~ 14,000 yen / Month) 敷地内(1万円 ~ 1万4000円/月) |
Company profile 会社概要 | | <Mediation> Governor of Tokyo (1) the first 090,169 No. live want information net (Ltd.) Sumitai headquarters Yubinbango194-0013 Machida, Tokyo Haramachida 1-1-3 high stone building the fourth floor <仲介>東京都知事(1)第090169号住みたい情報ネット(株)スミタイ本社〒194-0013 東京都町田市原町田1-1-3 ハイストーンビル4階 |