Used Apartments » Kanto » Kanagawa Prefecture » Yokohama Isogo-ku
 
| | Yokohama, Kanagawa Prefecture Isogo-ku, 神奈川県横浜市磯子区 |
| JR Negishi Line "Negishi" walk 11 minutes JR根岸線「根岸」歩11分 |
| Corner dwelling unit, Yang per good, Flat to the station, Elevator, Wide balcony, Delivery Box, Pre-inspection, System kitchen, Bathroom Dryer, All room storageese-style room 角住戸、陽当り良好、駅まで平坦、エレベーター、ワイドバルコニー、宅配ボックス、インスペクション済、システムキッチン、浴室乾燥機、全居室収納、和室 |
| "Negishi" flat 11 minutes' walk from the station. Day is a good corner room. auto lock, There courier BOX. Wide-span dwelling units of about 9.4 m. 「根岸」駅から平坦徒歩11分。日当り良好な角部屋です。オートロック、宅配BOXあります。約9.4メートルのワイドスパン住戸です。 |
Features pickup 特徴ピックアップ | | Pre-inspection / System kitchen / Bathroom Dryer / Corner dwelling unit / Yang per good / All room storage / Flat to the station / Japanese-style room / Wide balcony / Elevator / TV monitor interphone / Mu front building / Ventilation good / Good view / Maintained sidewalk / Flat terrain / Delivery Box インスペクション済 /システムキッチン /浴室乾燥機 /角住戸 /陽当り良好 /全居室収納 /駅まで平坦 /和室 /ワイドバルコニー /エレベーター /TVモニタ付インターホン /前面棟無 /通風良好 /眺望良好 /整備された歩道 /平坦地 /宅配ボックス | Property name 物件名 | | Nice Urban Yokohama Negishi ナイスアーバン横濱根岸 | Price 価格 | | 21,990,000 yen 2199万円 | Floor plan 間取り | | 3LDK 3LDK | Units sold 販売戸数 | | 1 units 1戸 | Total units 総戸数 | | 53 houses 53戸 | Occupied area 専有面積 | | 65.57 sq m (center line of wall) 65.57m2(壁芯) | Other area その他面積 | | Balcony area: 10.22 sq m バルコニー面積:10.22m2 | Whereabouts floor / structures and stories 所在階/構造・階建 | | 5th floor / RC7 story 5階/RC7階建 | Completion date 完成時期(築年月) | | February 1998 1998年2月 | Address 住所 | | Yokohama, Kanagawa Prefecture Isogo-ku, Haramachi 8-39 神奈川県横浜市磯子区原町8-39 | Traffic 交通 | | JR Negishi Line "Negishi" walk 11 minutes JR Negishi Line "Isogo" walk 28 minutes Blue Line "Yoshino-cho" walk 30 minutes JR根岸線「根岸」歩11分 JR根岸線「磯子」歩28分 ブルーライン「吉野町」歩30分
| Related links 関連リンク | | [Related Sites of this company] 【この会社の関連サイト】 | Person in charge 担当者より | | Person in charge of real-estate and building FP Ohmae Masatoshi Age: 30 Daigyokai Experience: 8 years House, Mansion, Purchase of land, Notes sale I think the customer is often the point that I think the anxiety. We will ride to carefully consult to questions from one one small question. 担当者宅建FP大前 雅俊年齢:30代業界経験:8年戸建て、マンション、土地のご購入、ご売却にあたってお客様が不安に思う点は多々あると思います。一つ一つの小さな疑問から質問まで丁寧にご相談に乗らせていただきます。 | Contact お問い合せ先 | | TEL: 0800-603-8170 [Toll free] mobile phone ・ Also available from PHS Caller ID is not notified Please contact the "saw SUUMO (Sumo)" If it does not lead, If the real estate company TEL:0800-603-8170【通話料無料】携帯電話・PHSからもご利用いただけます 発信者番号は通知されません 「SUUMO(スーモ)を見た」と問い合わせください つながらない方、不動産会社の方は
| Administrative expense 管理費 | | 12,660 yen / Month (consignment (cyclic)) 1万2660円/月(委託(巡回)) | Repair reserve 修繕積立金 | | 10,490 yen / Month 1万490円/月 | Expenses 諸費用 | | CATV flat fee: 1029 yen / Month CATV定額料金:1029円/月 | Time residents 入居時期 | | Consultation 相談 | Whereabouts floor 所在階 | | 5th floor 5階 | Direction 向き | | West 西 | Overview and notices その他概要・特記事項 | | Person in charge: Ohmae Masatoshi 担当者:大前 雅俊 | Structure-storey 構造・階建て | | RC7 story RC7階建 | Site of the right form 敷地の権利形態 | | Ownership 所有権 | Use district 用途地域 | | One dwelling, Residential 1種住居、近隣商業 | Company profile 会社概要 | | <Mediation> Minister of Land, Infrastructure and Transport (2) the first 007,535 No. Nice Co., Ltd. Nice residence of Information Center Smile Cafe Kamiooka Yubinbango233-0002 Yokohama-shi, Kanagawa-ku, Konan Kamiookanishi 1-13-18 NIC Urban Heim Kamiooka Plaza first floor <仲介>国土交通大臣(2)第007535号ナイス(株)ナイス住まいの情報館住まいるCafe上大岡〒233-0002 神奈川県横浜市港南区上大岡西1-13-18 NICアーバンハイム上大岡プラザ1階 | Construction 施工 | | Asuka Construction Co., Ltd. 飛鳥建設(株) |
Local appearance photo現地外観写真  Local (12 May 2012) shooting
現地(2012年12月)撮影
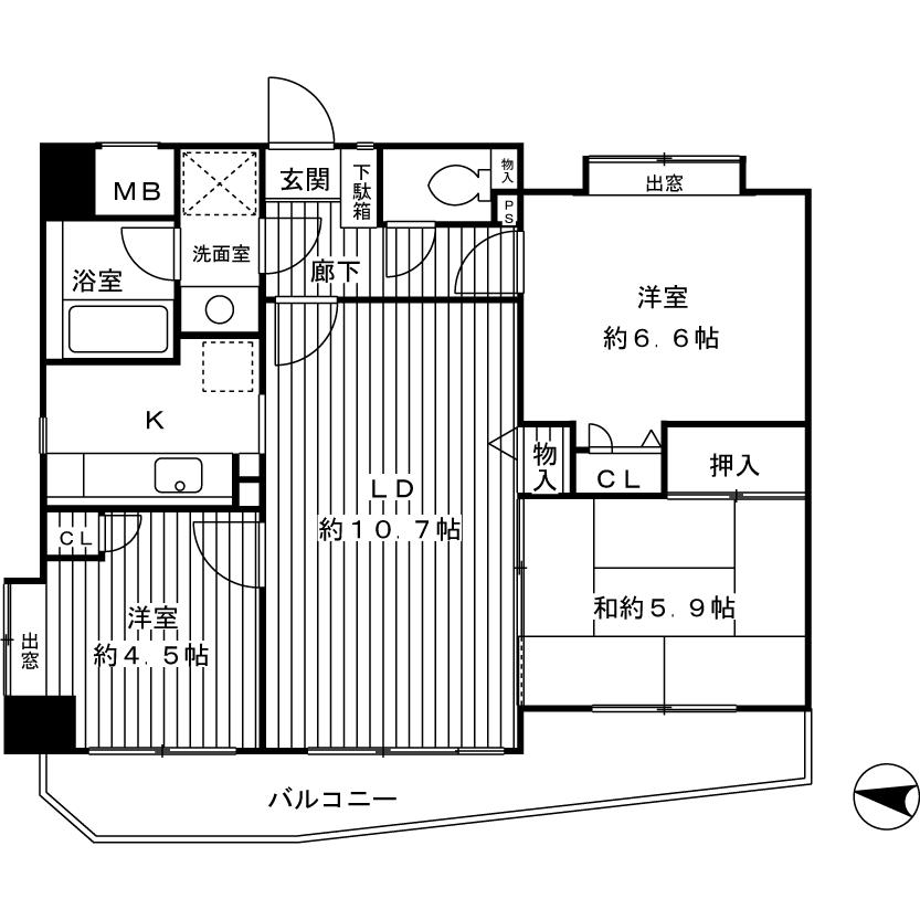
Floor plan間取り図  3LDK, Price 21,990,000 yen, Occupied area 65.57 sq m , Balcony area 10.22 sq m 3LDK dwelling unit
3LDK、価格2199万円、専有面積65.57m2、バルコニー面積10.22m2 3LDK住戸
Livingリビング  LD (the same apartment in the LD)
LD(同マンション内LD)
Bathroom浴室  Sale at that time brochure (bathroom)
分譲当時パンフレット(浴室)
Other common areasその他共用部  Courier BOX
宅配BOX
Supermarketスーパー  "Marikomu Isogo" from the local 5-minute walk
現地から徒歩5分の「マリコム磯子」
Station駅  Flat walk 11 minutes from the Negishi Station
根岸駅までは平坦徒歩11分
Supermarketスーパー  Tokyu Store Chain of Negishi Station 1-minute walk
根岸駅徒歩1分の東急ストア
Hospital病院  hospital, Pharmacy, etc. enter "Monbiru 15"
病院、薬局等が入る「モンビル15」
Supermarketスーパー  Super AOKI
スーパーAOKI
 Super YOKOSAN
スーパーYOKOSAN
Location
|