Used Apartments » Kanto » Kanagawa Prefecture » Yokohama Isogo-ku


Yokohama, Kanagawa Prefecture Isogo-ku,
Keikyu main line "folding screen Ura" walk 5 minutes
Heisei 19 years built shallow Mansion! Per southeast angle room, Good per sun. Pets welcome breeding ・ Spacious balcony of the depth of about 2m is attractive
Kyokyusen a 5-minute walk from the "folding screen Ura" station! Next-generation all-electric system introduction ・ For not facing the balcony surface line, Noise is not worried!
Features pickup
System kitchen / Corner dwelling unit / All room storage / Face-to-face kitchen / Elevator / Renovation / IH cooking heater / Dish washing dryer / Walk-in closet / All-electric / Pets Negotiable / BS ・ CS ・ CATV
Property name
Isogo Residence
Price
31,800,000 yen
Floor plan
3LDK
Units sold
1 units
Total units
75 units
Occupied area
72.11 sq m (21.81 tsubo) (center line of wall)
Other area
Balcony area: 12.5 sq m
Whereabouts floor / structures and stories
5th floor / RC7 story
Completion date
March 2007
Address
Yokohama, Kanagawa Prefecture Isogo-ku, forest 4-1-8
Traffic
Keikyu main line "folding screen Ura" walk 5 minutes
Related links
[Related Sites of this company]
Person in charge
Rep Natsumi Kikuchi
Contact
TEL: 0800-603-3016 [Toll free] mobile phone ・ Also available from PHS
Caller ID is not notified
Please contact the "saw SUUMO (Sumo)"
If it does not lead, If the real estate company
Administrative expense
10,600 yen / Month (consignment (commuting))
Repair reserve
8230 yen / Month
Expenses
CATV flat rate: 315 yen / Month, CATV fee: 315 yen / Month
Time residents
Immediate available
Whereabouts floor
5th floor
Direction
East
Renovation
2013 September interior renovation completed (toilet ・ wall ・ floor)
Overview and notices
Contact: Natsumi Kikuchi
Structure-storey
RC7 story
Site of the right form
Ownership
Use district
Two dwellings
Parking lot
Site (16,000 yen / Month)
Company profile
<Mediation> Governor of Kanagawa Prefecture (3) No. 023700 (Corporation) Japan Serban Distribution Division Yubinbango220-0004 Kanagawa Prefecture, Nishi-ku, Yokohama-shi Kitasaiwai 2-8-4


Local appearance photo

Local appearance photo. 2007 ・ Pet breeding possible apartment
2007 ・ Pet breeding possible apartment

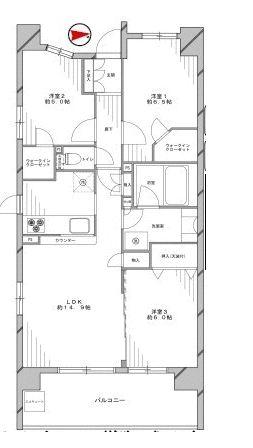
Floor plan

Floor plan. 3LDK, Price 31,800,000 yen, Occupied area 72.11 sq m , Per balcony area 12.5 sq m southeast angle room, Good per sun
3LDK, Price 31,800,000 yen, Occupied area 72.11 sq m , Per balcony area 12.5 sq m southeast angle room, Good per sun

Kitchen

Kitchen. IH cooking heater ・ Dishwasher ・ With disposer
IH cooking heater ・ Dishwasher ・ With disposer

Living

Living. 14.9 Pledge of LDK
14.9 Pledge of LDK

Bathroom
Bathroom

Kitchen

Kitchen. With counter
With counter

Non-living room

Non-living room. 6.5 Pledge Western-style
6.5 Pledge Western-style

Wash basin, toilet
Wash basin, toilet

Receipt

Receipt. WIC Yes
WIC Yes

Toilet
Toilet

Entrance
Entrance

Other common areas

Other common areas. Email ・ Delivery Box There
Email ・ Delivery Box There

View photos from the dwelling unit
View photos from the dwelling unit

Other

Other. Balcony
Balcony

Non-living room

Non-living room. 6 Pledge Western-style room that faces the balcony
6 Pledge Western-style room that faces the balcony

Receipt

Receipt. 5 Pledge Western-style WIC
5 Pledge Western-style WIC

Other common areas
Other common areas

Non-living room

Non-living room. 5 Pledge Western-style
5 Pledge Western-style

Non-living room. 6.5 Pledge Western-style
6.5 Pledge Western-style

Non-living room. 6 Pledge Western-style
6 Pledge Western-style



Location