|
|
Yokohama, Kanagawa Prefecture Isogo-ku,
神奈川県横浜市磯子区
|
|
Blue Line "Yoshino-cho" walk 19 minutes
ブルーライン「吉野町」歩19分
|
|
Large-scale apartment located on a hill! Pet breeding Allowed!
高台にある大規模マンション!ペット飼育可!
|
|
Car sharing ・ There are bicycle rental.
カーシェアリング・レンタサイクルあります。
|
Features pickup 特徴ピックアップ | | Immediate Available / 2 along the line more accessible / Super close / System kitchen / Bathroom Dryer / All room storage / A quiet residential area / LDK15 tatami mats or more / Around traffic fewer / Japanese-style room / Washbasin with shower / Face-to-face kitchen / Security enhancement / South balcony / Bicycle-parking space / Elevator / Otobasu / High speed Internet correspondence / Warm water washing toilet seat / TV monitor interphone / Leafy residential area / Southwestward / Walk-in closet / Storeroom / Pets Negotiable / BS ・ CS ・ CATV / Located on a hill / Maintained sidewalk / Delivery Box / Bike shelter 即入居可 /2沿線以上利用可 /スーパーが近い /システムキッチン /浴室乾燥機 /全居室収納 /閑静な住宅地 /LDK15畳以上 /周辺交通量少なめ /和室 /シャワー付洗面台 /対面式キッチン /セキュリティ充実 /南面バルコニー /駐輪場 /エレベーター /オートバス /高速ネット対応 /温水洗浄便座 /TVモニタ付インターホン /緑豊かな住宅地 /南西向き /ウォークインクロゼット /納戸 /ペット相談 /BS・CS・CATV /高台に立地 /整備された歩道 /宅配ボックス /バイク置場 |
Property name 物件名 | | Hill Top Yokohama Negishi Central Court ヒルトップ横濱根岸セントラルコート |
Price 価格 | | 25,500,000 yen 2550万円 |
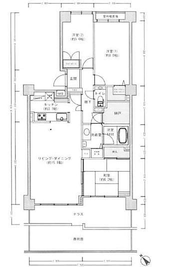
Floor plan 間取り | | 3LDK 3LDK |
Units sold 販売戸数 | | 1 units 1戸 |
Total units 総戸数 | | 279 units 279戸 |
Occupied area 専有面積 | | 89.7 sq m (center line of wall) 89.7m2(壁芯) |
Other area その他面積 | | Balcony area: 14.4 sq m , Private garden: 14.27 sq m (use fee 600 yen / Month) バルコニー面積:14.4m2、専用庭:14.27m2(使用料600円/月) |
Whereabouts floor / structures and stories 所在階/構造・階建 | | 1st floor / RC8 story 1階/RC8階建 |
Completion date 完成時期(築年月) | | August 1990 1990年8月 |
Address 住所 | | Maruyama, Yokohama, Kanagawa Prefecture Isogo-ku 1 神奈川県横浜市磯子区丸山1 |
Traffic 交通 | | Blue Line "Yoshino-cho" walk 19 minutes JR Negishi Line "Negishi" bus 16 minutes Isogo flat walk 1 minute JR Negishi Line "Sakuragi-cho" bus 17 minutes Tenjinbashi walk 8 minutes ブルーライン「吉野町」歩19分 JR根岸線「根岸」バス16分磯子フラット歩1分 JR根岸線「桜木町」バス17分天神橋歩8分
|
Person in charge 担当者より | | Rep Arakawa Homareotoko Age: 40 Daigyokai experience: you have to cherish the relationship of trust with 9-year customer. 担当者荒川 誉男年齢:40代業界経験:9年お客様との信頼関係を大切にしています。 |
Contact お問い合せ先 | | TEL: 0800-603-0562 [Toll free] mobile phone ・ Also available from PHS Caller ID is not notified Please contact the "saw SUUMO (Sumo)" If it does not lead, If the real estate company TEL:0800-603-0562【通話料無料】携帯電話・PHSからもご利用いただけます 発信者番号は通知されません 「SUUMO(スーモ)を見た」と問い合わせください つながらない方、不動産会社の方は
|
Administrative expense 管理費 | | 12,400 yen / Month (consignment (commuting)) 1万2400円/月(委託(通勤)) |
Repair reserve 修繕積立金 | | 7350 yen / Month 7350円/月 |
Time residents 入居時期 | | Immediate available 即入居可 |
Whereabouts floor 所在階 | | 1st floor 1階 |
Direction 向き | | Southwest 南西 |
Renovation リフォーム | | March 2013 interior renovation completed (toilet ・ wall ・ floor ・ all rooms) 2013年3月内装リフォーム済(トイレ・壁・床・全室) |
Overview and notices その他概要・特記事項 | | Contact: Arakawa Homareotoko 担当者:荒川 誉男 |
Structure-storey 構造・階建て | | RC8 story RC8階建 |
Site of the right form 敷地の権利形態 | | Ownership 所有権 |
Use district 用途地域 | | One dwelling 1種住居 |
Parking lot 駐車場 | | Site (9000 yen / Month) 敷地内(9000円/月) |
Company profile 会社概要 | | <Mediation> Minister of Land, Infrastructure and Transport (3) No. 006,185 (one company) National Housing Industry Association (Corporation) metropolitan area real estate Fair Trade Council member Asahi Housing Corporation Yokohama Yubinbango221-0835 Yokohama-shi, Kanagawa, Kanagawa-ku, Tsuruya-cho, 2-26 - 2 fourth Yasuda Building second floor <仲介>国土交通大臣(3)第006185号(一社)全国住宅産業協会会員 (公社)首都圏不動産公正取引協議会加盟朝日住宅(株)横浜店〒221-0835 神奈川県横浜市神奈川区鶴屋町2-26ー2 第4安田ビル2階 |