|
|
Kanagawa Prefecture Kanazawa-ku, Yokohama
神奈川県横浜市金沢区
|
|
Keikyu main line "Kanazawa Hakkei" bus 13 minutes Sanshin center walk 3 minutes
京急本線「金沢八景」バス13分三信センター歩3分
|
|
Pets Negotiable, Immediate Available, Facing south, Located on a hill, Wide balcony, 2 along the line more accessible, System kitchen, Yang per good, All room storage, A quiet residential areaese-style room, South balcony, Warm water washing toilet seat
ペット相談、即入居可、南向き、高台に立地、ワイドバルコニー、2沿線以上利用可、システムキッチン、陽当り良好、全居室収納、閑静な住宅地、和室、南面バルコニー、温水洗浄便座
|
|
Our full-time property, Pets Negotiable, Immediate Available, Facing south, Located on a hill, Wide balcony, 2 along the line more accessible, System kitchen, Yang per good, All room storage, A quiet residential areaese-style room, South balcony, Warm water washing toilet seat, Leafy residential area, Mu front building
当社専任物件、ペット相談、即入居可、南向き、高台に立地、ワイドバルコニー、2沿線以上利用可、システムキッチン、陽当り良好、全居室収納、閑静な住宅地、和室、南面バルコニー、温水洗浄便座、緑豊かな住宅地、前面棟無
|
Features pickup 特徴ピックアップ | | Immediate Available / 2 along the line more accessible / Facing south / System kitchen / Yang per good / All room storage / A quiet residential area / Japanese-style room / Wide balcony / South balcony / Warm water washing toilet seat / Leafy residential area / Mu front building / Pets Negotiable / Located on a hill 即入居可 /2沿線以上利用可 /南向き /システムキッチン /陽当り良好 /全居室収納 /閑静な住宅地 /和室 /ワイドバルコニー /南面バルコニー /温水洗浄便座 /緑豊かな住宅地 /前面棟無 /ペット相談 /高台に立地 |
Property name 物件名 | | Grand Maison Asahina グランドメゾン朝比奈 |
Price 価格 | | 14.7 million yen 1470万円 |
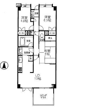
Floor plan 間取り | | 3LDK 3LDK |
Units sold 販売戸数 | | 1 units 1戸 |
Total units 総戸数 | | 123 units 123戸 |
Occupied area 専有面積 | | 78.57 sq m (center line of wall) 78.57m2(壁芯) |
Other area その他面積 | | Balcony area: 8.73 sq m バルコニー面積:8.73m2 |
Whereabouts floor / structures and stories 所在階/構造・階建 | | Second floor / RC5 story 2階/RC5階建 |
Completion date 完成時期(築年月) | | April 1994 1994年4月 |
Address 住所 | | Kanagawa Prefecture Kanazawa-ku, Yokohama Higashiasahina 3 神奈川県横浜市金沢区東朝比奈3 |
Traffic 交通 | | Keikyu main line "Kanazawa Hakkei" bus 13 minutes Sanshin center walk 3 minutes Keikyū Zushi Line "Mutsuura" walk 20 minutes 京急本線「金沢八景」バス13分三信センター歩3分 京急逗子線「六浦」歩20分
|
Person in charge 担当者より | | Person in charge of real-estate and building FP Tanida Mine Age: 40 Daigyokai Experience: 19 years 担当者宅建FP谷田 峰年齢:40代業界経験:19年 |
Contact お問い合せ先 | | TEL: 0800-809-8255 [Toll free] mobile phone ・ Also available from PHS Caller ID is not notified Please contact the "saw SUUMO (Sumo)" If it does not lead, If the real estate company TEL:0800-809-8255【通話料無料】携帯電話・PHSからもご利用いただけます 発信者番号は通知されません 「SUUMO(スーモ)を見た」と問い合わせください つながらない方、不動産会社の方は
|
Administrative expense 管理費 | | 12,200 yen / Month (consignment (commuting)) 1万2200円/月(委託(通勤)) |
Repair reserve 修繕積立金 | | 9560 yen / Month 9560円/月 |
Time residents 入居時期 | | Immediate available 即入居可 |
Whereabouts floor 所在階 | | Second floor 2階 |
Direction 向き | | South 南 |
Overview and notices その他概要・特記事項 | | Contact: Tanida Peak 担当者:谷田 峰 |
Structure-storey 構造・階建て | | RC5 story RC5階建 |
Site of the right form 敷地の権利形態 | | Ownership 所有権 |
Use district 用途地域 | | One dwelling 1種住居 |
Parking lot 駐車場 | | Site (11,000 yen ~ 13,000 yen / Month) 敷地内(1万1000円 ~ 1万3000円/月) |
Company profile 会社概要 | | <Mediation> Kanagawa Governor (2) No. 025730 (Ltd.) Besuteto Yubinbango236-0016 Kanagawa Prefecture Kanazawa-ku, Yokohama Yatsu-cho, 142 <仲介>神奈川県知事(2)第025730号(株)ベステート〒236-0016 神奈川県横浜市金沢区谷津町142 |
Construction 施工 | | Toyo Construction Co., Ltd. 東洋建設(株) |