|
|
Kanagawa Prefecture Kanazawa-ku, Yokohama
神奈川県横浜市金沢区
|
|
Keikyu main line "Noukendai" walk 22 minutes
京急本線「能見台」歩22分
|
|
If Interikkusu of property, Please leave our Interikkusu home sales! ◆ Rare property with a "parking lot the exclusive right to use"! ◆ Total units 624 units of the big community!
インテリックスの物件なら、弊社インテリックス住宅販売にお任せ下さい!◆「駐車場専用使用権」付きの希少物件です!◆総戸数624戸のビッグコミュニティ!
|
|
・ Facing south, Yang per double-sided balcony, Ventilation is perfect. ・ You can also pet breeding! (On application, There bylaws used) ・ Since the renovation properties of, It is very beautiful! Also substantial equipment! ・ Renovation and construction: Interikkusu space design our HP → http / / www.intellex.jp / we, Interikkusu Group, To the axis of the condominium and Renovation, From renovation Property, Purchase of condominium + until the proposal of renovation, Please let me explain a new way of condominium! If it is a thing of the condominium and Renovation, Please feel free to contact us.
・南向き、両面バルコニーで陽あたり、通風ばっちりです。・ペット飼育もできます!(要申請、使用細則あり)・リノベーション物件なので、大変きれいです!設備機器も充実してます!・リノベーション施工:インテリックス空間設計弊社HP→http://www.intellex.jp/私達、インテリックスグループは、中古マンションとリノベーションを軸に、リノベーション物件から、中古マンションの購入+リノベーションの提案まで、中古マンションの新しい在り方をご説明させて頂きます! 中古マンションとリノベーションの事なら、お気軽にお問い合わせください。
|
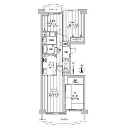
Features pickup 特徴ピックアップ | | Fit renovation / Immediate Available / 2 along the line more accessible / Facing south / System kitchen / Bathroom Dryer / All room storage / Japanese-style room / Washbasin with shower / Security enhancement / Bicycle-parking space / High speed Internet correspondence / Warm water washing toilet seat / Pets Negotiable / BS ・ CS ・ CATV / In a large town / Bike shelter 適合リノベーション /即入居可 /2沿線以上利用可 /南向き /システムキッチン /浴室乾燥機 /全居室収納 /和室 /シャワー付洗面台 /セキュリティ充実 /駐輪場 /高速ネット対応 /温水洗浄便座 /ペット相談 /BS・CS・CATV /大型タウン内 /バイク置場 |
Property name 物件名 | | City Noukendai シティ能見台 |
Price 価格 | | 21.9 million yen 2190万円 |
Floor plan 間取り | | 3LDK 3LDK |
Units sold 販売戸数 | | 1 units 1戸 |
Total units 総戸数 | | 624 units 624戸 |
Occupied area 専有面積 | | 76.28 sq m (center line of wall) 76.28m2(壁芯) |
Other area その他面積 | | Balcony area: 12.41 sq m バルコニー面積:12.41m2 |
Whereabouts floor / structures and stories 所在階/構造・階建 | | Second floor / SRC10 story 2階/SRC10階建 |
Completion date 完成時期(築年月) | | July 1990 1990年7月 |
Address 住所 | | Kanagawa Prefecture Kanazawa-ku, Yokohama Noukendai 3 神奈川県横浜市金沢区能見台3 |
Traffic 交通 | | Keikyu main line "Noukendai" walk 22 minutes Keikyu main line "Kanazawa Bunko" walk 31 minutes Keikyu main line "Keikyutomioka" walk 29 minutes 京急本線「能見台」歩22分 京急本線「金沢文庫」歩31分 京急本線「京急富岡」歩29分
|
Related links 関連リンク | | [Related Sites of this company] 【この会社の関連サイト】 |
Person in charge 担当者より | | Person in charge of real-estate and building Yuki Man'nenrei: 40 Daigyokai experience: while exchanging the experience of up to 26 years from now will endeavor to be able to provide satisfactory that exceed our customers' expectations. Help looking for property, Advice Please leave. 担当者宅建結城 満年齢:40代業界経験:26年今までの経験を交えながらお客様の期待を超える満足を提供できるよう努めます。物件探しのお手伝い、アドバイスはお任せ下さい。 |
Contact お問い合せ先 | | TEL: 0800-603-1782 [Toll free] mobile phone ・ Also available from PHS Caller ID is not notified Please contact the "saw SUUMO (Sumo)" If it does not lead, If the real estate company TEL:0800-603-1782【通話料無料】携帯電話・PHSからもご利用いただけます 発信者番号は通知されません 「SUUMO(スーモ)を見た」と問い合わせください つながらない方、不動産会社の方は
|
Administrative expense 管理費 | | 13,900 yen / Month (consignment (commuting)) 1万3900円/月(委託(通勤)) |
Repair reserve 修繕積立金 | | 14,530 yen / Month 1万4530円/月 |
Expenses 諸費用 | | Internet Initial Cost: TBD, Flat fee: unspecified amount, CATV initial Cost: TBD, Flat fee: unspecified amount インターネット初期費用:金額未定、定額料金:金額未定、CATV初期費用:金額未定、定額料金:金額未定 |
Time residents 入居時期 | | Immediate available 即入居可 |
Whereabouts floor 所在階 | | Second floor 2階 |
Direction 向き | | South 南 |
Renovation リフォーム | | July 2013 interior renovation completed (kitchen ・ bathroom ・ toilet ・ wall) 2013年7月内装リフォーム済(キッチン・浴室・トイレ・壁) |
Overview and notices その他概要・特記事項 | | Contact: Yuki Mitsuru 担当者:結城 満 |
Structure-storey 構造・階建て | | SRC10 story SRC10階建 |
Site of the right form 敷地の権利形態 | | Ownership 所有権 |
Use district 用途地域 | | One middle and high 1種中高 |
Parking lot 駐車場 | | The exclusive right to use with parking (13,300 yen / Month) 専用使用権付駐車場(1万3300円/月) |
Company profile 会社概要 | | <Mediation> Minister of Land, Infrastructure and Transport (3) No. 006493 (Corporation) All Japan Real Estate Association (Corporation) metropolitan area real estate Fair Trade Council member (Ltd.) Interikkusu home sales 150-0002 Shibuya, Shibuya-ku, Tokyo 2-12-19 Token International building 11 floors <仲介>国土交通大臣(3)第006493号(公社)全日本不動産協会会員 (公社)首都圏不動産公正取引協議会加盟(株)インテリックス住宅販売〒150-0002 東京都渋谷区渋谷2-12-19 東建インターナショナルビル11階 |
Construction 施工 | | (Ltd.) Kumagai Gumi Co., Ltd. ・ Tokyu Construction (株)熊谷組・東急建設 |