|
|
Kanagawa Prefecture Kanazawa-ku, Yokohama
神奈川県横浜市金沢区
|
|
Keikyu main line "Kanazawa Bunko" bus 4 minutes Noukendai Sanchome walk 1 minute
京急本線「金沢文庫」バス4分能見台三丁目歩1分
|
|
Already the room renovation, Easy parking per-site parking upper, Jewels good of green many living environment.
室内リノベーション済、敷地内駐車場上段につき駐車楽々、緑も多く住環境の良好で御座います。
|
|
Want to come and see the property, Anyone who want documentation, Please contact us by all means. We jewels alliance mortgage with the City Bank (the entire period up to 1.7 percent preferential treatment, The application, conditions ・ Examination there)
物件を実際に見たい、資料が欲しいという方は、是非お問合せくださいませ。弊社は都市銀行との提携住宅ローン御座います(全期間最大1.7パーセント優遇、適用には、条件・審査がございます)
|
Features pickup 特徴ピックアップ | | Fit renovation / Immediate Available / 2 along the line more accessible / Super close / It is close to the city / Interior renovation / Facing south / System kitchen / Bathroom Dryer / Yang per good / All room storage / LDK15 tatami mats or more / Japanese-style room / Washbasin with shower / 2 or more sides balcony / South balcony / Flooring Chokawa / Elevator / Otobasu / High speed Internet correspondence / Warm water washing toilet seat / Urban neighborhood / Ventilation good / water filter / Pets Negotiable 適合リノベーション /即入居可 /2沿線以上利用可 /スーパーが近い /市街地が近い /内装リフォーム /南向き /システムキッチン /浴室乾燥機 /陽当り良好 /全居室収納 /LDK15畳以上 /和室 /シャワー付洗面台 /2面以上バルコニー /南面バルコニー /フローリング張替 /エレベーター /オートバス /高速ネット対応 /温水洗浄便座 /都市近郊 /通風良好 /浄水器 /ペット相談 |
Property name 物件名 | | City Noukendai petting of the city Building B シティ能見台ふれあいの街B棟 |
Price 価格 | | 21.9 million yen 2190万円 |
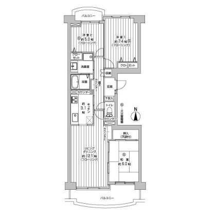
Floor plan 間取り | | 3LDK 3LDK |
Units sold 販売戸数 | | 1 units 1戸 |
Total units 総戸数 | | 624 units 624戸 |
Occupied area 専有面積 | | 76.28 sq m (center line of wall) 76.28m2(壁芯) |
Other area その他面積 | | Balcony area: 12.41 sq m バルコニー面積:12.41m2 |
Whereabouts floor / structures and stories 所在階/構造・階建 | | Second floor / SRC10 story 2階/SRC10階建 |
Completion date 完成時期(築年月) | | July 1990 1990年7月 |
Address 住所 | | Kanagawa Prefecture Kanazawa-ku, Yokohama Noukendai 4 神奈川県横浜市金沢区能見台4 |
Traffic 交通 | | Keikyu main line "Kanazawa Bunko" bus 4 minutes Noukendai Sanchome walk 1 minute Keikyu main line "Noukendai" walk 18 minutes Keikyu main line "Kanazawa Bunko" walk 19 minutes 京急本線「金沢文庫」バス4分能見台三丁目歩1分 京急本線「能見台」歩18分 京急本線「金沢文庫」歩19分
|
Related links 関連リンク | | [Related Sites of this company] 【この会社の関連サイト】 |
Person in charge 担当者より | | The person in charge Masakazu Ono 担当者小野 正和 |
Contact お問い合せ先 | | TEL: 0800-603-7122 [Toll free] mobile phone ・ Also available from PHS Caller ID is not notified Please contact the "saw SUUMO (Sumo)" If it does not lead, If the real estate company TEL:0800-603-7122【通話料無料】携帯電話・PHSからもご利用いただけます 発信者番号は通知されません 「SUUMO(スーモ)を見た」と問い合わせください つながらない方、不動産会社の方は
|
Administrative expense 管理費 | | 13,900 yen / Month (consignment (commuting)) 1万3900円/月(委託(通勤)) |
Repair reserve 修繕積立金 | | 14,530 yen / Month 1万4530円/月 |
Expenses 諸費用 | | Autonomous membership fee: 250 yen / Month, Centralized monitoring system usage fee: 400 yen / Month 自治会費:250円/月、集中監視システム使用料:400円/月 |
Time residents 入居時期 | | Immediate available 即入居可 |
Whereabouts floor 所在階 | | Second floor 2階 |
Direction 向き | | South 南 |
Renovation リフォーム | | July 2012 interior renovation completed (kitchen ・ bathroom ・ toilet ・ wall ・ floor ・ all rooms) 2012年7月内装リフォーム済(キッチン・浴室・トイレ・壁・床・全室) |
Overview and notices その他概要・特記事項 | | Contact: Masakazu Ono 担当者:小野 正和 |
Structure-storey 構造・階建て | | SRC10 story SRC10階建 |
Site of the right form 敷地の権利形態 | | Ownership 所有権 |
Use district 用途地域 | | One middle and high 1種中高 |
Parking lot 駐車場 | | Site (13,300 yen / Month) 敷地内(1万3300円/月) |
Company profile 会社概要 | | <Mediation> Minister of Land, Infrastructure and Transport (2) the first 007,684 No. + HOUSE Yokohama Office (Ltd.) propoxycarbonyl life Yubinbango230-0062 Kanagawa Prefecture Tsurumi-ku, Yokohama City Toyooka-cho, 8-24 first floor <仲介>国土交通大臣(2)第007684号+HOUSE横浜Office(株)プロポライフ〒230-0062 神奈川県横浜市鶴見区豊岡町8-24 1階 |
Construction 施工 | | Ltd. Kumagai Gumi Co., Ltd. ・ Tokyu Construction Co., Ltd. 株式会社熊谷組・東急建設株式会社 |