|
|
Yokohama-shi, Kanagawa-ku, Kohoku
神奈川県横浜市港北区
|
|
Tokyu Toyoko Line "Okurayama" walk 13 minutes
東急東横線「大倉山」歩13分
|
|
Tokyu Toyoko Line "Okurayama" a 13-minute walk from the station! Southwestward, Exposure to the sun ・ Ventilation good!
東急東横線「大倉山」駅より徒歩13分!南西向き、陽当り・通風良好!
|
|
● adjacent to Minami Morooka Yato park ● after-sales service guaranteed (equipment ・ Up to 10 years for each site)
●師岡南谷戸公園に隣接●アフターサービス保証付き(設備・部位別に最長10年)
|
Features pickup 特徴ピックアップ | | Fit renovation / Immediate Available / System kitchen / Bathroom Dryer / Yang per good / Washbasin with shower / Face-to-face kitchen / Bicycle-parking space / Elevator / High speed Internet correspondence / Warm water washing toilet seat / TV monitor interphone / Ventilation good / All living room flooring / Southwestward / Walk-in closet / water filter / Bike shelter 適合リノベーション /即入居可 /システムキッチン /浴室乾燥機 /陽当り良好 /シャワー付洗面台 /対面式キッチン /駐輪場 /エレベーター /高速ネット対応 /温水洗浄便座 /TVモニタ付インターホン /通風良好 /全居室フローリング /南西向き /ウォークインクロゼット /浄水器 /バイク置場 |
Property name 物件名 | | Green Hill Okurayama グリーンヒル大倉山 |
Price 価格 | | 16.4 million yen 1640万円 |
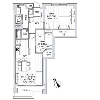
Floor plan 間取り | | 2LDK 2LDK |
Units sold 販売戸数 | | 1 units 1戸 |
Total units 総戸数 | | 80 units 80戸 |
Occupied area 専有面積 | | 61.49 sq m (18.60 tsubo) (center line of wall) 61.49m2(18.60坪)(壁芯) |
Other area その他面積 | | Balcony area: 3.92 sq m バルコニー面積:3.92m2 |
Whereabouts floor / structures and stories 所在階/構造・階建 | | 3rd floor / RC7 story 3階/RC7階建 |
Completion date 完成時期(築年月) | | April 1978 1978年4月 |
Address 住所 | | Yokohama-shi, Kanagawa-ku, Kohoku Morooka cho 神奈川県横浜市港北区師岡町 |
Traffic 交通 | | Tokyu Toyoko Line "Okurayama" walk 13 minutes Tokyu Toyoko Line "Kikuna" walk 20 minutes Tokyu Toyoko Line "Tsunashima" walk 27 minutes 東急東横線「大倉山」歩13分 東急東横線「菊名」歩20分 東急東横線「綱島」歩27分
|
Related links 関連リンク | | [Related Sites of this company] 【この会社の関連サイト】 |
Person in charge 担当者より | | [Regarding this property.] Already the new interior renovation! It is the property of Interikkusu group with after-sales service guarantee. Many are published in even-house HP! ! 【この物件について】新規内装リノベーション済!アフターサービス保証付きのインテリックスグループの物件です。自社HPでも多数公開中です!! |
Contact お問い合せ先 | | TEL: 0800-603-1782 [Toll free] mobile phone ・ Also available from PHS Caller ID is not notified Please contact the "saw SUUMO (Sumo)" If it does not lead, If the real estate company TEL:0800-603-1782【通話料無料】携帯電話・PHSからもご利用いただけます 発信者番号は通知されません 「SUUMO(スーモ)を見た」と問い合わせください つながらない方、不動産会社の方は
|
Administrative expense 管理費 | | 15,900 yen / Month (consignment (commuting)) 1万5900円/月(委託(通勤)) |
Repair reserve 修繕積立金 | | 15,698 yen / Month 1万5698円/月 |
Expenses 諸費用 | | Town council fee: 250 yen / Month 町会費:250円/月 |
Time residents 入居時期 | | Immediate available 即入居可 |
Whereabouts floor 所在階 | | 3rd floor 3階 |
Direction 向き | | Southwest 南西 |
Renovation リフォーム | | August interior renovation completed (Kitchen 2013 ・ bathroom ・ toilet ・ wall ・ floor ・ all rooms) 2013年8月内装リフォーム済(キッチン・浴室・トイレ・壁・床・全室) |
Structure-storey 構造・階建て | | RC7 story RC7階建 |
Site of the right form 敷地の権利形態 | | Ownership 所有権 |
Use district 用途地域 | | One low-rise, Quasi-residence 1種低層、準住居 |
Parking lot 駐車場 | | Sky Mu 空無 |
Company profile 会社概要 | | <Mediation> Minister of Land, Infrastructure and Transport (3) No. 006493 (Corporation) All Japan Real Estate Association (Corporation) metropolitan area real estate Fair Trade Council member (Ltd.) Interikkusu home sales 150-0002 Shibuya, Shibuya-ku, Tokyo 2-12-19 Token International building 11 floors <仲介>国土交通大臣(3)第006493号(公社)全日本不動産協会会員 (公社)首都圏不動産公正取引協議会加盟(株)インテリックス住宅販売〒150-0002 東京都渋谷区渋谷2-12-19 東建インターナショナルビル11階 |