|
|
Yokohama-shi, Kanagawa-ku, Kohoku
神奈川県横浜市港北区
|
|
Tokyu Toyoko Line "Hiyoshi" walk 16 minutes
東急東横線「日吉」歩16分
|
|
Tokyu Toyoko Line ・ Meguro Line ・ Yokohama Municipal Subway Green Line line "Hiyoshi" station walk 16 minutes!
東急東横線・目黒線・横浜市営地下鉄グリーンライン線「日吉」駅徒歩16分!
|
|
Yang per every south-facing balcony ・ Ventilation good! Pet breeding Allowed (limited by convention)
南向きバルコニーにつき陽当り・通風良好!ペット飼育可(規約により制限有り)
|
Features pickup 特徴ピックアップ | | Seismic fit / Immediate Available / 2 along the line more accessible / Super close / Interior renovation / Facing south / System kitchen / Bathroom Dryer / Corner dwelling unit / Yang per good / All room storage / A quiet residential area / Around traffic fewer / Japanese-style room / Starting station / top floor ・ No upper floor / High floor / Washbasin with shower / South balcony / Elevator / Warm water washing toilet seat / Renovation / Ventilation good / Pets Negotiable / Flat terrain 耐震適合 /即入居可 /2沿線以上利用可 /スーパーが近い /内装リフォーム /南向き /システムキッチン /浴室乾燥機 /角住戸 /陽当り良好 /全居室収納 /閑静な住宅地 /周辺交通量少なめ /和室 /始発駅 /最上階・上階なし /高層階 /シャワー付洗面台 /南面バルコニー /エレベーター /温水洗浄便座 /リノベーション /通風良好 /ペット相談 /平坦地 |
Property name 物件名 | | Grace Court Hiyoshi グレイスコート日吉 |
Price 価格 | | 27,990,000 yen 2799万円 |
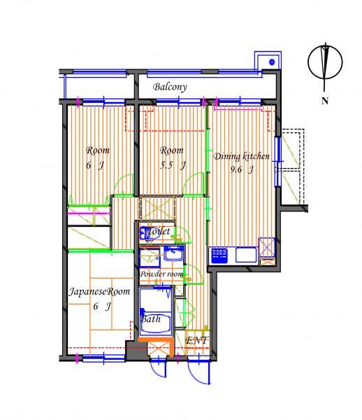
Floor plan 間取り | | 3LDK 3LDK |
Units sold 販売戸数 | | 1 units 1戸 |
Total units 総戸数 | | 28 units 28戸 |
Occupied area 専有面積 | | 65.3 sq m (center line of wall) 65.3m2(壁芯) |
Other area その他面積 | | Balcony area: 8.6 sq m バルコニー面積:8.6m2 |
Whereabouts floor / structures and stories 所在階/構造・階建 | | 5th floor / RC5 story 5階/RC5階建 |
Completion date 完成時期(築年月) | | March 1994 1994年3月 |
Address 住所 | | Kanagawa Prefecture Hiyoshi, Kohoku-ku, Yokohama 5 神奈川県横浜市港北区日吉5 |
Traffic 交通 | | Tokyu Toyoko Line "Hiyoshi" walk 16 minutes Tokyu Meguro Line "Hiyoshi" walk 16 minutes Green Line "Hiyoshi" walk 16 minutes 東急東横線「日吉」歩16分 東急目黒線「日吉」歩16分 グリーンライン「日吉」歩16分
|
Person in charge 担当者より | | Person in charge of real-estate and building Yakushi God Hiroshi age: so that you can better help is of looking for 30's of the customer housing, Because I will do my best hard, I would appreciate your favor. 担当者宅建薬師神 裕年齢:30代お客様のご住宅探しのよいお手伝いができるよう、一生懸命頑張りますので、どうぞ宜しくお願いします。 |
Contact お問い合せ先 | | TEL: 0800-603-0562 [Toll free] mobile phone ・ Also available from PHS Caller ID is not notified Please contact the "saw SUUMO (Sumo)" If it does not lead, If the real estate company TEL:0800-603-0562【通話料無料】携帯電話・PHSからもご利用いただけます 発信者番号は通知されません 「SUUMO(スーモ)を見た」と問い合わせください つながらない方、不動産会社の方は
|
Administrative expense 管理費 | | 7300 yen / Month (consignment (cyclic)) 7300円/月(委託(巡回)) |
Repair reserve 修繕積立金 | | 6200 yen / Month 6200円/月 |
Time residents 入居時期 | | Immediate available 即入居可 |
Whereabouts floor 所在階 | | 5th floor 5階 |
Direction 向き | | South 南 |
Renovation リフォーム | | 2013 February interior renovation completed (kitchen ・ toilet ・ wall) 2013年2月内装リフォーム済(キッチン・トイレ・壁) |
Overview and notices その他概要・特記事項 | | Contact: Yakushi God Hiroshi 担当者:薬師神 裕 |
Structure-storey 構造・階建て | | RC5 story RC5階建 |
Site of the right form 敷地の権利形態 | | Ownership 所有権 |
Use district 用途地域 | | One dwelling 1種住居 |
Parking lot 駐車場 | | Site (15,750 yen / Month) 敷地内(1万5750円/月) |
Company profile 会社概要 | | <Mediation> Minister of Land, Infrastructure and Transport (3) No. 006,185 (one company) National Housing Industry Association (Corporation) metropolitan area real estate Fair Trade Council member Asahi Housing Corporation Yokohama Yubinbango221-0835 Yokohama-shi, Kanagawa, Kanagawa-ku, Tsuruya-cho, 2-26 - 2 fourth Yasuda Building second floor <仲介>国土交通大臣(3)第006185号(一社)全国住宅産業協会会員 (公社)首都圏不動産公正取引協議会加盟朝日住宅(株)横浜店〒221-0835 神奈川県横浜市神奈川区鶴屋町2-26ー2 第4安田ビル2階 |
Construction 施工 | | Daiwa House Industry Co., Ltd. 大和ハウス工業 |