|
|
Yokohama-shi, Kanagawa-ku, Kohoku
神奈川県横浜市港北区
|
|
Tokyu Toyoko Line "Kikuna" walk 9 minutes
東急東横線「菊名」歩9分
|
|
2 routes available "Kikuna" good location of a 9-minute walk to the station! Furnished ・ Full is the renovation dwelling unit appearance!
2路線が利用できる「菊名」駅まで徒歩9分の好立地!家具付・フルリノベーション住戸登場です!
|
|
■ Tokyu Toyoko Line ・ JR Yokohama line is available "Kikuna" good location of a 9-minute walk to the station! ■ Indoor new renovation implementation! ■ Furnished stuck to the interior! ■ Total units 98 units! ■ Management system good! ■ Dishwasher ・ Water purifier, etc. fully equipped! ■ Although for indoor west, Balcony front and open view is also good because it is a park! ■ By all means local Please check.
■東急東横線・JR横浜線が利用できる「菊名」駅まで徒歩9分の好立地! ■室内は新規リノベーション実施! ■インテリアにこだわった家具付! ■総戸数98戸! ■管理体制良好! ■食器洗浄機・浄水器等設備充実! ■室内西向きですが、バルコニー前面は公園ですので開放的で眺望も良好です! ■ぜひ現地ご確認ください。
|
Features pickup 特徴ピックアップ | | Immediate Available / 2 along the line more accessible / Fiscal year Available / System kitchen / Bathroom Dryer / Yang per good / A quiet residential area / Japanese-style room / Washbasin with shower / Bathroom 1 tsubo or more / Elevator / High speed Internet correspondence / Warm water washing toilet seat / TV monitor interphone / Renovation / Leafy residential area / Mu front building / Ventilation good / Good view / Dish washing dryer / water filter / Pets Negotiable / Located on a hill / Maintained sidewalk 即入居可 /2沿線以上利用可 /年度内入居可 /システムキッチン /浴室乾燥機 /陽当り良好 /閑静な住宅地 /和室 /シャワー付洗面台 /浴室1坪以上 /エレベーター /高速ネット対応 /温水洗浄便座 /TVモニタ付インターホン /リノベーション /緑豊かな住宅地 /前面棟無 /通風良好 /眺望良好 /食器洗乾燥機 /浄水器 /ペット相談 /高台に立地 /整備された歩道 |
Property name 物件名 | | Tokyu Doeruarusu Kikuna 東急ドエルアルス菊名 |
Price 価格 | | 32,900,000 yen 3290万円 |
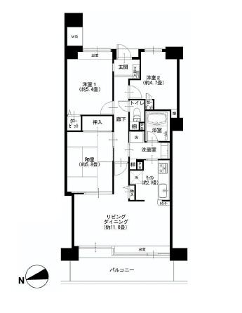
Floor plan 間取り | | 3LDK 3LDK |
Units sold 販売戸数 | | 1 units 1戸 |
Total units 総戸数 | | 98 units 98戸 |
Occupied area 専有面積 | | 65.86 sq m (center line of wall) 65.86m2(壁芯) |
Other area その他面積 | | Balcony area: 12.4 sq m バルコニー面積:12.4m2 |
Whereabouts floor / structures and stories 所在階/構造・階建 | | 3rd floor / SRC10 story 3階/SRC10階建 |
Completion date 完成時期(築年月) | | February 1989 1989年2月 |
Address 住所 | | Yokohama-shi, Kanagawa-ku, Kohoku Kikuna 3 神奈川県横浜市港北区菊名3 |
Traffic 交通 | | Tokyu Toyoko Line "Kikuna" walk 9 minutes JR Yokohama Line "Kikuna" walk 9 minutes 東急東横線「菊名」歩9分 JR横浜線「菊名」歩9分
|
Related links 関連リンク | | [Related Sites of this company] 【この会社の関連サイト】 |
Person in charge 担当者より | | Rep Komuro TakeMinoru Age: strive every day so that you are able to the satisfaction to the 20's customers, I will do my best in all sincerity. 担当者小室 武稔年齢:20代お客様に満足をしていただけるよう日々努力し、誠心誠意頑張ります。 |
Contact お問い合せ先 | | TEL: 0800-603-0562 [Toll free] mobile phone ・ Also available from PHS Caller ID is not notified Please contact the "saw SUUMO (Sumo)" If it does not lead, If the real estate company TEL:0800-603-0562【通話料無料】携帯電話・PHSからもご利用いただけます 発信者番号は通知されません 「SUUMO(スーモ)を見た」と問い合わせください つながらない方、不動産会社の方は
|
Administrative expense 管理費 | | 16,970 yen / Month (consignment (commuting)) 1万6970円/月(委託(通勤)) |
Repair reserve 修繕積立金 | | 9920 yen / Month 9920円/月 |
Time residents 入居時期 | | Immediate available 即入居可 |
Whereabouts floor 所在階 | | 3rd floor 3階 |
Direction 向き | | West 西 |
Renovation リフォーム | | December 2013 interior renovation completed (kitchen ・ bathroom ・ toilet ・ wall ・ floor ・ all rooms) 2013年12月内装リフォーム済(キッチン・浴室・トイレ・壁・床・全室) |
Overview and notices その他概要・特記事項 | | Contact: Komuro TakeMinoru 担当者:小室 武稔 |
Structure-storey 構造・階建て | | SRC10 story SRC10階建 |
Site of the right form 敷地の権利形態 | | Ownership 所有権 |
Use district 用途地域 | | One dwelling, One middle and high 1種住居、1種中高 |
Parking lot 駐車場 | | Site (14,000 yen ~ 19,000 yen / Month) 敷地内(1万4000円 ~ 1万9000円/月) |
Company profile 会社概要 | | <Mediation> Minister of Land, Infrastructure and Transport (3) No. 006,185 (one company) National Housing Industry Association (Corporation) metropolitan area real estate Fair Trade Council member Asahi Housing Corporation Yokohama Yubinbango221-0835 Yokohama-shi, Kanagawa, Kanagawa-ku, Tsuruya-cho, 2-26 - 2 fourth Yasuda Building second floor <仲介>国土交通大臣(3)第006185号(一社)全国住宅産業協会会員 (公社)首都圏不動産公正取引協議会加盟朝日住宅(株)横浜店〒221-0835 神奈川県横浜市神奈川区鶴屋町2-26ー2 第4安田ビル2階 |
Construction 施工 | | Aokikensetsu 青木建設 |