|
|
Yokohama City, Kanagawa Prefecture, Naka-ku,
神奈川県横浜市中区
|
|
Minato Mirai Line "Motomachi ・ Chinatown "walk 1 minute
みなとみらい線「元町・中華街」歩1分
|
|
System kitchen, Elevator, Warm water washing toilet seat
システムキッチン、エレベーター、温水洗浄便座
|
|
■ System kitchen ■ Elevator ■ Warm water washing toilet seat ■ Station 1 minute walk
■システムキッチン■エレベーター■温水洗浄便座■駅徒歩1分
|
Features pickup 特徴ピックアップ | | System kitchen / Elevator / Warm water washing toilet seat システムキッチン /エレベーター /温水洗浄便座 |
Property name 物件名 | | Yokohama ・ Yamashita-cho sale Kyodo Building 横浜・山下町分譲共同ビル |
Price 価格 | | 13.8 million yen 1380万円 |
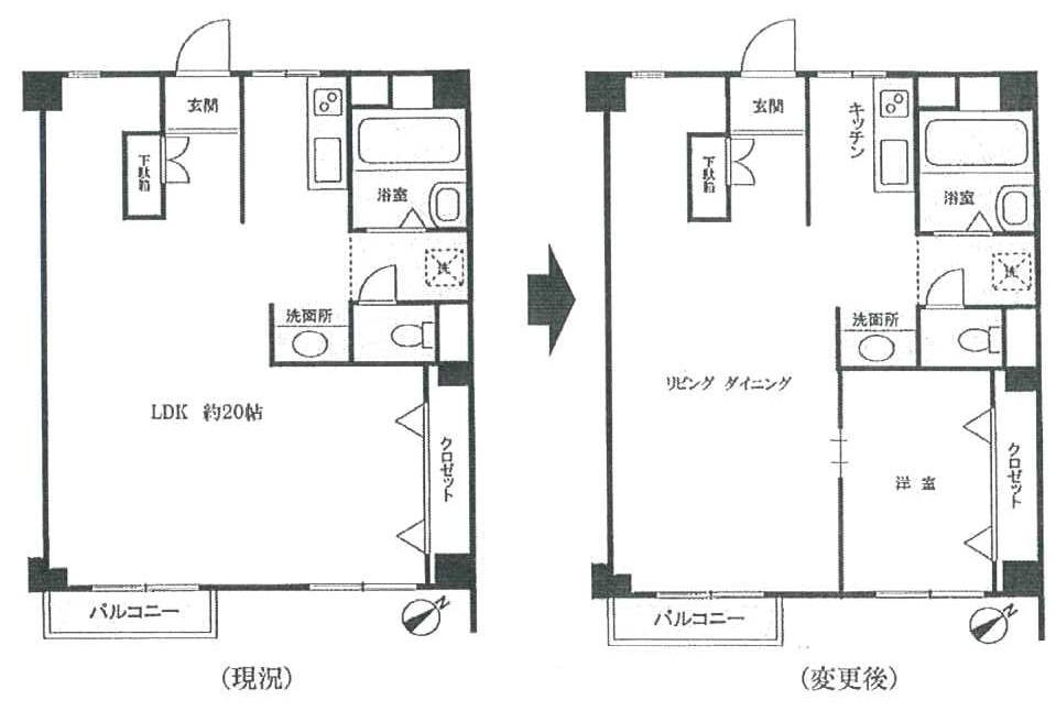
Floor plan 間取り | | 1LDK 1LDK |
Units sold 販売戸数 | | 1 units 1戸 |
Total units 総戸数 | | 49 units 49戸 |
Occupied area 専有面積 | | 53.53 sq m (center line of wall) 53.53m2(壁芯) |
Other area その他面積 | | Balcony area: 1.11 sq m バルコニー面積:1.11m2 |
Whereabouts floor / structures and stories 所在階/構造・階建 | | 4th floor / SRC10 floor underground three-story 4階/SRC10階地下3階建 |
Completion date 完成時期(築年月) | | September 1970 1970年9月 |
Address 住所 | | Naka-ku Yamashita-cho, Yokohama, Kanagawa Prefecture 神奈川県横浜市中区山下町 |
Traffic 交通 | | Minato Mirai Line "Motomachi ・ Chinatown "walk 1 minute みなとみらい線「元町・中華街」歩1分
|
Person in charge 担当者より | | Rep Kazahari 担当者風張 |
Contact お問い合せ先 | | Asahi Living Co., Ltd. Yokohama Sales Office TEL: 0800-603-0001 [Toll free] mobile phone ・ Also available from PHS Caller ID is not notified Please contact the "saw SUUMO (Sumo)" If it does not lead, If the real estate company 朝日リビング(株)横浜営業所TEL:0800-603-0001【通話料無料】携帯電話・PHSからもご利用いただけます 発信者番号は通知されません 「SUUMO(スーモ)を見た」と問い合わせください つながらない方、不動産会社の方は
|
Administrative expense 管理費 | | 11,000 yen / Month (consignment (commuting)) 1万1000円/月(委託(通勤)) |
Repair reserve 修繕積立金 | | 22,000 yen / Month 2万2000円/月 |
Expenses 諸費用 | | Rent: 5071 yen / Month 地代:5071円/月 |
Whereabouts floor 所在階 | | 4th floor 4階 |
Direction 向き | | Southeast 南東 |
Overview and notices その他概要・特記事項 | | Contact: Kazahari 担当者:風張 |
Structure-storey 構造・階建て | | SRC10 floor underground three-story SRC10階地下3階建 |
Site of the right form 敷地の権利形態 | | Leaseholders (Old), Leasehold period remaining 15 years 11 months 地上権(旧)、借地期間残存15年11ヶ月 |
Use district 用途地域 | | Commerce 商業 |
Company profile 会社概要 | | <Mediation> Minister of Land, Infrastructure and Transport (11) No. 002135 (one company) National Housing Industry Association (Corporation) metropolitan area real estate Fair Trade Council member Asahi Living Co., Ltd. Yokohama office Yubinbango240-0013 Yokohama-shi, Kanagawa-ku, Hodogaya thin morning kimono-cho, 2-47 first Saito building the third floor <仲介>国土交通大臣(11)第002135号(一社)全国住宅産業協会会員 (公社)首都圏不動産公正取引協議会加盟朝日リビング(株)横浜営業所〒240-0013 神奈川県横浜市保土ヶ谷区帷子町2-47 第一斉藤ビル3階 |