|
|
Yokohama City, Kanagawa Prefecture, Naka-ku,
神奈川県横浜市中区
|
|
JR Keihin Tohoku Line "Negishi" walk 8 minutes
JR京浜東北線「根岸」歩8分
|
|
[Living in the Yokohama Yamate]
【横浜山手に住まう】
|
|
[It has become a very calm environment is situated in a quiet residential area] [Convenient usability because the whole room a 6 quires more] [LDK is room for more than 20 quires, Space of rest] [Do not start a new life in the furnished reform already Mansion?]
【閑静な住宅街に立地しておりとても落ち着いた環境となっております】【全居室6帖以上あるので便利な使い勝手】【LDKは20帖以上のゆとり、憩いの空間】【家具付きリフォーム済マンションで新しい生活を始めませんか?】
|
Features pickup 特徴ピックアップ | | Corresponding to the flat-35S / Immediate Available / LDK20 tatami mats or more / LDK18 tatami mats or more / Super close / Interior renovation / Facing south / System kitchen / Bathroom Dryer / All room storage / A quiet residential area / LDK15 tatami mats or more / Japanese-style room / Washbasin with shower / Security enhancement / Bathroom 1 tsubo or more / South balcony / Flooring Chokawa / Bicycle-parking space / Elevator / Otobasu / High speed Internet correspondence / Warm water washing toilet seat / Underfloor Storage / TV monitor interphone / High-function toilet / Leafy residential area / Mu front building / Good view / Dish washing dryer / Walk-in closet / All room 6 tatami mats or more / water filter / BS ・ CS ・ CATV / Located on a hill / Maintained sidewalk / Delivery Box / Kids Room ・ nursery / Bike shelter フラット35Sに対応 /即入居可 /LDK20畳以上 /LDK18畳以上 /スーパーが近い /内装リフォーム /南向き /システムキッチン /浴室乾燥機 /全居室収納 /閑静な住宅地 /LDK15畳以上 /和室 /シャワー付洗面台 /セキュリティ充実 /浴室1坪以上 /南面バルコニー /フローリング張替 /駐輪場 /エレベーター /オートバス /高速ネット対応 /温水洗浄便座 /床下収納 /TVモニタ付インターホン /高機能トイレ /緑豊かな住宅地 /前面棟無 /眺望良好 /食器洗乾燥機 /ウォークインクロゼット /全居室6畳以上 /浄水器 /BS・CS・CATV /高台に立地 /整備された歩道 /宅配ボックス /キッズルーム・託児所 /バイク置場 |
Property name 物件名 | | Yokohama, Naka-ku, Regatisu Yokohama Yamate 横浜市中区 レガティス横浜山手 |
Price 価格 | | 42,900,000 yen 4290万円 |
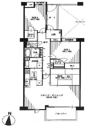
Floor plan 間取り | | 3LDK 3LDK |
Units sold 販売戸数 | | 1 units 1戸 |
Total units 総戸数 | | 42 units 42戸 |
Occupied area 専有面積 | | 95.39 sq m (center line of wall) 95.39m2(壁芯) |
Other area その他面積 | | Balcony area: 8.1 sq m バルコニー面積:8.1m2 |
Whereabouts floor / structures and stories 所在階/構造・階建 | | 1st floor / RC5 floors 1 underground story 1階/RC5階地下1階建 |
Completion date 完成時期(築年月) | | February 1998 1998年2月 |
Address 住所 | | Kanagawa Prefecture medium Yokohama District Negishiasahidai 神奈川県横浜市中区根岸旭台 |
Traffic 交通 | | JR Keihin Tohoku Line "Negishi" walk 8 minutes JR京浜東北線「根岸」歩8分
|
Related links 関連リンク | | [Related Sites of this company] 【この会社の関連サイト】 |
Person in charge 担当者より | | Rep Hamada KoIchiro Age: was good to leave it to Hamada 20s, Also Say hello if there something. I will do my best hard to get used to the person in charge, such as who can say. 担当者濱田 高一郎年齢:20代濱田に任せて良かった、また何かあったらよろしくな。と言っていただけるような担当者になれるよう一生懸命頑張ります。 |
Contact お問い合せ先 | | TEL: 0800-603-0562 [Toll free] mobile phone ・ Also available from PHS Caller ID is not notified Please contact the "saw SUUMO (Sumo)" If it does not lead, If the real estate company TEL:0800-603-0562【通話料無料】携帯電話・PHSからもご利用いただけます 発信者番号は通知されません 「SUUMO(スーモ)を見た」と問い合わせください つながらない方、不動産会社の方は
|
Administrative expense 管理費 | | 17,960 yen / Month (consignment (commuting)) 1万7960円/月(委託(通勤)) |
Repair reserve 修繕積立金 | | 2520 yen / Month 2520円/月 |
Time residents 入居時期 | | Immediate available 即入居可 |
Whereabouts floor 所在階 | | 1st floor 1階 |
Direction 向き | | South 南 |
Renovation リフォーム | | 2013 September interior renovation completed (kitchen ・ bathroom ・ toilet ・ wall ・ floor ・ all rooms) 2013年9月内装リフォーム済(キッチン・浴室・トイレ・壁・床・全室) |
Overview and notices その他概要・特記事項 | | Contact: Hamada KoIchiro 担当者:濱田 高一郎 |
Structure-storey 構造・階建て | | RC5 floors 1 underground story RC5階地下1階建 |
Site of the right form 敷地の権利形態 | | Ownership 所有権 |
Use district 用途地域 | | One middle and high 1種中高 |
Parking lot 駐車場 | | Sky Mu 空無 |
Company profile 会社概要 | | <Mediation> Minister of Land, Infrastructure and Transport (3) No. 006,185 (one company) National Housing Industry Association (Corporation) metropolitan area real estate Fair Trade Council member Asahi Housing Corporation Yokohama Yubinbango221-0835 Yokohama-shi, Kanagawa, Kanagawa-ku, Tsuruya-cho, 2-26 - 2 fourth Yasuda Building second floor <仲介>国土交通大臣(3)第006185号(一社)全国住宅産業協会会員 (公社)首都圏不動産公正取引協議会加盟朝日住宅(株)横浜店〒221-0835 神奈川県横浜市神奈川区鶴屋町2-26ー2 第4安田ビル2階 |