|
|
Yokohama City, Kanagawa Prefecture, Naka-ku,
神奈川県横浜市中区
|
|
JR Negishi Line "Yamate" walk 11 minutes
JR根岸線「山手」歩11分
|
Features pickup 特徴ピックアップ | | Seismic fit / Immediate Available / 2 along the line more accessible / Facing south / Bathroom Dryer / Yang per good / All room storage / A quiet residential area / LDK15 tatami mats or more / Japanese-style room / 24 hours garbage disposal Allowed / Washbasin with shower / Face-to-face kitchen / Security enhancement / Wide balcony / South balcony / Bicycle-parking space / Elevator / Otobasu / High speed Internet correspondence / Warm water washing toilet seat / TV monitor interphone / Renovation / Ventilation good / Good view / Dish washing dryer / Walk-in closet / Pets Negotiable / BS ・ CS ・ CATV / Floor heating / Delivery Box / Bike shelter 耐震適合 /即入居可 /2沿線以上利用可 /南向き /浴室乾燥機 /陽当り良好 /全居室収納 /閑静な住宅地 /LDK15畳以上 /和室 /24時間ゴミ出し可 /シャワー付洗面台 /対面式キッチン /セキュリティ充実 /ワイドバルコニー /南面バルコニー /駐輪場 /エレベーター /オートバス /高速ネット対応 /温水洗浄便座 /TVモニタ付インターホン /リノベーション /通風良好 /眺望良好 /食器洗乾燥機 /ウォークインクロゼット /ペット相談 /BS・CS・CATV /床暖房 /宅配ボックス /バイク置場 |
Property name 物件名 | | Kuresutoforumu Yokohama Yamate クレストフォルム横濱山手 |
Price 価格 | | 37,900,000 yen 3790万円 |
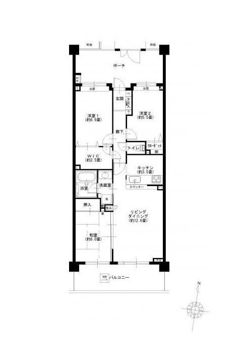
Floor plan 間取り | | 3LDK 3LDK |
Units sold 販売戸数 | | 1 units 1戸 |
Total units 総戸数 | | 61 units 61戸 |
Occupied area 専有面積 | | 76.56 sq m 76.56m2 |
Other area その他面積 | | Balcony area: 11.9 sq m バルコニー面積:11.9m2 |
Whereabouts floor / structures and stories 所在階/構造・階建 | | 4th floor / RC9 basement 6 floors 4階/RC9階地下6階建 |
Completion date 完成時期(築年月) | | April 2006 2006年4月 |
Address 住所 | | Kanagawa Prefecture medium Yokohama District Honmokumanzaka 神奈川県横浜市中区本牧満坂 |
Traffic 交通 | | JR Negishi Line "Yamate" walk 11 minutes JR Negishi Line "Ishikawa-cho" walk 37 minutes Minato Mirai Line "Motomachi ・ Chinatown "walk 35 minutes JR根岸線「山手」歩11分 JR根岸線「石川町」歩37分 みなとみらい線「元町・中華街」歩35分
|
Related links 関連リンク | | [Related Sites of this company] 【この会社の関連サイト】 |
Person in charge 担当者より | | Person in charge of Matsushita Shigeru Age: 40 Daigyokai Experience: 25 years 担当者松下 茂年齢:40代業界経験:25年 |
Contact お問い合せ先 | | TEL: 0800-603-3523 [Toll free] mobile phone ・ Also available from PHS Caller ID is not notified Please contact the "saw SUUMO (Sumo)" If it does not lead, If the real estate company TEL:0800-603-3523【通話料無料】携帯電話・PHSからもご利用いただけます 発信者番号は通知されません 「SUUMO(スーモ)を見た」と問い合わせください つながらない方、不動産会社の方は
|
Administrative expense 管理費 | | 11,500 yen / Month (consignment (commuting)) 1万1500円/月(委託(通勤)) |
Repair reserve 修繕積立金 | | 9200 yen / Month 9200円/月 |
Time residents 入居時期 | | Immediate available 即入居可 |
Whereabouts floor 所在階 | | 4th floor 4階 |
Direction 向き | | South 南 |
Renovation リフォーム | | 2013 September interior renovation completed (kitchen ・ bathroom ・ toilet ・ wall ・ floor) 2013年9月内装リフォーム済(キッチン・浴室・トイレ・壁・床) |
Overview and notices その他概要・特記事項 | | Contact: Matsushita Shigeru 担当者:松下 茂 |
Structure-storey 構造・階建て | | RC9 basement 6 floors RC9階地下6階建 |
Site of the right form 敷地の権利形態 | | Ownership 所有権 |
Use district 用途地域 | | One low-rise 1種低層 |
Parking lot 駐車場 | | Site (6000 yen ~ 18,000 yen / Month) 敷地内(6000円 ~ 1万8000円/月) |
Company profile 会社概要 | | <Mediation> Kanagawa Governor (2) No. 025195 (Ltd.) City agent Yubinbango235-0036 Yokohama, Kanagawa Prefecture Isogo-ku Nakahara 2-2-6 Philadelphia Court Shinsugita first floor <仲介>神奈川県知事(2)第025195号(株)シティエージェント〒235-0036 神奈川県横浜市磯子区中原2-2-6 フィラコート新杉田1階 |