Used Apartments » Kanto » Kanagawa Prefecture » Nishi-ku, Yokohama-shi
 
| | Kanagawa Prefecture, Nishi-ku, Yokohama-shi 神奈川県横浜市西区 |
| Sagami Railway Main Line "Nishiyokohama" walk 2 minutes 相鉄本線「西横浜」歩2分 |
| Sotetsu Line "Nishiyokohama" Station 2-minute walk. Kitchen exchange, Bathroom exchange, etc. is a full renovation apartment! Please do not hesitate to contact us. 相鉄線「西横浜」駅徒歩2分。キッチン交換、浴室交換等フルリフォームマンションです!どうぞお気軽にお問い合わせ下さい。 |
| 2 along the line more accessible, It is close to the city, Interior renovation, System kitchen, Bicycle-parking space, Elevator, Urban neighborhood, Walk-in closet 2沿線以上利用可、市街地が近い、内装リフォーム、システムキッチン、駐輪場、エレベーター、都市近郊、ウォークインクロゼット |
Features pickup 特徴ピックアップ | | 2 along the line more accessible / It is close to the city / Interior renovation / System kitchen / Bicycle-parking space / Elevator / Urban neighborhood / Walk-in closet 2沿線以上利用可 /市街地が近い /内装リフォーム /システムキッチン /駐輪場 /エレベーター /都市近郊 /ウォークインクロゼット | Property name 物件名 | | Eruhaimu Nishiyokohama エルハイム西横浜 | Price 価格 | | 27,900,000 yen 2790万円 | Floor plan 間取り | | 2LDK 2LDK | Units sold 販売戸数 | | 1 units 1戸 | Total units 総戸数 | | 101 units 101戸 | Occupied area 専有面積 | | 54 sq m (center line of wall) 54m2(壁芯) | Other area その他面積 | | Balcony area: 7.2 sq m バルコニー面積:7.2m2 | Whereabouts floor / structures and stories 所在階/構造・階建 | | 9 floor / SRC11 story 9階/SRC11階建 | Completion date 完成時期(築年月) | | February 1995 1995年2月 | Address 住所 | | Yokohama City, Kanagawa Prefecture, Nishi-ku, Hamamatsu-cho 神奈川県横浜市西区浜松町 | Traffic 交通 | | Sagami Railway Main Line "Nishiyokohama" walk 2 minutes Keikyu main line "Tobe" walk 13 minutes Sagami Railway Main Line "Tenno-cho" walk 16 minutes 相鉄本線「西横浜」歩2分 京急本線「戸部」歩13分 相鉄本線「天王町」歩16分
| Related links 関連リンク | | [Related Sites of this company] 【この会社の関連サイト】 | Person in charge 担当者より | | Rep Takemura Yuta real estate after the purchase can also be customers and a lifetime dating, We aim such a salesman. 担当者竹村 祐太不動産購入後もお客様と一生涯お付き合いできる、そんな営業マンを目指しております。 | Contact お問い合せ先 | | TEL: 0800-602-5836 [Toll free] mobile phone ・ Also available from PHS Caller ID is not notified Please contact the "saw SUUMO (Sumo)" If it does not lead, If the real estate company TEL:0800-602-5836【通話料無料】携帯電話・PHSからもご利用いただけます 発信者番号は通知されません 「SUUMO(スーモ)を見た」と問い合わせください つながらない方、不動産会社の方は
| Administrative expense 管理費 | | 9200 yen / Month (consignment (commuting)) 9200円/月(委託(通勤)) | Repair reserve 修繕積立金 | | 6090 yen / Month 6090円/月 | Time residents 入居時期 | | Consultation 相談 | Whereabouts floor 所在階 | | 9 floor 9階 | Direction 向き | | West 西 | Renovation リフォーム | | October 2013 interior renovation completed (kitchen ・ bathroom ・ toilet ・ wall ・ floor ・ all rooms ・ House cleaning) 2013年10月内装リフォーム済(キッチン・浴室・トイレ・壁・床・全室・ハウスクリーニング) | Overview and notices その他概要・特記事項 | | Contact: Takemura Yuta 担当者:竹村 祐太 | Structure-storey 構造・階建て | | SRC11 story SRC11階建 | Site of the right form 敷地の権利形態 | | Ownership 所有権 | Use district 用途地域 | | Commerce, Residential 商業、近隣商業 | Company profile 会社概要 | | <Mediation> Governor of Kanagawa Prefecture (1) the first 027,887 No. living space Real Estate Sales Co., Ltd. Yubinbango231-0011 Yokohama-shi, Kanagawa, Naka-ku, Ota-cho, 1-1 Kanagawa living space building <仲介>神奈川県知事(1)第027887号住空間不動産販売(株)〒231-0011 神奈川県横浜市中区太田町1-1 神奈川住空間ビル |
Local appearance photo現地外観写真  Local Photos
現地写真
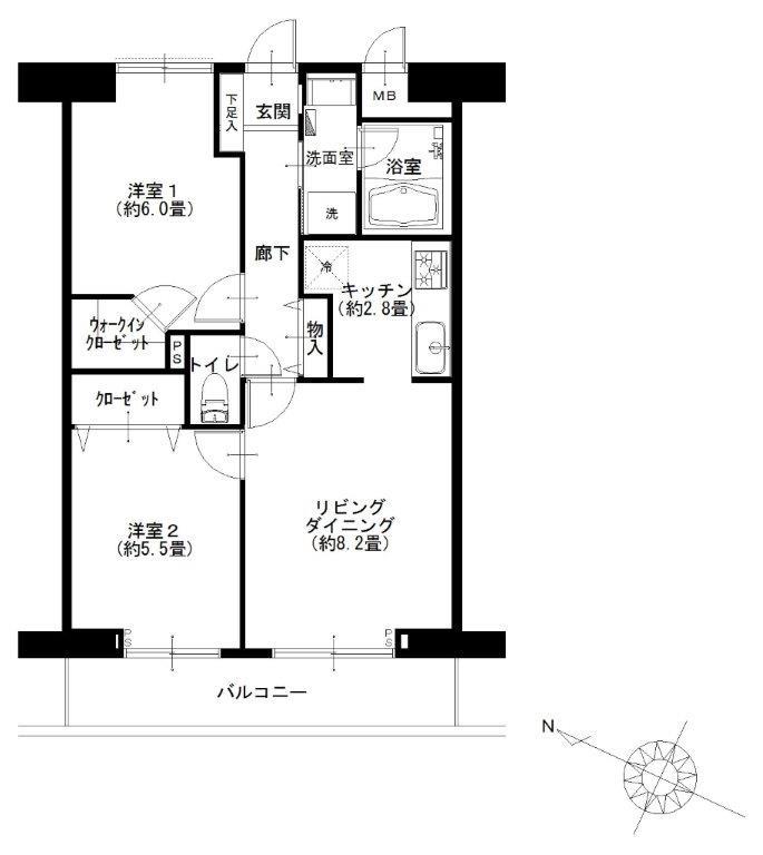
Floor plan間取り図  2LDK, Price 27,900,000 yen, Footprint 54 sq m , Balcony area 7.2 sq m floor plan
2LDK、価格2790万円、専有面積54m2、バルコニー面積7.2m2 間取り図
Otherその他  Local Photos
現地写真
Livingリビング  Renovation construction cases
リフォーム施工例
Bathroom浴室  Renovation construction cases
リフォーム施工例
Kitchenキッチン  Renovation construction cases
リフォーム施工例
Supermarketスーパー  213m until Hanamasa Nishiyokohama store of meat
肉のハナマサ西横浜店まで213m
Kindergarten ・ Nursery幼稚園・保育園  Wisteria trellis to kindergarten 438m
藤棚幼稚園まで438m
Government office役所  604m to Yokohama Nishi ward office
横浜市西区役所まで604m
Park公園  519m to Tobe park
戸部公園まで519m
 996m until Sakainotani park
境之谷公園まで996m
Location
|