|
|
Kanagawa Prefecture, Nishi-ku, Yokohama-shi
神奈川県横浜市西区
|
|
Sagami Railway Main Line "Hiranuma Bridge" walk 4 minutes
相鉄本線「平沼橋」歩4分
|
|
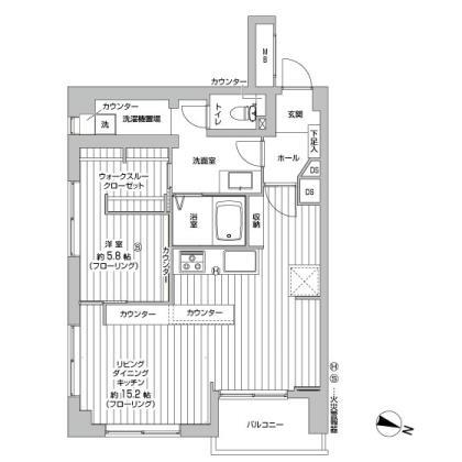
If Interikkusu of property, Please leave our Interikkusu home sales! ◆ 6 Kaikaku room! Per yang ・ View is good! ◆ Connecting the wash room and the bedroom, Convenient walk-through closet! !
インテリックスの物件なら、弊社インテリックス住宅販売にお任せ下さい!◆6階角部屋!陽あたり・眺望良好です!◆洗面室と寝室を結ぶ、便利なウォークスルークローゼット!!
|
|
・ Location to living area Yokohama Station West! ・ It is new to the water supply and drainage pipe, Full renovation Property! ・ Renovation and construction: Interikkusu space design our HP → http / / www.intellex.jp / In We at Interikkusu group, Including the proposal for a new renovation, Please let me explain a new way of condominium! Please feel free to contact us.
・横浜駅西口を生活圏にする立地!・給排水管まで新しくなった、フルリノベーション物件です!・リノベーション施工:インテリックス空間設計弊社HP→http://www.intellex.jp/私どもインテリックスグループでは、新たなリノベーションの提案をはじめ、中古マンションの新しい在り方をご説明させて頂きます!お気軽にお問い合わせください。
|
Features pickup 特徴ピックアップ | | Fit renovation / Immediate Available / 2 along the line more accessible / System kitchen / Bathroom Dryer / Yang per good / All room storage / LDK15 tatami mats or more / Washbasin with shower / Bicycle-parking space / Elevator / Warm water washing toilet seat / TV monitor interphone / All living room flooring / Walk-in closet / water filter 適合リノベーション /即入居可 /2沿線以上利用可 /システムキッチン /浴室乾燥機 /陽当り良好 /全居室収納 /LDK15畳以上 /シャワー付洗面台 /駐輪場 /エレベーター /温水洗浄便座 /TVモニタ付インターホン /全居室フローリング /ウォークインクロゼット /浄水器 |
Property name 物件名 | | Yokohama Heights 横浜ハイツ |
Price 価格 | | 22,950,000 yen 2295万円 |
Floor plan 間取り | | 1LDK 1LDK |
Units sold 販売戸数 | | 1 units 1戸 |
Total units 総戸数 | | 72 units 72戸 |
Occupied area 専有面積 | | 50.85 sq m (15.38 tsubo) (center line of wall) 50.85m2(15.38坪)(壁芯) |
Other area その他面積 | | Balcony area: 4.5 sq m バルコニー面積:4.5m2 |
Whereabouts floor / structures and stories 所在階/構造・階建 | | 6th floor / RC8 story 6階/RC8階建 |
Completion date 完成時期(築年月) | | February 1970 1970年2月 |
Address 住所 | | Okano, Kanagawa Prefecture, Nishi-ku, Yokohama-shi 1 神奈川県横浜市西区岡野1 |
Traffic 交通 | | Sagami Railway Main Line "Hiranuma Bridge" walk 4 minutes JR Tokaido Line "Yokohama" walk 8 minutes JR Keihin Tohoku Line "Yokohama" walk 8 minutes 相鉄本線「平沼橋」歩4分 JR東海道本線「横浜」歩8分 JR京浜東北線「横浜」歩8分
|
Related links 関連リンク | | [Related Sites of this company] 【この会社の関連サイト】 |
Person in charge 担当者より | | Person in charge of real-estate and building Yuki Man'nenrei: 40 Daigyokai experience: while exchanging the experience of up to 26 years from now will endeavor to be able to provide satisfactory that exceed our customers' expectations. Help looking for property, Advice Please leave. 担当者宅建結城 満年齢:40代業界経験:26年今までの経験を交えながらお客様の期待を超える満足を提供できるよう努めます。物件探しのお手伝い、アドバイスはお任せ下さい。 |
Contact お問い合せ先 | | TEL: 0800-603-1782 [Toll free] mobile phone ・ Also available from PHS Caller ID is not notified Please contact the "saw SUUMO (Sumo)" If it does not lead, If the real estate company TEL:0800-603-1782【通話料無料】携帯電話・PHSからもご利用いただけます 発信者番号は通知されません 「SUUMO(スーモ)を見た」と問い合わせください つながらない方、不動産会社の方は
|
Administrative expense 管理費 | | 9770 yen / Month (consignment (commuting)) 9770円/月(委託(通勤)) |
Repair reserve 修繕積立金 | | 9350 yen / Month 9350円/月 |
Expenses 諸費用 | | Management staff room contributions (contributions of one-time-only): 10,000 yen / Bulk, Elevator use fee (contribution of one-time): 2000 yen / Bulk 管理員室負担金(1回限りの負担金):1万円/一括、エレベーター使用料(1回限りの負担金):2000円/一括 |
Time residents 入居時期 | | Immediate available 即入居可 |
Whereabouts floor 所在階 | | 6th floor 6階 |
Direction 向き | | Northeast 北東 |
Renovation リフォーム | | December 2013 interior renovation completed (kitchen ・ bathroom ・ toilet ・ wall ・ floor ・ all rooms) 2013年12月内装リフォーム済(キッチン・浴室・トイレ・壁・床・全室) |
Overview and notices その他概要・特記事項 | | Contact: Yuki Mitsuru 担当者:結城 満 |
Structure-storey 構造・階建て | | RC8 story RC8階建 |
Site of the right form 敷地の権利形態 | | Ownership 所有権 |
Use district 用途地域 | | One dwelling 1種住居 |
Parking lot 駐車場 | | Site (15,600 yen ~ 19,800 yen / Month) 敷地内(1万5600円 ~ 1万9800円/月) |
Company profile 会社概要 | | <Mediation> Minister of Land, Infrastructure and Transport (3) No. 006493 (Corporation) All Japan Real Estate Association (Corporation) metropolitan area real estate Fair Trade Council member (Ltd.) Interikkusu home sales 150-0002 Shibuya, Shibuya-ku, Tokyo 2-12-19 Token International building 11 floors <仲介>国土交通大臣(3)第006493号(公社)全日本不動産協会会員 (公社)首都圏不動産公正取引協議会加盟(株)インテリックス住宅販売〒150-0002 東京都渋谷区渋谷2-12-19 東建インターナショナルビル11階 |