|
|
Kanagawa Prefecture, Totsuka-ku, Yokohama-shi
神奈川県横浜市戸塚区
|
|
JR Yokosuka Line "Higashi-Totsuka" walk 3 minutes
JR横須賀線「東戸塚」歩3分
|
Property name 物件名 | | New City Higashi-Totsuka south of town participation No. Museum ニューシティ東戸塚南の街参号館 |
Price 価格 | | 60 million yen 6000万円 |
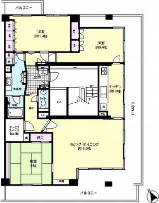
Floor plan 間取り | | 3LDK + S (storeroom) 3LDK+S(納戸) |
Units sold 販売戸数 | | 1 units 1戸 |
Total units 総戸数 | | 291 units 291戸 |
Occupied area 専有面積 | | 127.71 sq m (center line of wall) 127.71m2(壁芯) |
Other area その他面積 | | Balcony area: 24.02 sq m バルコニー面積:24.02m2 |
Whereabouts floor / structures and stories 所在階/構造・階建 | | 9 floor / SRC10 story 9階/SRC10階建 |
Completion date 完成時期(築年月) | | July 1983 1983年7月 |
Address 住所 | | Kanagawa Prefecture, Totsuka-ku, Yokohama-shi Shinano-machi 神奈川県横浜市戸塚区品濃町 |
Traffic 交通 | | JR Yokosuka Line "Higashi-Totsuka" walk 3 minutes Shinjuku line vortex Shonan "Higashi-Totsuka" walk 3 minutes JR横須賀線「東戸塚」歩3分 湘南新宿ライン宇須「東戸塚」歩3分
|
Person in charge 担当者より | | Rep Nakae Masato 担当者中江 正人 |
Contact お問い合せ先 | | Sumitomo Real Estate Sales Co., Ltd. Higashi-Totsuka business center TEL: 045-824-6001 Please inquire as "saw SUUMO (Sumo)" 住友不動産販売(株)東戸塚営業センターTEL:045-824-6001「SUUMO(スーモ)を見た」と問い合わせください |
Administrative expense 管理費 | | 18,739 yen / Month (consignment (commuting)) 1万8739円/月(委託(通勤)) |
Repair reserve 修繕積立金 | | 28,730 yen / Month 2万8730円/月 |
Time residents 入居時期 | | Consultation 相談 |
Whereabouts floor 所在階 | | 9 floor 9階 |
Direction 向き | | Southwest 南西 |
Other limitations その他制限事項 | | / Hot water supply basic fee 1350 yen equipment repair reserve 2850 yen, CATV and administrative expenses 500 yen hot water usage-based fee 5888 yen /給湯基本料1350円機器修繕積立金2850円、CATV管理費500円給湯従量料金5888円 |
Overview and notices その他概要・特記事項 | | Contact: Nakae Masato 担当者:中江 正人 |
Structure-storey 構造・階建て | | SRC10 story SRC10階建 |
Site of the right form 敷地の権利形態 | | Ownership 所有権 |
Use district 用途地域 | | Two dwellings 2種住居 |
Parking lot 駐車場 | | Sky Mu 空無 |
Company profile 会社概要 | | <Mediation> Minister of Land, Infrastructure and Transport (11) No. 002077 (one company) Real Estate Association (Corporation) metropolitan area real estate Fair Trade Council member Sumitomo Real Estate Sales Co., Ltd. Higashi-Totsuka business center Yubinbango244-0801 Kanagawa Prefecture, Totsuka-ku, Yokohama-shi Shinano-machi 538-1 Higashi-Totsuka Central Building 4th floor <仲介>国土交通大臣(11)第002077号(一社)不動産協会会員 (公社)首都圏不動産公正取引協議会加盟住友不動産販売(株)東戸塚営業センター〒244-0801 神奈川県横浜市戸塚区品濃町538-1 東戸塚中央ビル4階 |