|
|
Kanagawa Prefecture, Totsuka-ku, Yokohama-shi
神奈川県横浜市戸塚区
|
|
JR Yokosuka Line "Totsuka" 10 minutes Ayumi Kamiyabe 5 minutes by bus
JR横須賀線「戸塚」バス10分上矢部歩5分
|
|
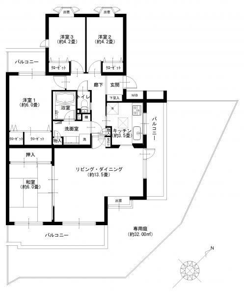
Footprint spacious 83m2 beyond 4LDK of! 32m2 private garden! "Totsuka" station ・ "Higashi-Totsuka" Station 2 Station multiple routes available! !
専有面積広々83m2超えの4LDK!32m2専用庭付き!「戸塚」駅・「東戸塚」駅2駅複数路線利用可能!!
|
|
Southeast corner room! Three-sided balcony! View ・ Per yang ・ Ventilation good! Heisei 25 October new interior renovation completed and with the original furniture of the room!
南東角部屋!3面バルコニー!眺望・陽当たり・通風良好!平成25年10月新規内装リフォーム済&オリジナル家具付のお部屋です!
|
Features pickup 特徴ピックアップ | | Corresponding to the flat-35S / Immediate Available / 2 along the line more accessible / Super close / Interior renovation / System kitchen / Bathroom Dryer / Corner dwelling unit / Yang per good / All room storage / A quiet residential area / LDK15 tatami mats or more / Japanese-style room / Washbasin with shower / 2 or more sides balcony / Bicycle-parking space / High speed Internet correspondence / Warm water washing toilet seat / TV monitor interphone / Renovation / Leafy residential area / Mu front building / Ventilation good / Good view / water filter / BS ・ CS ・ CATV / Private garden / Bike shelter フラット35Sに対応 /即入居可 /2沿線以上利用可 /スーパーが近い /内装リフォーム /システムキッチン /浴室乾燥機 /角住戸 /陽当り良好 /全居室収納 /閑静な住宅地 /LDK15畳以上 /和室 /シャワー付洗面台 /2面以上バルコニー /駐輪場 /高速ネット対応 /温水洗浄便座 /TVモニタ付インターホン /リノベーション /緑豊かな住宅地 /前面棟無 /通風良好 /眺望良好 /浄水器 /BS・CS・CATV /専用庭 /バイク置場 |
Property name 物件名 | | Sky View Totsuka participation スカイビュー戸塚参 |
Price 価格 | | 22,900,000 yen 2290万円 |
Floor plan 間取り | | 4LDK 4LDK |
Units sold 販売戸数 | | 1 units 1戸 |
Total units 総戸数 | | 177 units 177戸 |
Occupied area 専有面積 | | 83.34 sq m (center line of wall) 83.34m2(壁芯) |
Other area その他面積 | | Balcony area: 18.37 sq m , Private garden: 32 sq m (use fee 300 yen / Month) バルコニー面積:18.37m2、専用庭:32m2(使用料300円/月) |
Whereabouts floor / structures and stories 所在階/構造・階建 | | 1st floor / RC3 story 1階/RC3階建 |
Completion date 完成時期(築年月) | | March 1986 1986年3月 |
Address 住所 | | Kanagawa Prefecture, Totsuka-ku, Yokohama-shi Kamiyabe cho 神奈川県横浜市戸塚区上矢部町 |
Traffic 交通 | | JR Yokosuka Line "Totsuka" 10 minutes Ayumi Kamiyabe 5 minutes by bus Blue Line "Totsuka" 10 minutes Ayumi Kamiyabe 5 minutes by bus JR Yokosuka Line "Higashi-Totsuka" bus 6 minutes Fuji Ayumi Yamashita 7 minutes JR横須賀線「戸塚」バス10分上矢部歩5分 ブルーライン「戸塚」バス10分上矢部歩5分 JR横須賀線「東戸塚」バス6分富士山下歩7分
|
Person in charge 担当者より | | Person in charge of real-estate and building Yakushi God Hiroshi age: so that you can better help is of looking for 30's of the customer housing, Because I will do my best hard, I would appreciate your favor. 担当者宅建薬師神 裕年齢:30代お客様のご住宅探しのよいお手伝いができるよう、一生懸命頑張りますので、どうぞ宜しくお願いします。 |
Contact お問い合せ先 | | TEL: 0800-603-0562 [Toll free] mobile phone ・ Also available from PHS Caller ID is not notified Please contact the "saw SUUMO (Sumo)" If it does not lead, If the real estate company TEL:0800-603-0562【通話料無料】携帯電話・PHSからもご利用いただけます 発信者番号は通知されません 「SUUMO(スーモ)を見た」と問い合わせください つながらない方、不動産会社の方は
|
Administrative expense 管理費 | | 8700 yen / Month (consignment (resident)) 8700円/月(委託(常駐)) |
Repair reserve 修繕積立金 | | 11,310 yen / Month 1万1310円/月 |
Time residents 入居時期 | | Immediate available 即入居可 |
Whereabouts floor 所在階 | | 1st floor 1階 |
Direction 向き | | Southeast 南東 |
Renovation リフォーム | | October 2013 interior renovation completed (kitchen ・ bathroom ・ toilet ・ wall ・ floor ・ all rooms) 2013年10月内装リフォーム済(キッチン・浴室・トイレ・壁・床・全室) |
Overview and notices その他概要・特記事項 | | Contact: Yakushi God Hiroshi 担当者:薬師神 裕 |
Structure-storey 構造・階建て | | RC3 story RC3階建 |
Site of the right form 敷地の権利形態 | | Ownership 所有権 |
Use district 用途地域 | | One dwelling 1種住居 |
Parking lot 駐車場 | | Sky Mu 空無 |
Company profile 会社概要 | | <Mediation> Minister of Land, Infrastructure and Transport (3) No. 006,185 (one company) National Housing Industry Association (Corporation) metropolitan area real estate Fair Trade Council member Asahi Housing Corporation Yokohama Yubinbango221-0835 Yokohama-shi, Kanagawa, Kanagawa-ku, Tsuruya-cho, 2-26 - 2 fourth Yasuda Building second floor <仲介>国土交通大臣(3)第006185号(一社)全国住宅産業協会会員 (公社)首都圏不動産公正取引協議会加盟朝日住宅(株)横浜店〒221-0835 神奈川県横浜市神奈川区鶴屋町2-26ー2 第4安田ビル2階 |