|
|
Kanagawa Prefecture Tsurumi-ku, Yokohama City
神奈川県横浜市鶴見区
|
|
JR Keihin Tohoku Line "Tsurumi" 15 minutes overpass under walk 3 minutes by bus
JR京浜東北線「鶴見」バス15分陸橋下歩3分
|
|
3 floor, Facing south, Day good!
3階部分、南向き、日当り良好!
|
|
You go in the flat until the Tressa Yokohama. (A 13-minute walk) Komaoka 10-minute walk from the elementary school, Terao junior high school to walk 11 minutes a new R1 standard renovation completed (2013 October)
トレッサ横浜まで平坦でいけます。(徒歩13分) 駒岡小学校まで徒歩10分、寺尾中学校まで徒歩11分 新規R1基準リノベーション済(平成25年10月)
|
Features pickup 特徴ピックアップ | | Fit renovation / Immediate Available / Facing south / System kitchen / Bathroom Dryer / Yang per good / Japanese-style room / Washbasin with shower / Face-to-face kitchen / South balcony / Elevator / Warm water washing toilet seat / Leafy residential area / water filter / Flat terrain 適合リノベーション /即入居可 /南向き /システムキッチン /浴室乾燥機 /陽当り良好 /和室 /シャワー付洗面台 /対面式キッチン /南面バルコニー /エレベーター /温水洗浄便座 /緑豊かな住宅地 /浄水器 /平坦地 |
Property name 物件名 | | Surpass Mitsuike Park 1 サーパス三ッ池公園1 |
Price 価格 | | 19,400,000 yen 1940万円 |
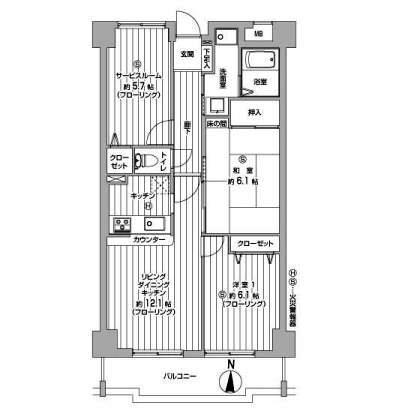
Floor plan 間取り | | 3LDK 3LDK |
Units sold 販売戸数 | | 1 units 1戸 |
Total units 総戸数 | | 29 units 29戸 |
Occupied area 専有面積 | | 65.32 sq m (center line of wall) 65.32m2(壁芯) |
Other area その他面積 | | Balcony area: 8.34 sq m バルコニー面積:8.34m2 |
Whereabouts floor / structures and stories 所在階/構造・階建 | | 3rd floor / RC6 story 3階/RC6階建 |
Completion date 完成時期(築年月) | | May 1989 1989年5月 |
Address 住所 | | Kanagawa Prefecture Tsurumi-ku, Yokohama City Komaoka 3 神奈川県横浜市鶴見区駒岡3 |
Traffic 交通 | | JR Keihin Tohoku Line "Tsurumi" 15 minutes overpass under walk 3 minutes by bus JR京浜東北線「鶴見」バス15分陸橋下歩3分
|
Related links 関連リンク | | [Related Sites of this company] 【この会社の関連サイト】 |
Person in charge 担当者より | | Person in charge of real-estate and building Takizawa Seimoto Age: 40 Daigyokai experience: anything that related to 10-year real estate Please feel free to contact us. 担当者宅建瀧澤 正基年齢:40代業界経験:10年不動産に関する事なら何でもお気軽にご相談下さい。 |
Contact お問い合せ先 | | TEL: 0800-603-0562 [Toll free] mobile phone ・ Also available from PHS Caller ID is not notified Please contact the "saw SUUMO (Sumo)" If it does not lead, If the real estate company TEL:0800-603-0562【通話料無料】携帯電話・PHSからもご利用いただけます 発信者番号は通知されません 「SUUMO(スーモ)を見た」と問い合わせください つながらない方、不動産会社の方は
|
Administrative expense 管理費 | | 18,219 yen / Month (consignment (cyclic)) 1万8219円/月(委託(巡回)) |
Repair reserve 修繕積立金 | | 8730 yen / Month 8730円/月 |
Time residents 入居時期 | | Immediate available 即入居可 |
Whereabouts floor 所在階 | | 3rd floor 3階 |
Direction 向き | | South 南 |
Renovation リフォーム | | October 2013 interior renovation completed (kitchen ・ bathroom ・ toilet ・ wall ・ floor ・ all rooms) 2013年10月内装リフォーム済(キッチン・浴室・トイレ・壁・床・全室) |
Overview and notices その他概要・特記事項 | | Contact: Takizawa Seimoto 担当者:瀧澤 正基 |
Structure-storey 構造・階建て | | RC6 story RC6階建 |
Site of the right form 敷地の権利形態 | | Ownership 所有権 |
Use district 用途地域 | | Quasi-residence 準住居 |
Parking lot 駐車場 | | Nothing 無 |
Company profile 会社概要 | | <Mediation> Minister of Land, Infrastructure and Transport (3) No. 006,185 (one company) National Housing Industry Association (Corporation) metropolitan area real estate Fair Trade Council member Asahi Housing Corporation Yokohama Yubinbango221-0835 Yokohama-shi, Kanagawa, Kanagawa-ku, Tsuruya-cho, 2-26 - 2 fourth Yasuda Building second floor <仲介>国土交通大臣(3)第006185号(一社)全国住宅産業協会会員 (公社)首都圏不動産公正取引協議会加盟朝日住宅(株)横浜店〒221-0835 神奈川県横浜市神奈川区鶴屋町2-26ー2 第4安田ビル2階 |