|
|
Kanagawa Prefecture Tsurumi-ku, Yokohama City
神奈川県横浜市鶴見区
|
|
Tokyu Toyoko Line "Tsunashima" walk 31 minutes
東急東横線「綱島」歩31分
|
|
■ New interior renovated ■ 3-minute walk from the land Hashimoto Station ■ Facing south ・ Good per sun ■ Storage has been enhanced
■新規内装リフォーム済み ■陸橋下駅から徒歩3分 ■南向き・陽当たり良好 ■収納が充実しています
|
|
Who want to come and see your property is, Please contact us by all means, Jewels our alliance mortgage (the entire period up to 1.7 percent preferential treatment, The application, conditions ・ Examination there)
物件を実際に見たいという方は、是非お問合せくださいませ、弊社提携住宅ローン御座います(全期間最大1.7パーセント優遇、適用には、条件・審査がございます)
|
Features pickup 特徴ピックアップ | | Immediate Available / It is close to the city / Interior renovation / Facing south / System kitchen / Bathroom Dryer / Yang per good / All room storage / A quiet residential area / Washbasin with shower / Face-to-face kitchen / Security enhancement / Barrier-free / Flooring Chokawa / Bicycle-parking space / Elevator / Otobasu / High speed Internet correspondence / Warm water washing toilet seat / TV monitor interphone / Renovation / Leafy residential area / Urban neighborhood / Mu front building / Ventilation good / All living room flooring / Walk-in closet / water filter / BS ・ CS ・ CATV / Maintained sidewalk 即入居可 /市街地が近い /内装リフォーム /南向き /システムキッチン /浴室乾燥機 /陽当り良好 /全居室収納 /閑静な住宅地 /シャワー付洗面台 /対面式キッチン /セキュリティ充実 /バリアフリー /フローリング張替 /駐輪場 /エレベーター /オートバス /高速ネット対応 /温水洗浄便座 /TVモニタ付インターホン /リノベーション /緑豊かな住宅地 /都市近郊 /前面棟無 /通風良好 /全居室フローリング /ウォークインクロゼット /浄水器 /BS・CS・CATV /整備された歩道 |
Property name 物件名 | | Surpass Mitsuike park I サーパス三ッ池公園I |
Price 価格 | | 19.9 million yen 1990万円 |
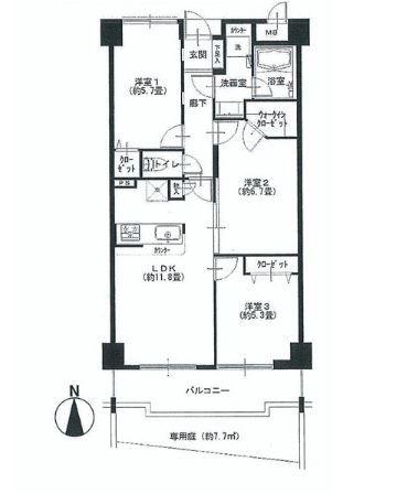
Floor plan 間取り | | 3LDK 3LDK |
Units sold 販売戸数 | | 1 units 1戸 |
Total units 総戸数 | | 29 units 29戸 |
Occupied area 専有面積 | | 65.32 sq m 65.32m2 |
Other area その他面積 | | Balcony area: 8.34 sq m バルコニー面積:8.34m2 |
Whereabouts floor / structures and stories 所在階/構造・階建 | | 1st floor / RC6 story 1階/RC6階建 |
Completion date 完成時期(築年月) | | May 1989 1989年5月 |
Address 住所 | | Kanagawa Prefecture Tsurumi-ku, Yokohama City Komaoka 3 神奈川県横浜市鶴見区駒岡3 |
Traffic 交通 | | Tokyu Toyoko Line "Tsunashima" walk 31 minutes Tokyu Toyoko Line "Okurayama" walk 32 minutes JR Nambu Line "Shitte" walk 32 minutes 東急東横線「綱島」歩31分 東急東横線「大倉山」歩32分 JR南武線「尻手」歩32分
|
Person in charge 担当者より | | Person in charge of Suzuki Miho 担当者鈴木 美穂 |
Contact お問い合せ先 | | TEL: 0800-603-7122 [Toll free] mobile phone ・ Also available from PHS Caller ID is not notified Please contact the "saw SUUMO (Sumo)" If it does not lead, If the real estate company TEL:0800-603-7122【通話料無料】携帯電話・PHSからもご利用いただけます 発信者番号は通知されません 「SUUMO(スーモ)を見た」と問い合わせください つながらない方、不動産会社の方は
|
Administrative expense 管理費 | | 18,219 yen / Month (consignment (commuting)) 1万8219円/月(委託(通勤)) |
Repair reserve 修繕積立金 | | 8730 yen / Month 8730円/月 |
Time residents 入居時期 | | Immediate available 即入居可 |
Whereabouts floor 所在階 | | 1st floor 1階 |
Direction 向き | | South 南 |
Renovation リフォーム | | August interior renovation completed (Kitchen 2013 ・ bathroom ・ toilet ・ wall ・ floor) 2013年8月内装リフォーム済(キッチン・浴室・トイレ・壁・床) |
Overview and notices その他概要・特記事項 | | Contact: Suzuki Miho 担当者:鈴木 美穂 |
Structure-storey 構造・階建て | | RC6 story RC6階建 |
Site of the right form 敷地の権利形態 | | Ownership 所有権 |
Use district 用途地域 | | City planning area outside 都市計画区域外 |
Parking lot 駐車場 | | Nothing 無 |
Company profile 会社概要 | | <Mediation> Minister of Land, Infrastructure and Transport (2) the first 007,684 No. + HOUSE Yokohama Office (Ltd.) propoxycarbonyl life Yubinbango230-0062 Kanagawa Prefecture Tsurumi-ku, Yokohama City Toyooka-cho, 8-24 first floor <仲介>国土交通大臣(2)第007684号+HOUSE横浜Office(株)プロポライフ〒230-0062 神奈川県横浜市鶴見区豊岡町8-24 1階 |