|
|
Kanagawa Prefecture Tsurumi-ku, Yokohama City
神奈川県横浜市鶴見区
|
|
Keikyu main line "Tsurumiichiba" walk 10 minutes
京急本線「鶴見市場」歩10分
|
|
Fit renovation, 2 along the line more accessible, Fiscal year Available, Super close, It is close to the city, Interior renovation, System kitchen, Corner dwelling unit, Yang per good, Flat to the station, A quiet residential area
適合リノベーション、2沿線以上利用可、年度内入居可、スーパーが近い、市街地が近い、内装リフォーム、システムキッチン、角住戸、陽当り良好、駅まで平坦、閑静な住宅地
|
|
◆ Southwestward ~ Yang per good ~ ◆ Corner room ~ Two-sided lighting ~ ◆ Heisei built Property ◆ Interior renovation (H25.12) ○ Kitchen ○ door joinery ○ unit bus ○ water heater ○ toilet ○ water supply, Hot-water pipe ○ flooring ○ CF ・ ・ ・ ・ ・ ・ other
◆南西向き ~ 陽当り良好 ~ ◆角部屋 ~ 2面採光 ~ ◆平成築物件◆内装リフォーム(H25.12) ○キッチン ○ドア建具 ○ユニットバス ○給湯器 ○トイレ ○給水、給湯管 ○フローリング ○ CF ・・・・・・他
|
Features pickup 特徴ピックアップ | | Fit renovation / 2 along the line more accessible / Fiscal year Available / Super close / It is close to the city / Interior renovation / System kitchen / Corner dwelling unit / Yang per good / Flat to the station / A quiet residential area / Around traffic fewer / top floor ・ No upper floor / Washbasin with shower / Security enhancement / 2 or more sides balcony / Flooring Chokawa / Bicycle-parking space / High speed Internet correspondence / Warm water washing toilet seat / TV monitor interphone / Leafy residential area / Urban neighborhood / Mu front building / Ventilation good / All living room flooring / Southwestward / BS ・ CS ・ CATV / Flat terrain / Bike shelter 適合リノベーション /2沿線以上利用可 /年度内入居可 /スーパーが近い /市街地が近い /内装リフォーム /システムキッチン /角住戸 /陽当り良好 /駅まで平坦 /閑静な住宅地 /周辺交通量少なめ /最上階・上階なし /シャワー付洗面台 /セキュリティ充実 /2面以上バルコニー /フローリング張替 /駐輪場 /高速ネット対応 /温水洗浄便座 /TVモニタ付インターホン /緑豊かな住宅地 /都市近郊 /前面棟無 /通風良好 /全居室フローリング /南西向き /BS・CS・CATV /平坦地 /バイク置場 |
Property name 物件名 | | Cesar second Tsurumi セザール第2鶴見 |
Price 価格 | | 14.9 million yen 1490万円 |
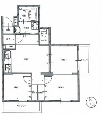
Floor plan 間取り | | 3DK 3DK |
Units sold 販売戸数 | | 1 units 1戸 |
Total units 総戸数 | | 32 units 32戸 |
Occupied area 専有面積 | | 46.94 sq m (center line of wall) 46.94m2(壁芯) |
Other area その他面積 | | Balcony area: 6.1 sq m バルコニー面積:6.1m2 |
Whereabouts floor / structures and stories 所在階/構造・階建 | | 4th floor / PC4 story 4階/PC4階建 |
Completion date 完成時期(築年月) | | November 1989 1989年11月 |
Address 住所 | | Kanagawa Prefecture Tsurumi-ku, Yokohama City Motomiya 1 神奈川県横浜市鶴見区元宮1 |
Traffic 交通 | | Keikyu main line "Tsurumiichiba" walk 10 minutes JR Nambu Line "Shitte" walk 12 minutes 京急本線「鶴見市場」歩10分 JR南武線「尻手」歩12分
|
Related links 関連リンク | | [Related Sites of this company] 【この会社の関連サイト】 |
Person in charge 担当者より | | Person in charge of real-estate and building FP Kuranari Sha young age: 30 Daigyokai Experience: 12 years above all also like people, I want to have each other deep work involved with people, Select the work related to housing, We are involved every day in the apartment buying and selling of a big event for many of your life. 担当者宅建FP倉成 沙稚年齢:30代業界経験:12年なによりも人が好き、人と関わりあいの深い仕事がしたく、住宅に関係する仕事を選び、多くのお客様の人生のビックイベントであるマンションの売買に日々携わっております。 |
Contact お問い合せ先 | | TEL: 0800-603-0380 [Toll free] mobile phone ・ Also available from PHS Caller ID is not notified Please contact the "saw SUUMO (Sumo)" If it does not lead, If the real estate company TEL:0800-603-0380【通話料無料】携帯電話・PHSからもご利用いただけます 発信者番号は通知されません 「SUUMO(スーモ)を見た」と問い合わせください つながらない方、不動産会社の方は
|
Administrative expense 管理費 | | 11,790 yen / Month (consignment (commuting)) 1万1790円/月(委託(通勤)) |
Repair reserve 修繕積立金 | | 12,320 yen / Month 1万2320円/月 |
Time residents 入居時期 | | Consultation 相談 |
Whereabouts floor 所在階 | | 4th floor 4階 |
Direction 向き | | Southwest 南西 |
Renovation リフォーム | | December 2013 interior renovation completed (kitchen ・ bathroom ・ toilet ・ wall ・ floor ・ all rooms) 2013年12月内装リフォーム済(キッチン・浴室・トイレ・壁・床・全室) |
Overview and notices その他概要・特記事項 | | Contact: Kuranari Sunaitokena 担当者:倉成 沙稚 |
Structure-storey 構造・階建て | | PC4 story PC4階建 |
Site of the right form 敷地の権利形態 | | Ownership 所有権 |
Use district 用途地域 | | Semi-industrial 準工業 |
Parking lot 駐車場 | | Nothing 無 |
Company profile 会社概要 | | <Seller> Minister of Land, Infrastructure and Transport (9) No. 003115 No. Okuraya house Co., Ltd., Kawasaki office Yubinbango210-0007 Kawasaki City, Kanagawa Prefecture, Kawasaki-ku, Ekimaehon cho 11-1 <売主>国土交通大臣(9)第003115号オークラヤ住宅(株)川崎営業所〒210-0007 神奈川県川崎市川崎区駅前本町11-1 |